EasyManua.ls Logo

MTL MTL5021 - MTL5053 Fieldbus Power Supply Setup

Default Icon
46 pages
Print Icon
To Next Page IconTo Next Page
To Next Page IconTo Next Page
To Previous Page IconTo Previous Page
To Previous Page IconTo Previous Page
Loading...
6.24 MTL5051 serial data comms isolator
The MTL5051provides either bi-directional serial data communications
from a computer system in a safe area to instrumentation in a hazardous
area or data communications across a hazardous area. It is used to
provide a fully floating dc supply for, and serial data communications to
MTL640 text displays and MTL650 series text and graphics terminals or
to other IS and non-IS instrumentation and keyboards.
6.24 .1 Wiring connections
See figures 6.52 and 6.53 and the terminal specifications in tables 6.11
and 6.12 for wiring connections. See also section 6.22.2 on hazardous-
area interfacing.
6.24.2 Hazardous-area interfacing
Displays/terminals: For details of interfacing with MTL640 and
MTL650 series displays/terminals (as an alternative to the MTL696
communications interface) see the appropriate product instruction
manual.
24
INM5000-6 Jul 2010
from either. For smart two–wire transmitters it provides bi-directional
communication signals superimposed on the 4/20mA signal. The
MTL5048 can also be used for isolating and passing a 4/20mA
signal from the safe area to the hazardous-area. The transmitter can
be interrogated either from the operator station or by a hand-held
communicator (HHC) for both the channels.The MTL5049 isolates and
passes on two 4 to 20mA signals from a controller located in a safe area
to two loads in a hazardous area.
6.22.1 Wiring connections
See figure 6.48 for wiring connections.
6.22.2 Testing
Make the safe- and hazardous-area connections shown in figure 6.49
and, using RV1 to vary the output current, carry out the following checks,
first on channel 1 and then on channel 2.
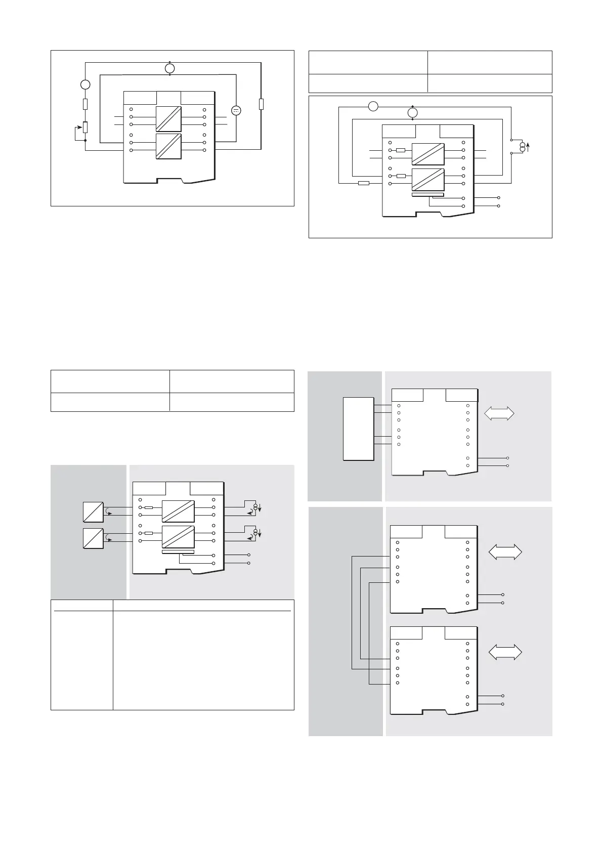
6.23 MTL5049 two-channel isolating driver
The MTL5049 isolates and passes on two 4 to 20mA signals from a
controller located in a safe area to two loads in a hazardous area.
6.23.1 Wiring connections
See figure 6.50 for wiring connections.
6.23.2 Testing
Make the safe- and hazardous-area connections shown in figure 6.51
and, using the current source to vary the output current, carry out the
following checks, first on channel 1 and then on channel 2.
6
5
4
3
2
1
7
8
9
10
11
12
13
14
Vs
Vs+
20 to 35V dc
RS232, TTL
or RS422
Rx
Tx
5V or 12V supply
Common
Tx
Rx
Supply
Common
Figure 6.52: MTL5051 wiring diagram (to a hazardous area)
Hazardous area Safe area
Output Current
current reading (A1)
4 to 20mA <±20μA
6
5
4
3
2
1
7
8
9
10
11
12
13
14
I
I
I
I
Vs
Vs+
20 to 35V dc
A1
A2
+
Current
source
470W
+
+
+
Ch1
Ch2
Ch1
Ch2
Figure 6.51: Test circuit for MTL5049
RS232, or
RS422
RS232, or
RS422
6
5
4
3
2
1
7
8
9
10
11
12
13
14
6
5
4
3
2
1
7
8
9
10
11
12
13
14
Vs
Vs+
20 to 35V dc
Vs
Vs+
20 to 35V dc
Safe area
Hazardous area
Figure 6.53: MTL5051 wiring diagram (across a hazardous area)
Output Current
current (A2) reading (A1)
4 to 20mA <±80μA
6
5
4
3
2
1
7
8
9
10
11
12
13
14
I
I
I
I
P
I
4/20mA
+
P
I
4/20mA
+
+
4/20mA
+
4/20mA
Vs
Vs+
20 to 35V dc
Ch 1
Ch 2
Ch 1
Ch 2
Figure 6.50: MTL5049 wiring diagram and connections
Hazardous area Safe area
Terminal Function
1 Output –ve (Ch 1)
2 Output +ve (Ch 1)
4 Output -ve (Ch 2)
5 Output +ve (Ch 2)
8 Input -ve (Ch 2)
9 Input +ve (Ch 2)
11 Input –ve (Ch 1)
12 Input +ve (Ch 1)
13 Supply –ve
14 Supply +ve
6
5
4
3
2
1
7
8
9
10
11
12
I
I
I
I
Ch 2
+
+
Ch 2
24V
+
A1
A2
Ch 1
180W
2k
RV1
W
+
+
240W
Figure 6.49: Test circuit for MTL5048
Artisan Technology Group - Quality Instrumentation ... Guaranteed | (888) 88-SOURCE | www.artisantg.com

Table of Contents

Related product manuals