EasyManua.ls Logo

Napoleon B36NT - Page 40

Napoleon B36NT
160 pages
Print Icon
To Next Page IconTo Next Page
To Next Page IconTo Next Page
To Previous Page IconTo Previous Page
To Previous Page IconTo Previous Page
Loading...
40
W415-1401 / C / 03.18.15
EN
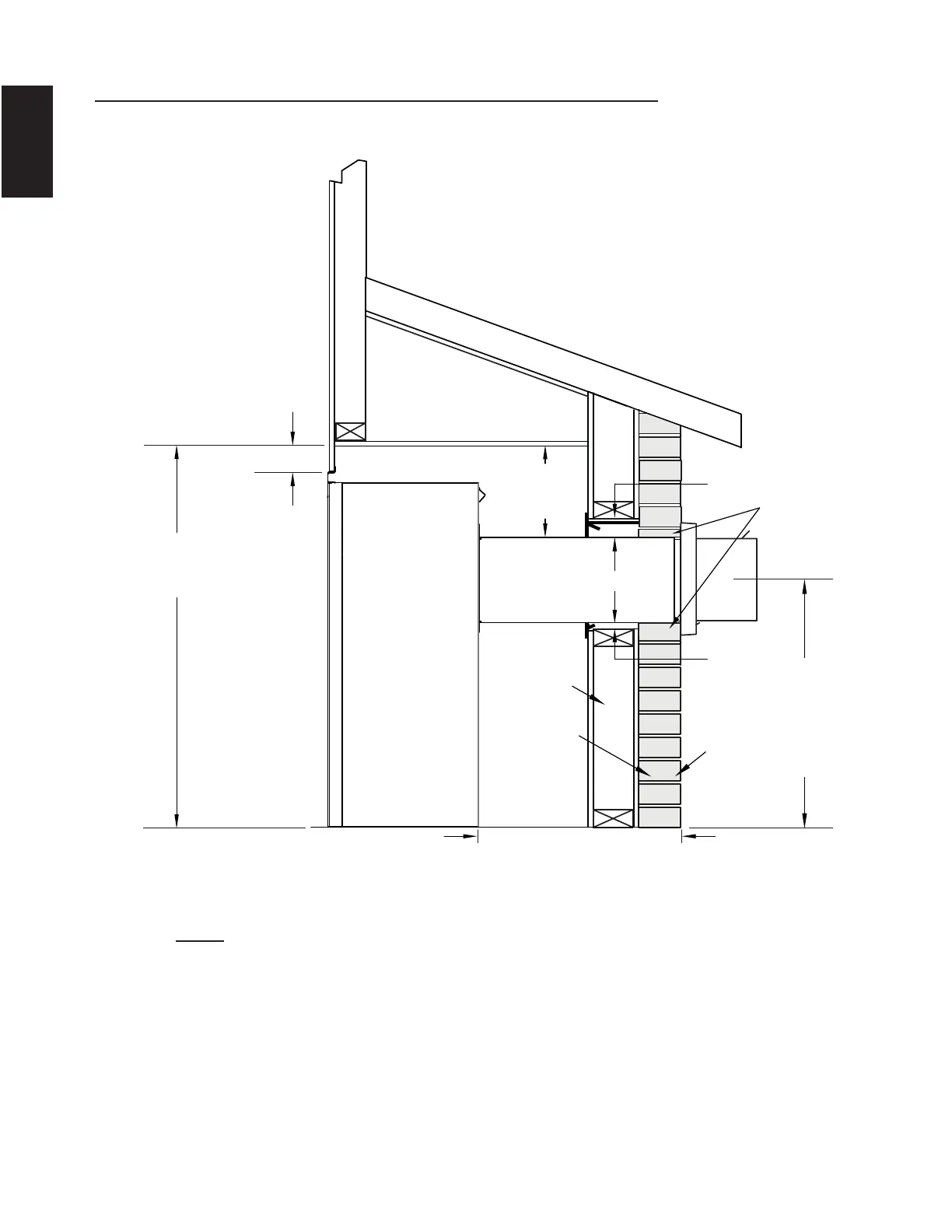
REAR EXIT ENCLOSURE
The appliance requires a minimum enclosure height of 41" (1041mm). For temperature
requirements, the enclosure space around and above the appliance must be left
unobstructed.
B36 MAXIMUM REAR VENT CLEARANCES (EXAMPLE 2)
24"
[610mm]
MINIMUM
PLUS RISE*
COMBUSTIBLE
NON-COMBUSTIBLE
1"
[25mm]
3"
[76mm]
BRICK
0” (0MM) IF
NON-COMBUSTIBLE
FINISHING IS USED
SUCH AS BRICK
AND STONE.
7"
[178mm]
41"
[1041mm]
10"-20"
[254mm-508mm]
VENT RUN
11 1/2"
[292mm]
NOTE: The vent shield is telescopic and must be adjusted to shield the full depth of the
combustible wall penetration.

Table of Contents

Other manuals for Napoleon B36NT

Related product manuals