EasyManua.ls Logo

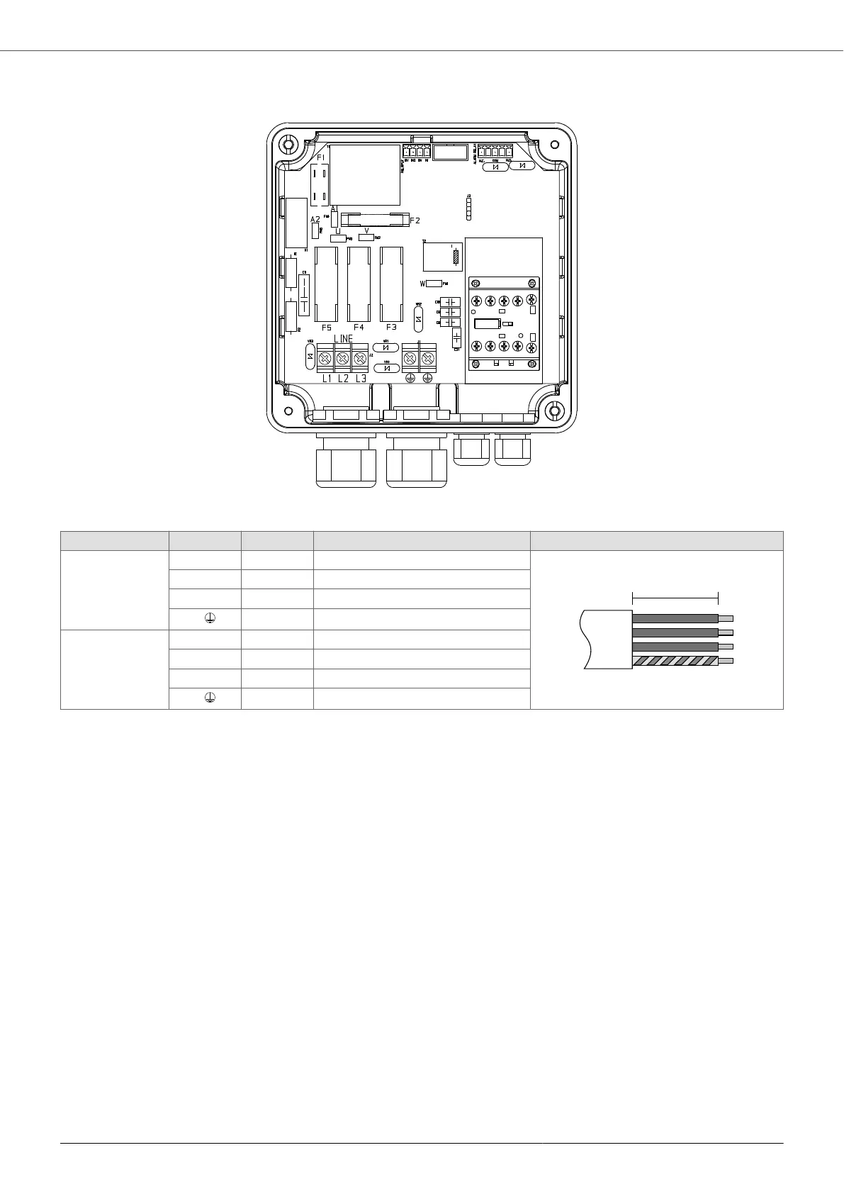
Nastec PILOT - 7.4.2. Power Connections (PILOT 312 Series)

Nastec PILOT
28 pages
Print Icon
To Next Page IconTo Next Page
To Next Page IconTo Next Page
To Previous Page IconTo Previous Page
To Previous Page IconTo Previous Page
Loading...
PILOT 312 3x230V , PILOT 312 3x400V , PILOT 312 3x460V
1 L1
3 L2
5 L3
2 T1
4 T2
6 T3
13 NO
A1
A2
14
A [mm] Pre-insulated cable lug Stripping diagram
Power Supply
LINE
L1 50 Fork for M4 screw
A
L2 50 Fork for M4 screw
L3 50 Fork for M4 screw
P.E.
50 Fork for M4 screw
Motor
MOTOR
T1 60 Fork for M4 screw
T2 60 Fork for M4 screw
T3 60 Fork for M4 screw
P.E.
60 Fork for M4 screw
PILOT
16