EasyManua.ls Logo

Nobles Frontier 608549 - Electrical Diagrams

Default Icon
25 pages
Print Icon
To Next Page IconTo Next Page
To Next Page IconTo Next Page
To Previous Page IconTo Previous Page
To Previous Page IconTo Previous Page
Loading...
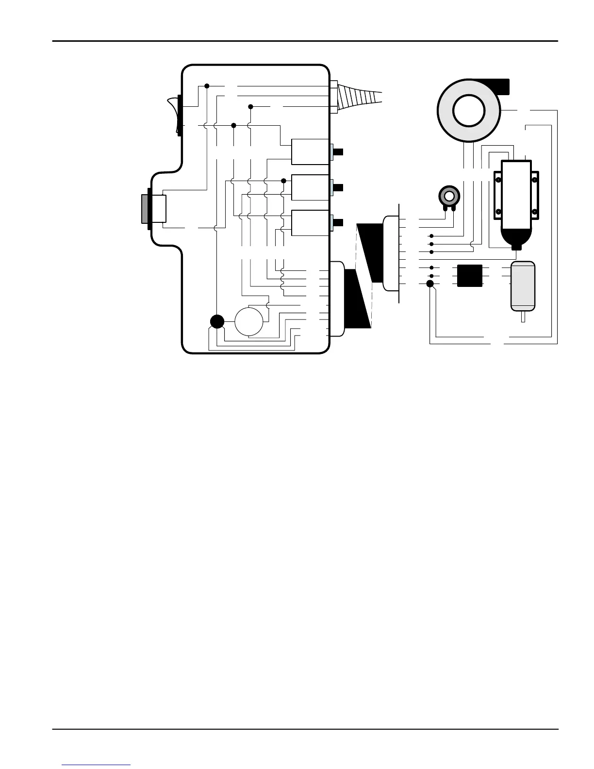
ELECTRICAL DIAGRAMS
DIAGRAMAS ELECTRICAS
21
Frontier Carpet Extractor (0601)
SPRAY/BRUSH SWITCH
MAIN
SWITCH
POWER CORD
CONDUIT
SOLENOID
CORD 18/3
(Chassis to
Brush Housing)
SOLUTION
PUMP
AC
AC
PUMP
1.5 AMPS
BRUSH
1.5 AMPS
VACUUM
12 AMPS
BRUSH
MOTOR
VACUUM
MOTOR
WHT/ORG
BLK
RED
GRN
BLU
ORG
WHT
WHT/ORG
WHT/RED
WHT/BLK
BLU
RED
BLK
GRN
BLK
BLK
BLK
WHT
BLK
BLK
BLK
WHT
GRN
BLU
WHT
BLK
RED
GRN
ORG
GRN
WHT
BLK
WHT/RED
WHT/BLK
RED
BLK
WHT/GRN
GRN/YLW
GRN
GRN/YLW
GRN
WHT
BLK
WHT
BLK
120V
+

Related product manuals