EasyManua.ls Logo

Nussbaum Sprinter NT - Foundationplan

Nussbaum Sprinter NT
40 pages
Print Icon
To Next Page IconTo Next Page
To Next Page IconTo Next Page
To Previous Page IconTo Previous Page
To Previous Page IconTo Previous Page
Loading...
Operating Instruction and Documentation
Sprinter NT
- 12 -
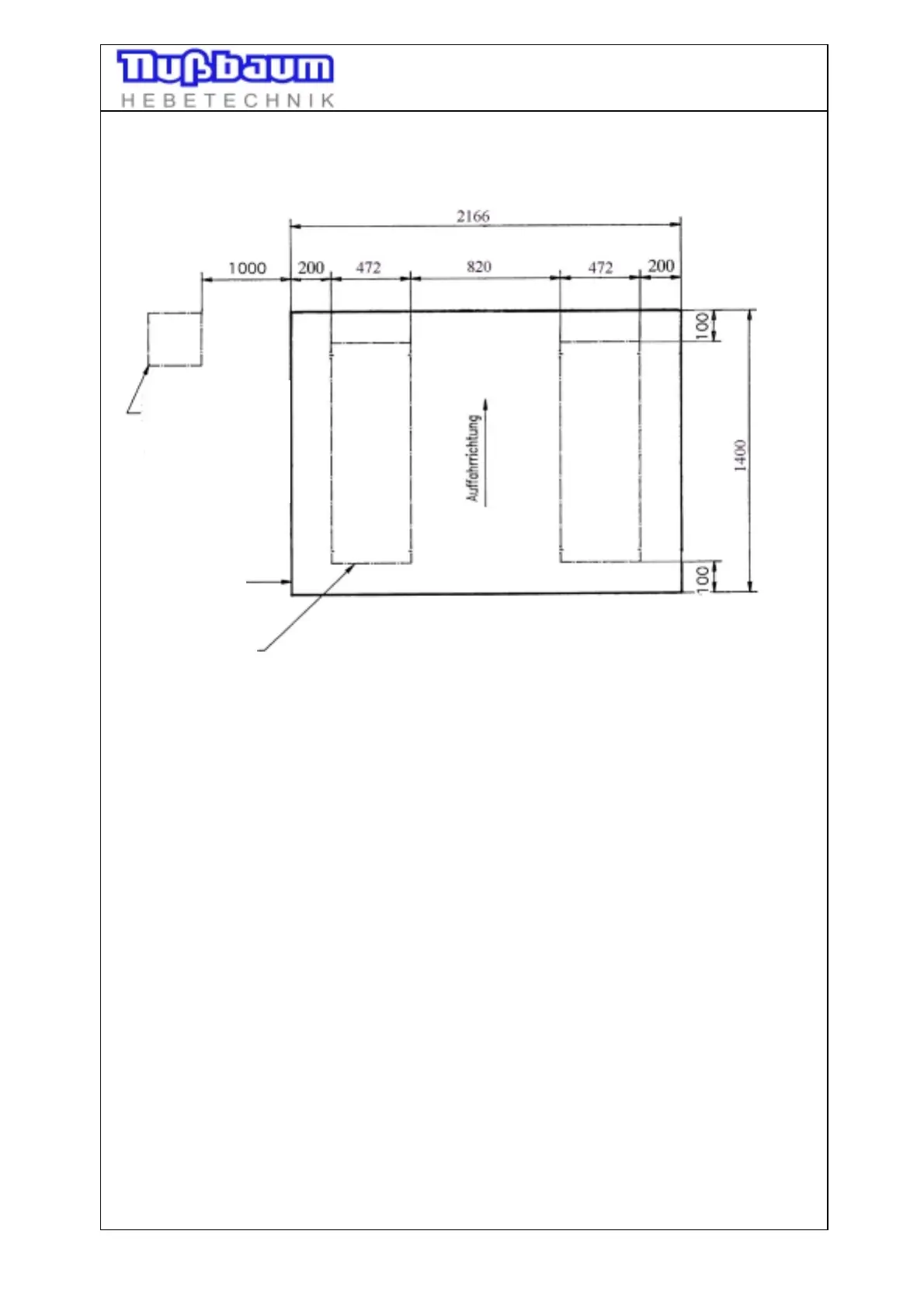
3.4 Foundationplan
Foundation plan: quality of the concrete minimum. B25
wide minimum 2166 mm
lenght minimum 1400 mm
thickness minimum 160 mm
If the concrete is available the quality B25 and the thickness minimum 160 mm must be
guaranteed.
Concrete plate
It is possible to
mount the
operating unit on
the left side or on
the right side of the
lift
rail

Related product manuals