EasyManua.ls Logo

Onkyo HTR-548 SERIES

Onkyo HTR-548 SERIES
101 pages
To Next Page IconTo Next Page
To Next Page IconTo Next Page
To Previous Page IconTo Previous Page
To Previous Page IconTo Previous Page
Loading...
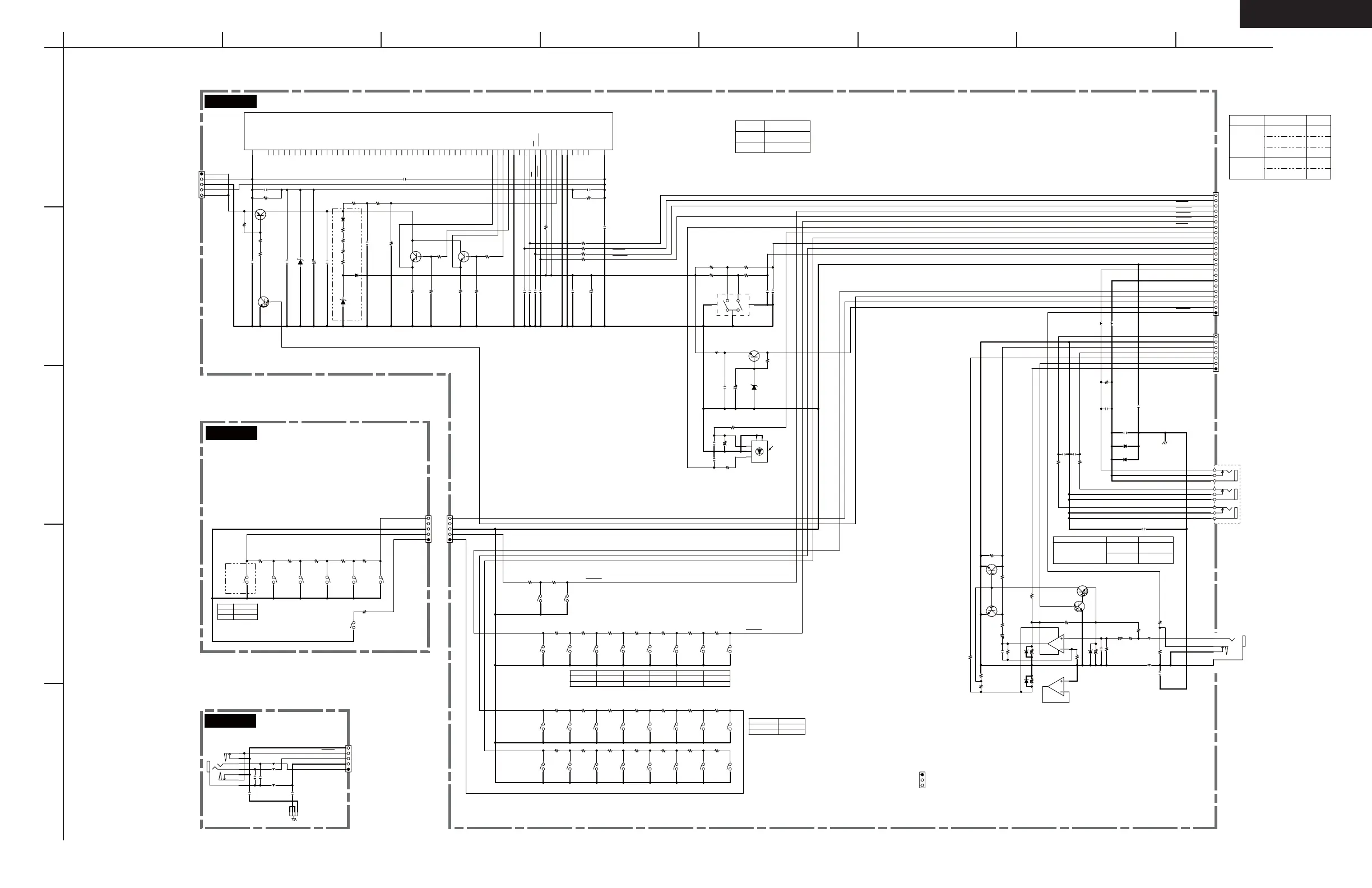
DTR-20.3/DTR-30.3
SCHEMATIC DIAGRAM/ BLOCK DIAGRAM-9
A
1
2
3
4
5
BCDEFGH
FLAC2
FLAC1
VH
GND
FLDCLK
FLDSDO
FLDCS
FLDRST
GND_DG
HPR
SPLE
HPL
HPDET
GNDDG
KEY3
KEY2
GNDDG
KEY1
KEY0_1
KEY0_1
GNDDG
KEY2_1
GNDDG
KEY0
GNDDG
KEY0_1
KEY2_1
KEYINT0
KEY2
KEY3
FLDRST
VOLB
VOLA
REMIN
FLDCS
FLDCLK
FLDSDO
GNDA_AUX
AUX_R
AUX_L
MICOUT
-15V
MICMUT
+15V
MICDET
AUX_V
GNDV_AUX
+5.0VDIS
GNDDG
KEY0
+3.3S
KEYINT1
VH
KEY1
VH_CON1
KEY0
16G
1G
Q1G
Q16G
TSB
DA
CP
CS
RESET
OSC
VDD
LGDN
TSA
FROM AMP PWB
BADIS-0670
Model No. DTR-20.3/DTR-30.3 Schematic Diagram (Part-09) Display Section
FROM SP_OUT PWB
FROM BATRM-0647(PART-8)
*Reference No. Allocation:7000-7999
BAETC-0674
DISPLAY
PRESET
RETURN
SETUP
PRESET UP
TUN DOWN
TUN UP
ENTER
DOWN
TUNING
MEMORY
GAME
MUSIC
MOVIE/TV
TONE-
TONE+
TUNER
AUX
CBL/SAT
GAME
PC
VCR/DVR
CBL/SAT
GAME
PC
VCR/DVR
BD/DVD
S7118 S7120
CODE
30.3
S7122 S7124 S7126
PC
AUX
GAME
PC
CBL/SAT
GAME
VCR/DVR
CBL/SAT
BD/DVD
VCR/DVR
20.3
Z2 VRLUP
Z2OFF
Z2 VRLDOWN
*
CODE
20.3
30.3
X
BD/DVD
S7130
CODE MODEL
D2
D3
DTR-20.3
DTR-30.3
*
*
*
L7301,L7302,P7302
C7311,C7312,C7314,C7319
***
*
*
*
*
*
D7311,D7312
C/D
A/B/EDEL
R7311,R7312,R7313
REF. No. VERSION
ADD
ADD/DEL
AUX AUDIO R IN
AUX AUDIO L IN
AUX VIDEO IN
SETUP MIC
TO BADIS-0662
PART-10
DTR-30.3
DTR-20.3
MODEL
MMA,MMR
MDD
SIMUKE
MJJ
MDD
MMA
A
B
E
C
D
VER.
RT/TPTY/TP
DIMMER
CODE
S7136
DIMMER
RT/TPTY/TP
MDD,MJJ
MMA,MMR
X--20.3
BD/DVD--30.3
BADIS-0671
NET
PORT
TV/CD
USB
TONE
STBY
ZONE2
N.CN.C
FROM BATEC-0632(PART-4)
TO DG-B PWBTO DG-B PWB
N.C
TO BADG-0643(PART-6) TO BADG-0643(PART-6)
N.C
N.C
KEYINT1
KEYINT0
PGND
VH
VH
VH_CON1
S7130:30.3 only
VDD
N.M
C7016
223K
Q7004
KTC3875-GR
2
1
3
R7011
100
Q7003
KTC3875-GR
3
1
2
R7014
100
R7015
33K
S7002
EC12E2425WITH_WASHER
4
2
5
3
1
C7009
104Z
C7008
100/6.3
C7022103K
C7021
103K
R7024
10K
R7023
10K
R7022
10K
R7021
10K
C7005 101J
C7004 101J
C7003 101J
C7002 104Z
R7010
100K
R7012
33K
R7013
100K
R7017
33K
R7007
220
C7011 223K C7012 223K
R7008
220
C7014
223K
C7017
223K
R7004
220
R7005
220
R7003
3.3K
R7002
3.3K
C7041
100/6.3
R7042
1K
C7042
102J
C7043
102J
U7041
KSM-603TE5B
3
2
1
5
4
R7041
100
R7033
82
L7031
LBC2518T2R2M
D7033
UDZS3.9B
2
1
C7033
10/16
C7031
223K
Q7033
KTC3875-GR
3
1
2
C7010
223K
Q7002
16-BT-165GINK
1
F1
2
NP
3
NP
4
NP
5
NP
6
NX
7
NX
8
NX
9
NX
10
NX
11
NX
12
NX
13
NX
14
NX
15
NX
16
NX
17
NX
18
NX
19
NX
20
NX
21
NP
22
NP
23
NP
24
NP
25
NP
26
NP
27
NP
28
NP
29
NP
30
NP
31
NP
32
NP
33
NP
34
NP
35
NP
36
NP
37
NP
38
NP
39
NP
40
NP
41
NP
42
NP
43
NP
44
16G
45
1G
46
Q1G
47
Q16G
48
TSB
49
TSA
50
DA
51
CP
52
CS
53
RESET
54
OSC
55
VDD
56
VH
57
PGND
58
LGND
59
NP
60
NP
61
NP
62
NP
63
F2
C7015
47/16
D7002
UDZS8.2B
L7203
LBC2518T2R2M
L7201
LBC2518T2R2M
L7202
LBC2518T2R2M
C7201
102J
C7202
223K
C7203
102J
C7204
102J
E7201
2341
S7126
S7118
S7120
S7116
S7114
S7122
R7107
330
R7108
470
R7110
820
R7111
1.2K
S7109
R7109
560
JL605A
NSCT-5P896
5
4
3
2
1
R7112
2.2K
P7201
YKB26-5153
1
8
7
3
2
4
5
S7124S7162
S7160
S7158
S7156
S7154
S7152
S7150
R7121
2.2K
R7129
2.2K
S7144
S7164 S7146
S7134
S7136
S7142
S7140
S7132
R7120
1.2K
R7128
1.2K
R7119
820
R7127
820
R7118
560
R7126
560
R7117
470
R7125
470
R7116
330
R7124
330
R7115
270
R7123
270
R7103
470
S7106
S7107
R7104
560
S7130
C7316
104Z
L7301
BK1608LM182-T
L7302
BK1608LM182-T
C7319
470J
C7314
104Z
P7302
NPJ-3PDB694
9
8
7
6
5
4
3
2
1
R7312
330
R7311
330
C7312
471J
C7311
471J
E7302A
C7305
104Z
D7312
KDS4148U
D7311
KDS4148U
R7420
47K
P7402
MSJ-035-05CBAGSRtype
2
5
4
1
D7412
UDZS6.8B
R7432
220K
C7433
102J
L7432
LBC2518T2R2M
L7431
LBC2518T2R2M
R7431
220
C7431
10/16
R7433
47K
C7432 101J
C7403 47/16
R7434
1K
Q7402:B
NJM4580M-D
1
2
3
Q7402:A
NJM4580M-D
7
8
6
5
4
R7401
100
Q7007
KRC102S
C7412
47/16
C7411
47/16
Q7005
KRA102S
D7401
UDZS5.1B
R7403
4.7K
R7406
330
D7411
UDZS6.8B
R7411
470
R7435
33K
C7434
330J
Q7403
DTC114TKA
Q7404
DTC114TKA
C7405
10/16
R7409
220
R7414
100K
R7413
220K
R7412
470
R7410
220
P7560A
NPLG-3P0958
1
2
3
R7105
820
R7106
270
S7113
S7108
R7131
1.2K
R7114
2.2K
R7102
330
R7101
270
S7104
R7122
3.9K
S7105
S7148
S7102
JL953A
NSCT-5P876
5
4
3
2
1
JL702B
NSCT-5P876
5
4
3
2
1
JL702A
NSCT-5P876
1
2
3
4
5
R7313
NC
P703A
NSCT-7P2441
7
6
5
4
3
2
1
P701B
NSCT-23P2441
23
22
21
20
19
18
17
16
15
14
13
12
11
10
9
8
7
6
5
4
3
2
1
S7138
D7034
UDZS3.9B
2
1
R7029
1.5K
R7030
1.5K
R7031
1.5K
R7032
1.5K
R7016
10
D7004
1SS352
D7003
1SS352
C7032
223K
R7018
10
R7043
100K
C7019
104J
R7044
47K
Q7009
KRC107S
R7045
5.6K
R7046
5.6K
2SA1162-GR
DISPLAY SECTION
PART-9
U0020
U0021
U0023

Related product manuals