EasyManua.ls Logo

Onkyo HTR-548 SERIES - From Bahdm

Onkyo HTR-548 SERIES
101 pages
Print Icon
To Next Page IconTo Next Page
To Next Page IconTo Next Page
To Previous Page IconTo Previous Page
To Previous Page IconTo Previous Page
Loading...
TX-NR509/TX-NA509/TX-NA509V
SCHEMATIC DIAGRAM/ BLOCK DIAGRAM-18
A
1
2
3
4
5
BCDEFGH
HDMI_LRCK
HDMI_MCK
+5VA
DIGCLK
HDMI_BCK
HDMI_SPDIF
ARC_SPDIF
DIR_CS
DIR_RST
SDOUTDIR_HDMIFLR
DIGSDI
DIGSDO
HDMI_FLR
44/48
COAX2
256x44.1K
MCK_NET2_256fs
MCK_NET_256fs
Z2DACMUT
DATA_NET
Z2NET_R
Z2NET_L
DACCS
DACMUT
DIGSDO
DIGCLK
ADSP1_LRCK
ADSP1_BCK
DIRINT0
AMUTE0
NET_SPDIF
ARM_RDY
LRCKDIR_HDMI
BCKDIR_HDMI
ADSP_MCK
LRCKDIR_HDMI
SDOUTDIR_HDMIFLR
ADSP1_SD2
ADSP1_SD3
MCK_NET_256fs
HDMI_SPDIF
ARC_SPDIF
HDMI_BCK
HDMI_FLR
HDMI_MCK
HDMI_LRCK
PCMSBLR_DR2
PCMSLR_DR1
PCMCSW_DL1
HDMISPF_DL2
ADSP1_SD4
DIGMUT
DIRINT0
DACCS
44/48
GND_ARM
Z2DACMUT
DIR_RST
DIR_CS
DATA_NET
LRCK_NET
BCK_NET
ETH_INT
USB0_OC_DET
ACP_RST
ETH_RESET
ACP_RST
ACP_CS
ETH_RESET
ETH_INT
USB0_OC_DET
256x48K
BCK_NET
LRCK_NET
MCK_NETZ2_256fs
+5VD
+3.3VMPU
COAX1
OPT2
OPT1
ADSP1_SD1
ADSP1_SD1
ADSP1_SD2
ADSP1_SD3
DACMUT
DACRST
HDMI_SLR
HDMI_SBLR
HDMI_CSW
HDMI_SPDIF
ADSP_MCK
ADSP1_SD0
SPRLF
SPRLCS
SPRLSB
SPRLZ2
PLLSDA
APOWER
RI
DIGMUT
PLLSCL
PLLSEN
ARM_CS
ARM_CS
DACRST
SR+
CT-
CT+
SW-
SW+
FL-
FL+
FR-
FR+
SBL+
SBL-
SBR-
SBR+
SL-
SL+
SR-
HDMIINT
GND
VOLDATA
VOLCLK
SEC1H
VOLH
AMUT
Z2MUT
SBZ2MUT
HPDET
IPROTECT
LEDMUT
+3.3VDD_MPU
+3.3VDD_MPU
GNDA
ADSP_MCK
LRCKDIR_HDMI
BCKDIR_HDMI
ADSP1_BCK
ADSP1_LRCK
ADSP1_SD0
+5VA
+5.2VHD
+3.3VMPU
GND_D
GND_CH
COAX2
COAX1
OPT2
OPT1
RI
PLLRST
PLLSDA
PLLSCL
GND_D
GND
GNDDG
TU_GPIO2
GND
RTAD
LTAD
FR-
FR+
FL+
FL-
SPRLSB
SW-
SW+
APOWER
CT+
SPRLCS
CT-
SL-
SR-
SR+
SL+
HPDET
SBZ2MUT
Z2MUT
AMUT
VOLH
SEC1H
VOLCLK
VOLDATA
IPROTECT
VPROTECT
MIC_MUT
SBL+
SBL-
SBR-
SBR+
Z2NET_L
Z2NET_R
LEDMUT
Z2GND
ACP_CS
SPRLZ2
SPRLF
+3.3VMPU
BOOT3
DAC_CS3
DSP2_RST
DSP2_CS
DSP2_IRQ
DSP2_BSY
DSP2_BTM
USB1_VBUSEN
USB1_OC_DET
DBG/AUDIO
DGSEL2
DIG/NETUSB
DAC_CS2
DGSEL1
RSVD0
MIC_MUT
VPROTECT
PLLRST
from HDMI Block
FROM PART 15(HDMI)
FROM BAHDM-0680
FROM BAHDM-0682
FROM PART 15(HDMI)
FROM BAHDM-0680
FROM BAHDM-0682
FROM PART 15(HDMI)
FROM BAHDM-0680
FROM BAHDM-0682
+3.3V
+5.0VA
+3.3V
+3.3V
+3.3V
+5.0VA
THERMALPAD
MPU PART
HDMI PART
NET/USB PART
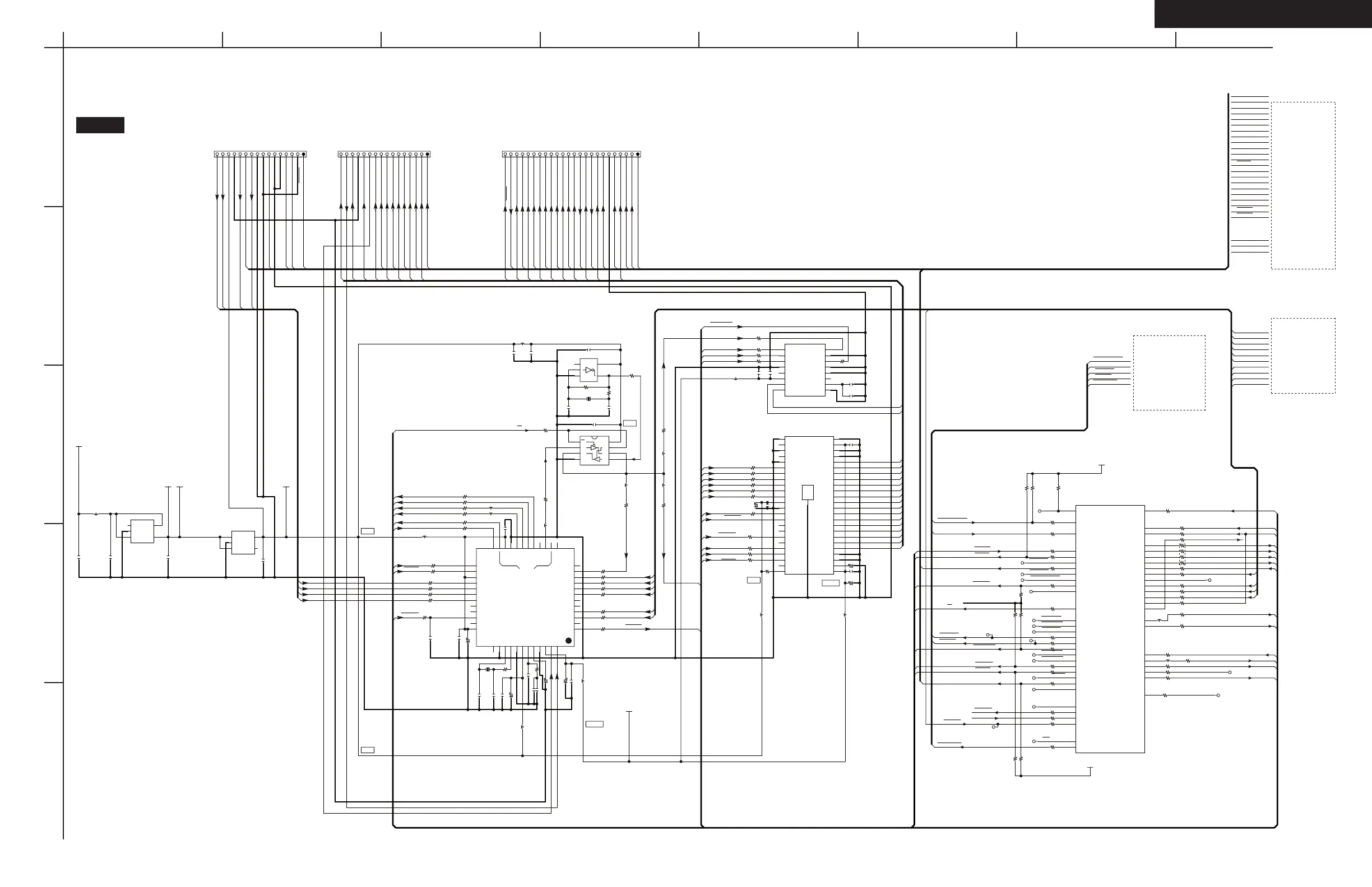
Model No. TX-NR509/TX-NA509/TX-NA509V DIR/DAC SectionSCHEMATIC DIAGRAM (PART-18)
PART-20
PART-14
PART-15
+5VA
R307
330
L303 LBC2518T4R7M
L305
LBC2518T4R7M
R306
33
R304
220
R308
330
R333
220
R321
330
R322
330
C312
221J
R327
220
+5VA
R301
47
C306
220/4
R312
47
R313
47
R314
150
L301 LM182
L302 LM182R315
150
R316
47
R317
330
R3311
470
R3291
1M
R3294
560F
C3223
120J
X3202
11.2896MHz
C3220
120J
R3295
56
Q3205
TC7SZU04FU
1
NC
2
3
GND
4
5
VCC
Q3210
TC7WH241FU
1
G
2
A1
3
Y2
4
GND
5
A2
6
Y1
7
G
8
VCC
R305
220
R323
330
R324
330
R325
330
R326
330
R3314
390
L3207
MMZ1608Y601BT
R3315 180
L3208
MMZ1608Y601BT
Q304
PCM1754DBQR
9
AGND
10
VCOM
11
ZEROA
12
TEST
13
DEMP
14
MUTE
15
FMT
16
SCK
1
BCK
2
DATA
3
LRCK
4
DGND
5
NC
6
VCC
7
VOUT_L
8
VOUT_R
L370
LBC2518T4R7M
R351
330
R354
220
R352
330
R350
330
R361
330
R362
4.7K
C351
220/4
R355
22
R356
22
R357
22
R358
22
R359
22
R360
22
L401
LBC2518T4R7M
L402
LBC2518T4R7M
R3221
47
R3251
47
R3218
22
R3225
22
R3212
22
R3205 10K
R3226
47x4
R3203 10K
R3204 10K
R3284 10K
R3283
10K
R3229
47
R3227
47
R3244
47
R3257
47
R3277
22
R3267
47
R3264
47
R3272
47
R3276
47
R3239
220
R3241
220
R3219
220
R3215
220
R3230
220
R3232
220
R3274
39
R3271
39
R3268
39
R3265
39
R3260
39
R3278
47
TP96
TP38
R3242
220
R3262
220
L3209
MMZ1608Y601BT
R3208
270
L3203
MMZ1608Y601BT
R3247
120
TP37
TP47
R3254
47
TP46
TP45
TP44
TP48
R3255
10K
R3240
10K
R3245
NC
TP43
R3236
47
TP41
TP42
TP49
TP50
R3280
47
TP33
L3206
MMZ1608Y601BT
L3205
BLM18PG181SN1
R3313 180
Q3007
XC6220B501PR
3
NC
2
VSS
1
CE
5
VOUT
4
VIN
L306 LM182 R302
150
R303
220
R373
150
R374
150
R375
150
R372
150
R371
330
TP40
TP32
TP31
TP34
TP35
+5VD
+3.3VMPU
TP36
Q302
PCM1690
1
RSV2
2
RSV1
3
RSV2
4
RSV1
5
RSV2
6
LRCK
7
BCK
8
DIN1
9
DIN2
10
DIN3
11
DIN4
12
VDD
13
DGND
14
SCKI
15
RST
16
ZERO1
17
ZERO2
18
AMUTEI
19
AMUTEO
20
MD/SDA/DEMP
21
MC/SCL/FMT
22
MS/ADR0/RSV
23
TEST/ADR1/RSV
24
MODE
49
ePAD
25
VCC1
26
VCOM
27
AGND1
28
RSV2
29
VOUT8+
30
VOUT8-
31
VOUT7+
32
VOUT7-
33
VOUT6+
34
VOUT6-
35
VOUT5+
36
VOUT5-
37
VOUT4+
38
VOUT4-
39
VOUT3+
40
VOUT3-
41
VOUT2+
42
VOUT2-
43
VOUT1+
44
VOUT1-
45
RSV2
46
AGND2
47
VCC2
48
RSV2
R3237
220
+5.2VHD
L3007
BLM18PG181SN1
C3053
106K/16
C3051
106K/16
C3052
106K/16
C3207
106K/16
C373
106K/16
C3056
106K/16
C370
106K/16
C305
104K
C307 104K
L304
LBC2518T4R7M
C172
180J
C173
180J
R332
680
C315 472K
C316 473K
C320 223K
X171
24.576MHz
R331
220
C313
104K
C317 104K
C3206
105K
C3209 105K
C3226 105K
C352
104K
C355
104K
C371
104K
C372
104K
P8003B
16
15
14
13
12
11
10
9
8
7
6
5
4
3
2
1
P8002B
16
15
14
13
12
11
10
9
8
7
6
5
4
3
2
1
P8001B
24
23
22
21
20
19
18
17
16
15
14
13
12
11
10
9
8
7
6
5
4
3
2
1
R3256
NC
C353
100/16
C354
104K
Q301
PCM9211
25
MC/SCL
26
MS/ADR1
27
MODE
28
RXIN7/ADR1
29
RXIN6/ALRCKI0
30
RXIN5/ABCKI0
31
RXIN4/ASCKI0
32
RXIN3
33
RXIN2
34
RST
35
RXIN1
36
VDDRX
37
RXIN0
38
GNDRX
39
XTI
40
XTO
41
AGND
42
VCC
43
FILT
44
VCOM
45
AGNDAD
46
VCCAD
47
VINL
48
VINR
1
ERROR/INT0
2
NPCM/INT1
3
MPIO_A0
4
MPIO_A1
5
MPIO_A2
6
MPIO_A3
7
MPIO_C0
8
MPIO_C1
9
MPIO_C2
10
MPIO_C3
11
MPIO_B0
12
MPIO_B1
13
MPIO_B2
14
MPIO_B3
15
MPO0
16
MPO1
17
DOUT
18
LRCK
19
BCK
20
SCKO
21
DGND
22
DVDD
23
MDO/ADR0
24
MDI/SDA
C314
220/4
C318
100/16
C319
47/16
C356
47/16
Q3008
BU33TD3WG-TR
1
VIN
2
VSS
3
CE
4
NC
5
VOUT
Q3001:C
D830K013BZKB400Z
R5
GPIO5_3/BOOT3
B4
GPIO2_15
C4
GPIO3_12
N12
GPIO0_8
T14
GPIO0_9
R14
GPIO0_10
P16
GPIO0_11
P14
GPIO0_12
N16
GPIO0_13
N14
GPIO0_14
M16
GPIO0_15
T9
GPIO1_0
N9
GPIO1_3
T10
GPIO1_4
R10
GPIO1_5
P10
GPIO1_6
N10
GPIO1_7
T11
GPIO1_8
R11
GPIO1_9
N8
GPIO1_10
P11
GPIO1_11
N11
GPIO1_12
P8
GPIO1_13
R8
GPIO1_14
R12
GPIO1_15
T12
GPIO2_0
L16
GPIO2_1
N7
GPIO2_2
M14
GPIO2_9
L1
GPIO4_11
D4
AMUTE1/GPIO4_14
A5
AXR2_0
P12
AXR0_14
L4
AMUTE0
D5
AFSX0/BOOT10
C5
ACLKX0
B5
AHCLKX0
K4
AFSX1
K3
ACLKX1
T4
AXR1_11
N3
AXR1_10
M1
AXR1_9
M2
AXR1_8
M3
AXR1_7
M4
AXR1_6
N1
AXR1_5
N2
AXR1_4
P1
AXR1_3
P2
AXR1_2
R2
AXR1_1
T3
AXR1_0
L3
AFSR1
L2
ACLKR1
K2
AHCLKX1
DIR/ DAC SECTION
U0040
BAHDM-0040

Related product manuals