EasyManua.ls Logo

Onkyo TX-SR600/E - Page 12

Onkyo TX-SR600/E
63 pages
Print Icon
To Next Page IconTo Next Page
To Next Page IconTo Next Page
To Previous Page IconTo Previous Page
To Previous Page IconTo Previous Page
Loading...
TX-SR600/E
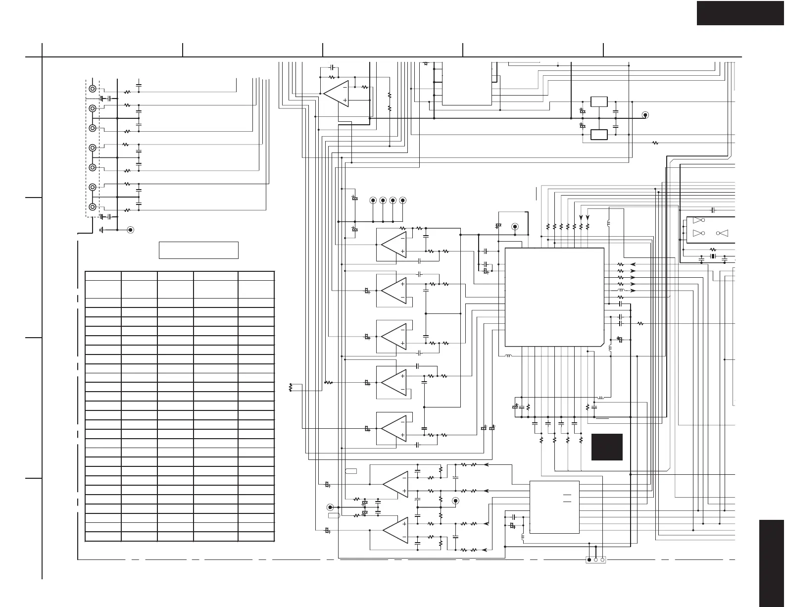
SCHEMATIC DIAGRAM 2-2 DSP section
TX-SR600/E
AB C D
C181 - YES - -
C182 - YES - -
C183 - YES - -
C184 - YES - -
C185 - YES - -
C186 - YES - -
C187 - YES - -
C371 102J 103K 103K 102J
L181 - YES - -
Q101 - YES - -
Q181 - YES - -
R104 - YES - -
R105 - YES - -
R181 - YES - -
R182 - YES - -
R183 - YES - -
R184 - YES - -
R7055 YES - YES YES
R7056 - YES - -
R7057 YES - - -
R7058 - YES YES YES
R7059 YES - - -
R7060 - YES YES YES
R7061 YES - - YES
R7062 - YES YES -
X181 - YES - -
AsiaREGION U.S.A. Europe
Australia
/Kor
ean
P304P305
DVD
MLS/MRS
C/SW
P9501A
J3A
J2
J2A
J1
J1A J4A
P309
P801
Q302
BD3812F
AGND12
AGND24
AGND36
CL 8
DA 9
DGND11
IN11
IN23
MUTE10
OUT114
OUT213
SEL 12
VCC7
VEE
5
Q802
AK4382
BICK 2
CCLK 7
CDTI
8
DZFL
16
DZFR15
L+12
L-11
LRCK 4
MCLK 1
R+10
R-9
SDTI 3VDD14
VSS
13
CSN
6
PDN
5
-12V
+12V
E300
Q305
78L07
G
I
O
Q306
79L07
G
I
O
P2601A
TO NADG-7470
FRONT OPT IN
TVDD
DVDD
VCOM
DFZ1
LOUT3
ROUT3
LOUT2
ROUT2
LOUT1
ROUT1
LIN
RIN
PVDD
VREFH
AVDD
AVSS
DFZ2
CSN
CCLK
CDTI
CDTO
INT1
INT0
SDTI3
SDTI2
PDN
RX1
I2C
RX2
TST
RX3
SLAVE
RX4
PVSS
R
SDTI1
SDTO
BICK
LRCK
MCKO
TX
DVSS
XTI
XTO
Q801
AK4586
1
2
3
4
5
6
7
8
9
10
11
12
13
14
15
16
17
18
19
20
21
22
23
24
25
26
27
28
29
30
31
32
33
34
35
36
37
38
39
40
41
42
43
44
L802
022M
L801
022M
L805
022M
L804
022M
L803
022M
Q707
TC7WU04FU
GND4
1
63
72
5
VCC
8
C834
681J
C825
472J
C833
681J
C836
681J
C826
472J
C835
681J
O
R
O
R
C363
104Z
C364
104Z
10/16
C851
10/16
C852
47/16
C853
10/16
C854
10/16
C856
10/16
C855
10/16
C848
220/16
C849
220/16
C362
220/16
C842
220/16
C841
220/16
C810
220/6.3
C819
220/6.3
C846 47/16
C361
220/16
C847
47/16
C809
10/16
C806
220/6.3
C801
220/6.3
Q806
NJM4565M
5
6
4
7
Q804
NJM4565M
5
6
4
7
Q805
NJM4565M
5
6
4
7
Q304
NJM4565M
3
2
4
1
Q803
NJM4565M
3
8
2
1
Q806
NJM4565M
3
8
2
1
Q805
NJM4565M
3
8
2
1
Q804
NJM4565M
3
8
2
1
R820
10K
R821
10K
R831
2.2K
R388
0
R387
0
R321
330
R320
330
R319
330
R318
330
R317
330
R316
330
R315
330
R860
47
R806
47
R861 47
R807
47
R832
2.2K
R841
8.2K
R842
2.2K
R856
22
R857
22
R808 1K
R818
10K
R814
330
R815
330
R816
330
R817
330
R813
18K
R354
470
R356
2.2K
R829
820
R828
820
R827
820
R826
820
R838
8.2K
R812 220
R811
220
R810
220
R809
1K
R801
470
R802
47
R394
22
(1/2W)
R835
2.2K
R845
2.2K
R833
2.2K
R843
2.2K
R834
2.2K
R844
2.2K
R847
4.7K
R852
120
R853
120
R836
8.2K
R846
4.7K
R837
8.2K
R855
120
R854
120
R839
8.2K
R849
4.7K
R848
4.7K
R803
BK1608LM182
R803:
R804
47
R805
47
R352
10K
R350
10K
R747
1M
C321
221J
C320
221J
C319
221J
C318
221J
C317
221K
C316
221K
C315
221J
C325
104Z
C326
104Z
C827
681J
C829
821J
C828 102J
C837
152J
C816
102J
C812
330J
C813
330J
C811
104Z
C815
330J
C814
330J
C818
104Z
C802
101J
C803
104Z
C732
150J
C733
150
J
C840 152J
C838
153J
C832
821J
C830
822J
C839 152J
C831
821J
C844
104Z
C843
104Z
C808
104Z
C807
104Z
C804
104Z
C345
330J
C731
104Z
V1IRP V1IR
+7V +12VA
DVDLP
DVDL
-12VA
DAC_SW
DVDRP
DVDR
-7V -12VA
MLSP MLS
MRSP MRS
MCP
MC
DIRCS
DSPCLK
DSPSDO
DSPSDI
DIRINT1
DIRINT0
MSWP
MSW
SBDA
+3.3V
C/SWDA
GNDJ2
DAC_SB
+12VA SRDA
-12VA SDTO
BCK
LRCK
DAC_C MCK
DIFTX
DAC_SW
DAC_LS
DIRPD
DAC_RS
+5VDSP
ADCL
OPTIN2
OPTIN1
COAXIN1
ADCR
DAC_L
GNDJ1
LRCK
LRDA
DAC_R
BCK
MCK
+5VDSP
U1
NADG-7460
(SCH.-3)
A
1
2
3
4
BCDE

Related product manuals