EasyManua.ls Logo

Onkyo TX-SR800

Onkyo TX-SR800
88 pages
To Next Page IconTo Next Page
To Next Page IconTo Next Page
To Previous Page IconTo Previous Page
To Previous Page IconTo Previous Page
Loading...
VA
VA
A LENT, E POUR UNE PROTECTION PERMANENTE,N'UTILISER
HAZARD,REPLACE WITH SAME TYPE FUSE. FOR FUSE
THIS SYMBOL LOCATED NEAR THE FUSE INDICATES
ET CALIBRATION COMME INDIQUE.
D'INCENDIE, REMPLACER UNIQUEMENT
PERMANENTE CONTRE LES RISQUES
AFIN D'ASSURER UNE PROTECTION
AGAINST FIRE HAZARD, REPLACE
FOR CONTINUED PROTECTION
INDIQUE LA QU LE PRESENT SYMBOL EST APPOSE.
QUE DES FUSIBLES DE MEME TYPE. CE DARNIER EST
RATING REFER TO THE MAKING ADJACENT TO THE SYMBOL.
FOR CONTINUED PROTECTION AGAINST FIRE FUSE
THAT THE FUSE USED IS SLOW OPERATING TYPE
CE SYMBOLE INDIQUE QUE LE FUSIBLE UTLISE EST
PAR UN FUSIBLE DE MEME TYPE
ATTENTIION
AND RATING INDICATED.
ONLY WITH FUSE OF SAME TYPE
CAUTION
TX-SR800
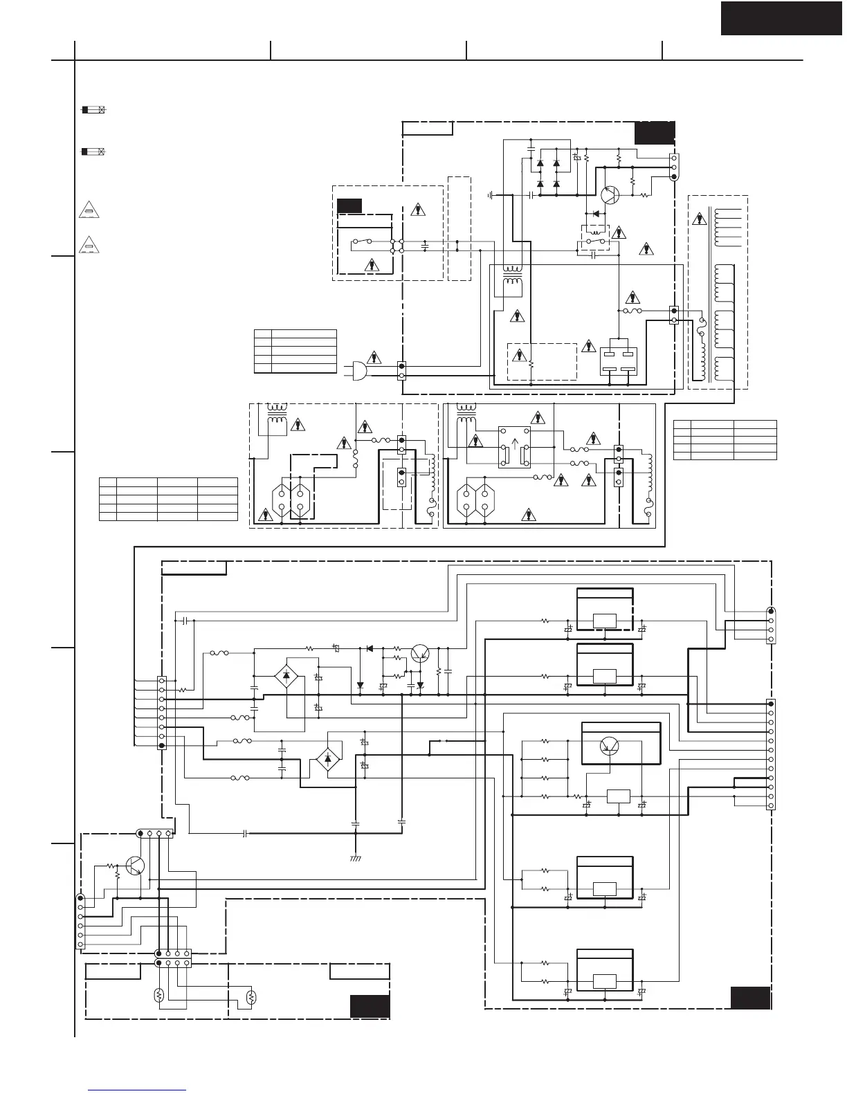
SCHEMATIC DIAGRM 8
Power supply section
JL9503B
P9502A
TO NAAR-7728
(SCH. 9)
T901
P902
AC OUTLETS
TOTAL
100WMAX
PA-TYPE ONLY
P902
AC OUTLETS
TOTAL
100WMAX
S902
VOLTAGE
SELECTOR
220V
120V
T901
THERMAL FUSE
T901
THERMAL FUSE
T902
P/ G
TYPE
14
T902
4
58
1
T902
W
TYPE
134
P918A
P917A
P917
P918
P901
P902
AC OUTLETS
TOTAL
120W MAX
S906
POWER
PT/GT/WT/WR
Q9411
NJM79M18FA
G
IO
Q9441
NJM7905FA
G
IO
R9510
2.2
(1/4W)
R9506
22
(1/4W)
R9508
15K
R9509
33K
R9507
15K
Q9421
NJM78L05A
G
IO
Q9431
NJM7805FA
G
IO
Q9401
NJM78M18FA
G
IO
JL7201B
TO NAETC-7747
(SCH. 1)
JL6953A
JL9504A
P9501
P911
P911
P901A
AC-H
AC-G
P912
P912
G-TYPE ONLY
P911
JL931B
TO NAETC-7733
(SCH. 9)
RL901
F903
T2.5AL250V
F902
*
F901
*
F9503
1.6A/125V
T1.6AL250VP/G/W TYPE:
D TYPE:
F9503,9504:
F9502
2.5A/125V
T2.5AL250VP/G/W TYPE:
D TYPE:
F9501,9502:
F902
*
F901
*
F903
T2.5AL250V
F9504
F9501
D9508
MTZJ27D
P9500
C923
223Z
C921
223Z
C901
103M
/275VAC
DTYPE
SEE BELOW DIAGRAM
FOR OTHER TYPE
C902
472M
/250VAC
C9511
103Z
C9512
223Z
D9501
RS403M
D3SBA20
RBV402
D9502A
RS403M
D3SBA20
RBV402
D923
D921-D924
GP104003E OR
1SR139-100 OR
RL1N4003
D924
D921
D922
D925
D9506
D9507
GP1004003E
RL1N4003
1SR139-100
D9506,7:
J5424
D/PA
J
C9513
334J
C9521
223J
C9522
223J
C9523
223J
C9503
334J
C9504
334J
C9501
334J
C9502
334J
Q9422 2SA1726-Y
/P/O
Q9501
2SA965-Y
C9421
10/35
C922
220/35
C9508
6800/16
C9509
1000/25
C9510
220/63
C9506
1000/35
C9505
2200/35
C9507
220/50
C9441
10/35
C9431
10/35
C9401
10/35
C9411
10/35
C9422
10/35
C9432
10/35
C9412
10/35
C9402
10/35
C9442
10/35
R9425
33
(1/4W)
R9421
8.2
(1W)
R9423
8.2 (1W)
R9413
8.2
(1/2W)
R9403
2.2
R923
4.7K
R901
3.3M
D-TYPE ONLY
R922
4.7K
R926
4.7K
R924
18
(1/2W)
R9521
3.3
(1/2W)
R6901
4.7K
R6902
4.7K
R9422
8.2
(1W)
R9424
8.2
(1W)
R9433
10 (1W)
R9431
10
(1W)
R9442
22
(1W)
R9444
22
(1W)
Q921
2SC1740S
2SC2458
KTC-3199
Q6901
2SC1740S
2SC2458
KTC3199
E921
+13V
MPUGND
POWER
FLA C2
-V P
FLA C1
+18V
-18V
+24V
+12V
-5
VVIDEO
+5VV
IDEO
+5VDSP
+5VDSP
S1RL
+24V
GNDD
FA
N
TYPE T901 T902
D NPT-1454D NPT-1111D
P NPT-1454P NPT-1111P
G NPT- 1454DG NPT-1111DG
W NPT- 1454DG NPT-1111D
G
TYPE AC
D 120V/60 Hz
P
G 220V50Hz
W
TYPE F901 F902 F6901, 2
D 10A/ 125V NO 10A/ 125V
P NO T4AL250V T10AL250V
G NO T4AL250V T10AL250V
W 10A/ 125V T4AL250V T10AL25
0V
NAPS-7711
FLGND
WHT
BLU
BLU
P:ORG
D:YEL
RED
ORG
BLK
ORG
RED
BRN
BLK
BRN
WHT
GRY
GRY
T.F.
NASW-7693
NAPS-7713
NAPS-7712
NAPS-7710
NAPS-7709
WHT
BLU
BLU
ORG
YELYEL
ORG
BRN
BRN
BLK
GRY
GRY
WHT
RLGND
U7
U23
U9
JL9504B
R5654
D
/J-T
YPE:PTH9M04BC
222TS2F333
OTHERS:PTH9M04BD
R5652
PTH9M04BF
222TS2F333
U29
NAETC-7715 NAETC-7714
NAPS-7708
NAPS-7691
GND
GND
GND
(1/2W)
Q6901
TO NAPS-7692
P6951
(SCH. 7)
230-240V 50Hz
120/230V 50/60Hz
A
1
2
3
4
5
BCD

Other manuals for Onkyo TX-SR800

Related product manuals