EasyManua.ls Logo

Onkyo TX-SR800

Onkyo TX-SR800
88 pages
To Next Page IconTo Next Page
To Next Page IconTo Next Page
To Previous Page IconTo Previous Page
To Previous Page IconTo Previous Page
Loading...
TX-SR800
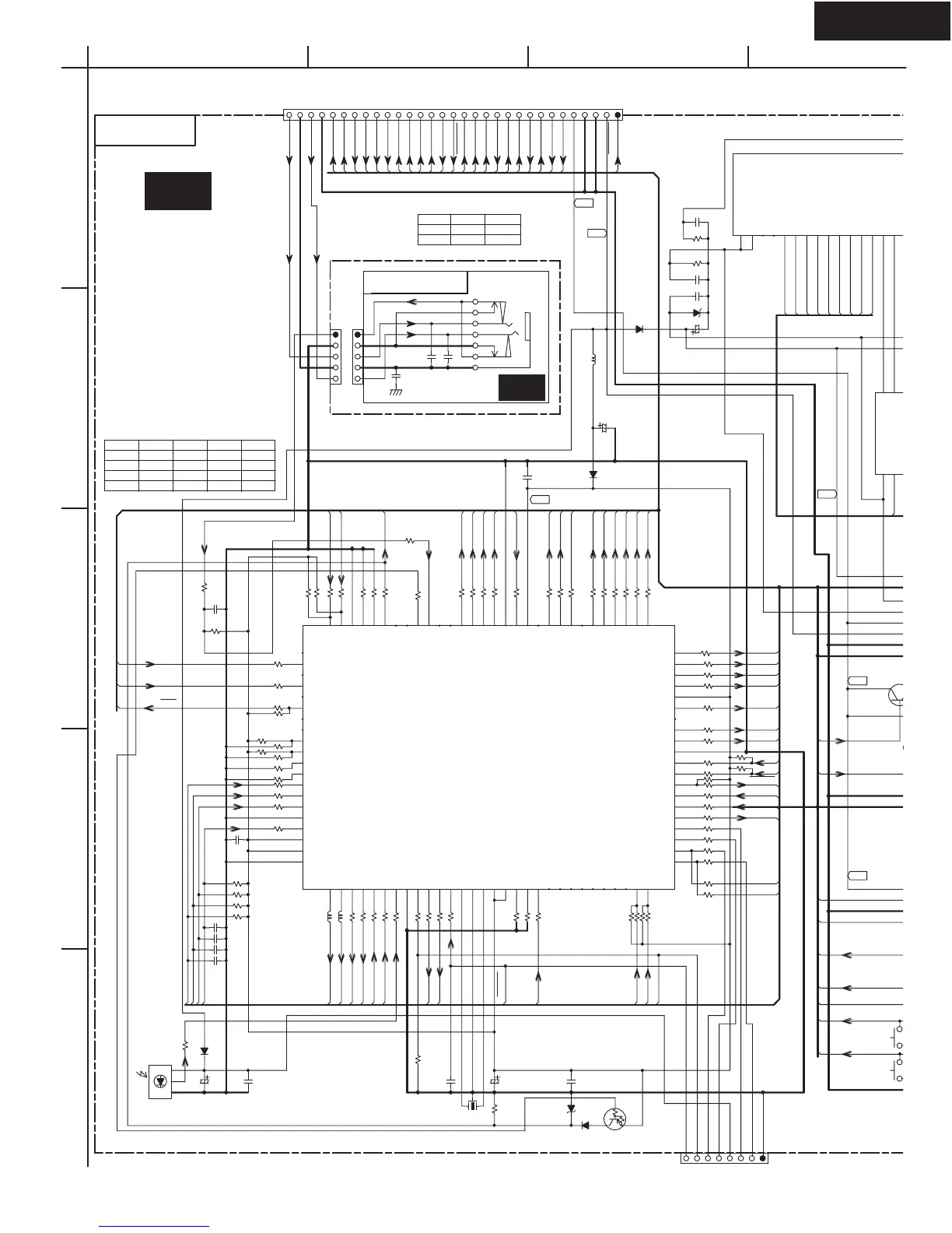
SCHEMATIC DIAGRAM 1-1 Sub-microprocessor and display sections
P7201A (SCH. 9) NAAR-7728
5.0
12.0
12.0
5.6
12.0
5.0
KT
C
OR 2
S
Q7538
KTC38
7
OR 2
S
P36
F2
F2
NP
NP
P35
P34
P33
P32
P31
P30
P29
P28
P27
P26
52
53
54
55
56
57
58
59
60
61
62
63
64
65
66
P7203
JL7202B
JL7202A
U7201
SPS-444-1
L7201
NCH-1471
R7201 L M182
R7202
LM182
P7481
HEADPHONES
*
Q7202
KRA103S
OR RN2403
X7201
CST16.00MXW0C1
Q7201
M30624FGFP-154FP
1:P96/ANEX1/SOUT4
1
24:P76/TA3OUT
24
25:P75/TA2IN/~W
25
26:P74/TA2OUT/W
26
27:P73/~CTS2/~ RTS2/TA1IN/~V
27
28:P72/CLK2 /TA1OUT/V
28
29:P71/RXD2/SC L/TA0IN/TB5IN
29
2:P95/ANEX0/CLK4
2
30:P70/TXD2 /SDA/TA0OUT
30
3:P94/DA1/TB4IN
3
4:P93/DA0/TB3IN
4
51:P43/A19
51
52:P42/A18
52
53:P41/A17
53
5:P92/TB2IN/SOUT3
5
6:P91/TB1IN/SIN3
6
78:P12/D10
78
79:P11/D9
79
7:P90/TB0IN/CLK3
7
80:P10/D8
80
AVCC99
AVSS96
BYTE8
CNVSS9
P00/D088
P01/D187
P02/D286
P03/D385
P04/D484
P05/D583
P06/D682
P07/D781
P100/AN097
P101/AN195
P102/AN294
P103/AN393
P104/AN4/~KI092
P105/AN5/~KI191
P106/AN6/~KI290
P107/AN7/~KI389
P13/D11 77
P14/D12 76
P15/D13/~INT3 75
P16/D14/~INT4 74
P17/D15/~INT5 73
P20/A0[/D0/_] 72
P21/A1[/D1/D0] 71
P22/A2[/D2/D1] 70
P23/A3[/D3/D2] 69
P24/A4[/D4/D3] 68
P25/A5[/D5/D4] 67
P26/A6[/D6/D5] 66
P27/A7[/D7/D6] 65
P30/A8[/_/D7] 63
P31/A9 61
P32/A10 60
P33/A11 59
P34/A12 58
P35/A13 57
P36/A14 56
P37/A15 55
P40/A16 54
P44/~CS0 50
P45/~CS1 49
P46/~CS2 48
P47/~CS3 47
P50/~WRL/~WR 46
P51/~WRH/~BHE 45
P52/~RD 44
P53/BCLK 43
P54/~HLDA 42
P55/~HOLD 41
P56/ALE 40
P57/~RDY/CLKOUT 39
P60/CTS0/RTS0 38
P61/CLK0 37
P62/RXD0 36
P63/TXD0 35
P64/~CTS1/~RTS1/~C
34
P65/CLK1 33
P66/RXD1 32
P67/TXD1 31
P77/TA3IN23
P80/TA4OUT/U22
P81/TA4IN/~U21
P82/~INT020
P83/~INT119
P84/~INT218
P85/~NMI17
P86/XCOUT11
P87/XCIN10
P97/~ADTRG/SIN4100
VCC116
VCC2 62
VREF98
VSS114
VSS2 64
XIN15
XOUT13
~RESET12
SEG26 34
SEG27 33
SEG2831
VP32
D7501
UDZ11B
D7203
UDZ5.1B
C7203
474J
C7204
474J
C7510
33/50
C7201
100/6.3
C7202
100/6.3
C7207
100/6.3
D7502
1SS352
OR
1SS355
D7204
D7201
1SS352
OR 1SS355
D7202
1SS352
OR 1SS355
C7509
474Z
C7501
474Z
C7502
474Z
C7483
104Z
C7482
101J
C7481
101J
C7213
102K
C7208
104Z
C7293
102K
C7294
102K
C7295 102K
C7297 102K
C7206
104Z
C7214
102K
S7574
FM MODE
S7542
DIRECT
R7389
*
R7390
*
R7292 0
R7291 0
R7290
*
R7501 220
R7502
220
R7258 1 0K
R7431
220
R7432
2.2K
R7340
10K
R7339
10K
R7509
330
R7205 1K
R7309
10K
R7229 220
R7271
10K
R7289
*
R7338
10K
R7268
10K
R7267
10K
R7266 1 0K
R7265 1 0K
R7256
10K
R7255 1 0K
R7254 1 0K
R7253 1 0K
R7252 1 0K
R7251 1 0K
R7250 4.7K
R7249
4.7K
R7260 1 0K
R7272 220
R7259 1 0K
R7301
220K
R7330 4.7K
R7386 10K
R7380
10K
R7379
10K
R7329 10K
R7237 220
R7263 1 K
R7276 0
R7277 0
R7286 10K
R7371
10K
R7382
1K
R7279 1K
R7397 2.7K
R7393 2.7K
R7394 2.7K
R7395
2.7K
R7212
1K
R72111K
R7280
1K
R7275
4.7K
R7220 1K
R7230 220
R7219
10K
R7218
10K
R7210
1K
R7209
1K
R7207 1K
R7206 1K
R7204 1K
R7203 1K
R7284 10K
R7282
10K
R7297 4
.7K
R7295 4
.7K
R7294 4
.7K
R7293 4 .7K
R7248 10K
R7247 10K
R7245
10K
R7243 10K
R7242
10K
R7240 10K
R7239 10K
R7238 220
R7236
220
R7235
220
R7234
100
R7233
100
R7232
100
R7231
100
VDST
RI
ISS
HPR
HPE
HPL
GND
SY NC
OSDCS
SUB RES
+1 2V
GND
GND
+5.6S
SUB REQ
SUBPOFF
MAINREQ
FLOSDDA
F LOSDC L
DIMPWM
RE MIN
VDDA
V DCL
VSYNC
23 2RX
23 2TX
NE TTX
NE TRX
SUBSO
MAINSO
M AINSCK
P36
P35
P34
P33
P32
P31
P30
P28
P29
+12V
P27
P26
P25
+5.6S
HPDET
-VP
P28
P29
RI
VDST
MAINREQ
SUBPOFF
TUDOWN
TUNUP
PRE-L
PRE-R
STBY
R
ZDVD
PU RE
UPSPL
RZNET
RZCD
RZPH
RZ AM
RZT1
LEDGRE
SYNC
LEDRED
RZV1
ISS RZV
5
FLRES RZV 4
RZV 3
RZV2 LED RED
VBJ
VAJ
LED GRE
K3
SUBREQ
K2 MAINSCK
K1 MAINSO
SUBSO
K0
NETRX
NETTX
K0
FLOSDDA
FLOSDCL
K1
DIMPWM
M AININ
SUBRES
23 2RX
23 2TX
CNVSS
OS DCS
FL CS1
RE MIN
VDDA
VDCL
VSYNC
AUDIO-SEL
K2
K3
MODEL TXSR800 TXSR800
REGION MDD, MPP OTHER
P7481 SILVER
GOLD
R7289 R7389 R7290 R7390
MDC/MDD 0 - 10K 10K
MPA/MGT 10K 33K 0 -
MWR/MWT 10K 10K 0 -
MJJ - 10K 33K 1 0K
NADIS-7746
NAETC-7749
GND
P7483
GND
U44
U46
A
1
2
3
4
5
BCD

Other manuals for Onkyo TX-SR800

Related product manuals