EasyManua.ls Logo

Optimum OPTIdrill B20 - Schaltplan - Wiring Diagram B20; B25; B32 (~400 V)

Optimum OPTIdrill B20
62 pages
Print Icon
To Next Page IconTo Next Page
To Next Page IconTo Next Page
To Previous Page IconTo Previous Page
To Previous Page IconTo Previous Page
Loading...
Version 1.0.1 - 2020-7-2358 Originalbetriebsanleitung
B20 | B25 | B32
de | en
B20-B32_parts.fm
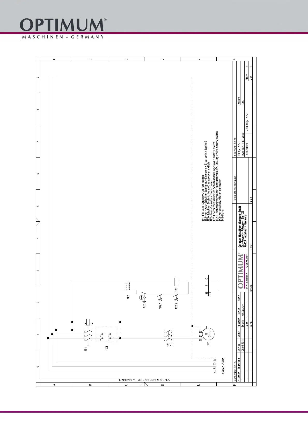
9.8 Schaltplan - Wiring diagram B20/ B25/ B32 (~400V)
Abb.9-5: Schaltplan - Wiring diagram B20/ B25/ B32 (~400V)

Table of Contents

Related product manuals