EasyManua.ls Logo

Panasonic CS-F14DD3E5 - 5 Refrigeration Cycle; Cs-F14 Dd3 E5 Cu-B14 Dbe5 Cs-F18 Dd3 E5 Cu-B18 Dbe5

Panasonic CS-F14DD3E5
105 pages
To Next Page IconTo Next Page
To Next Page IconTo Next Page
To Previous Page IconTo Previous Page
To Previous Page IconTo Previous Page
Loading...
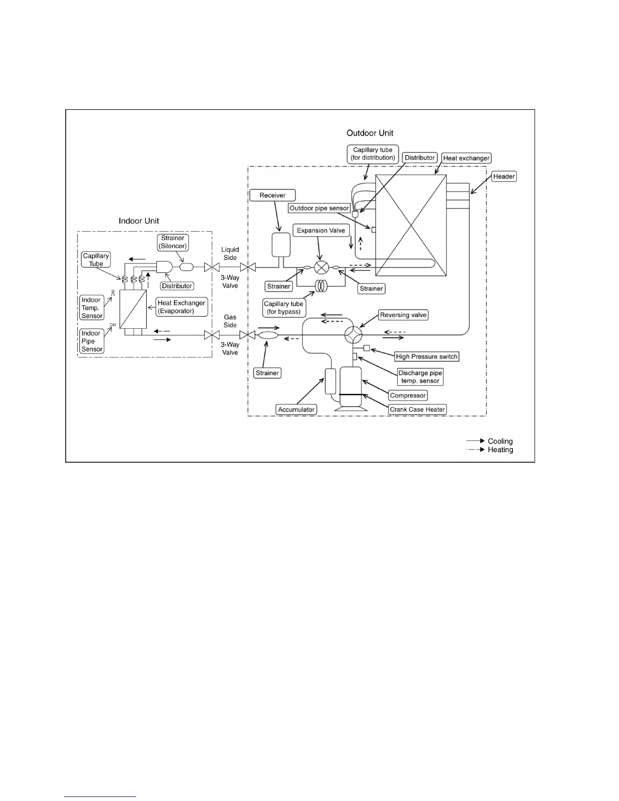
5 REFRIGERATION CYCLE
5.1. CS-F14DD3E5 CU-B14DBE5
CS-F18DD3E5 CU-B18DBE5
10

Table of Contents

Other manuals for Panasonic CS-F14DD3E5

Related product manuals