EasyManua.ls Logo

Panasonic CS-F14DD3E5 - Electrical Wiring

Panasonic CS-F14DD3E5
105 pages
To Next Page IconTo Next Page
To Next Page IconTo Next Page
To Previous Page IconTo Previous Page
To Previous Page IconTo Previous Page
Loading...
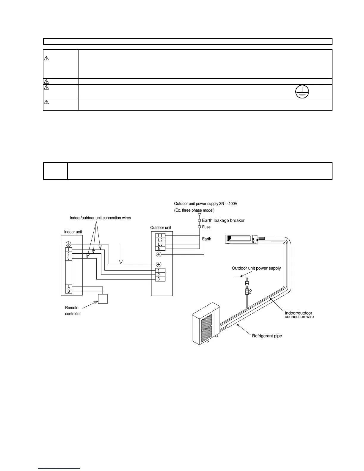
10.3.7. Electrical wiring
As to main power source and cable size of outdoor unit, read the installation manual attached to the outdoor unit.
The units must be installed in accordance with applicable national and local regulations.
Warning The units installed by a professional installer must be supplied from a dedicated electrical circuit.
All electrical work must be carried out by a qualified technician according to proper technical standards for electrical work and
according to installation manual for installation work.
If circuit with insufficient capacity are used, or if electrical work is not carried out properly, electric shocks or fire may result.
Caution Be sure to install a current leakage breaker or circuit breaker to the main power supply, otherwise electric shocks may result.
Caution Be sure to connect the unit to secure earth connection. (with an earth resistance of 100 or less)
If the earthing work is not carried out properly, electric shocks may result.
Warning Wiring shall be connected securely using specified cables and fix them securely so that external force of the cables may not
transfer to the terminal connection section. Imperfect connection and fixing leads to fire, etc.
1. Select a power source that is capable of supplying the current required by the air conditioner.
2. Feed the power source to the unit via a distribution switch board designed for this purpose, the switch should disconnected all
poles with a contact separation of at least 3 mm.
3. Always ground the air conditioner with a grounding wire and screw to meet the LOCAL REGULATIONS.
4. Be sure to connect the wires correctly to terminal board with connecting the crimp type ring terminal to the wires.
5. Be sure to turn off the main power before installing and connecting the remote controller.
Note If momentarily turning on the power supply for both the indoor and outdoor units, do not turn the power off after at least 1 minute has
passed. (For the system’s automatic setting.)
Turning off the power supply on the way may cause an abnormal operation.
Use the standard power cord for Europe (such as H05RN-F or H07RN-F which conforms to CENELEC (HAR) rating
specifications) or use the cables based on IEC standard. (245IEC57, 245IEC66)
41

Table of Contents

Other manuals for Panasonic CS-F14DD3E5

Related product manuals