EasyManua.ls Logo

Panasonic CU-10ME1XPK - Page 148

Panasonic CU-10ME1XPK
643 pages
Print Icon
To Next Page IconTo Next Page
To Next Page IconTo Next Page
To Previous Page IconTo Previous Page
To Previous Page IconTo Previous Page
Loading...
PACD011001C2 Test Operation
Test Operation Urban Multi “MX1, ME1 Series” Using R-22 127
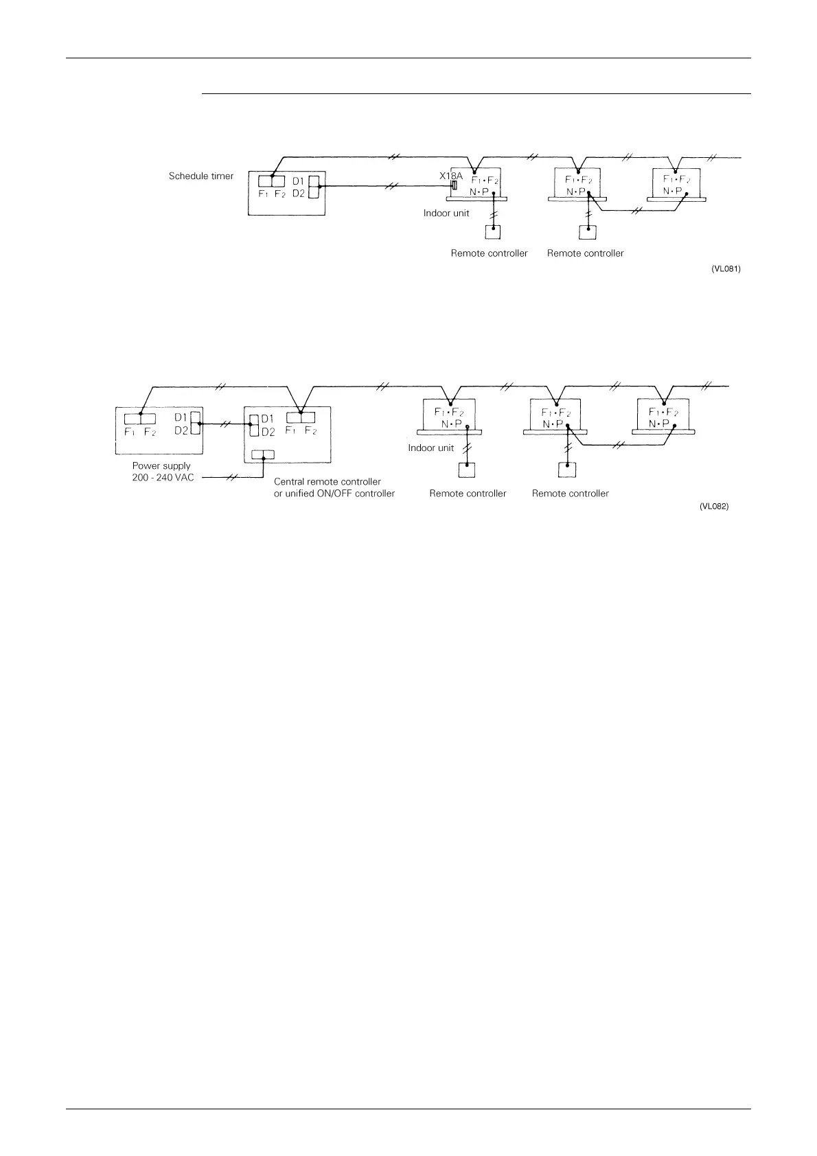
Wiring for
Transmission
<Indoor unit wiring>
1. If schedule timer individual use:
For the schedule timer’s power supply, connect the schedule timer’s connectors (D1/D2) and the
connector on the indoor unit’s PC board (CN18) with the attached cable and crimp style terminals.
2. If using in combination with other optional controllers for centralised control:
Wiring for transmission: 0.75~1.25 mm² sheathed vinyl cord or cable (double core)....Max. extension
1000 m (Total wiring length 2000 m)
<Connection example of wiring for transmission>
(1)series wiring, (2) bus type wiring and (3) star type wiring are the same as with a central remote
controller.

Table of Contents

Other manuals for Panasonic CU-10ME1XPK

Related product manuals