EasyManua.ls Logo

Panasonic CU-10ME1XPK - Pump down Residual Operation

Panasonic CU-10ME1XPK
643 pages
Print Icon
To Next Page IconTo Next Page
To Next Page IconTo Next Page
To Previous Page IconTo Previous Page
To Previous Page IconTo Previous Page
Loading...
PACD011001C2 Function
Function Urban Multi “MX1, ME1 Series” Using R-22 39
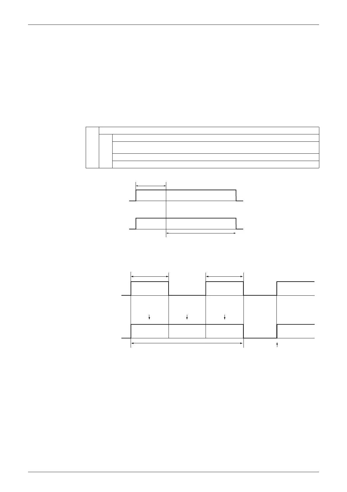
1.12 Pump Down Residual Operation
1.12.1 MX1 Series
If refrigerant is remaining in the accumulator when the compressor starts, liquid refrigerant is sucked into
the compressor, diluting the refrigerant machine oil and reducing the lubricating performance. To prevent
this, the pump-down operation discharges refrigerant from the low pressure side when the unit is not in
operation.
Residual operation may be carried out for 10 minutes under the following conditions when heating.
1. When outdoor temperature (R1T) is
-5°C and inverter discharge pipe temperature (R3-1T) < 95ºC,
and a OFF by thermostat command is received with the compressor’s continuous operation time being
10 minutes or less, residual operation is carried out for a maximum of 10 minutes.
2. When the thermostat is ON during residual operation, residual operation is not carried out if the total of
1+2+3 is 10 minutes or more.
3. When outdoor temperature (R1T) < -5°C and a stop command is received from the thermostat sensor,
etc., residual operation is carried out for 10 minutes without fail. (Operation may however stop for
discharge pipe or high/low pressure safety.)
&
Discharge pipe thermistor (R3-1T) on inverter side: 95°C or lower
OR
Outside air temperature thermistor (R1T) < 0°C
When compressor continuous operating time is less than 10 minutes and thermostat is OFF, or
when stop command is received from remote controller
Within 20 minutes after defrost or oil return operation
T0 (oil temperature)
Te+10
Thermostat
Compressor and
outdoor unit fan
Max. 10 min.
ON
OFF
ON
OFF
Residual operation for 10 min.
Operation may stop during the 10 minutes
residual operation due to protection discharge,
high/low pressure, etc.
(VL006)
Thermostat
Max. 10 min. Max. 10 min.
Compressor and
outdoor unit fan
Residual
operation
Residual operation not carried out
if 1 + 2 + 3 is 10 minutes or more.
ON
OFF
ON
OFF
(VL007)
Thermostat
ON
12 3

Table of Contents

Other manuals for Panasonic CU-10ME1XPK

Related product manuals