EasyManua.ls Logo

Panasonic CU-10ME1XPK - Low Noise Operation

Panasonic CU-10ME1XPK
643 pages
Print Icon
To Next Page IconTo Next Page
To Next Page IconTo Next Page
To Previous Page IconTo Previous Page
To Previous Page IconTo Previous Page
Loading...
PACD011001C2 Test Operation
Test Operation UM Combination “MA1R Series” Using R-407C 469
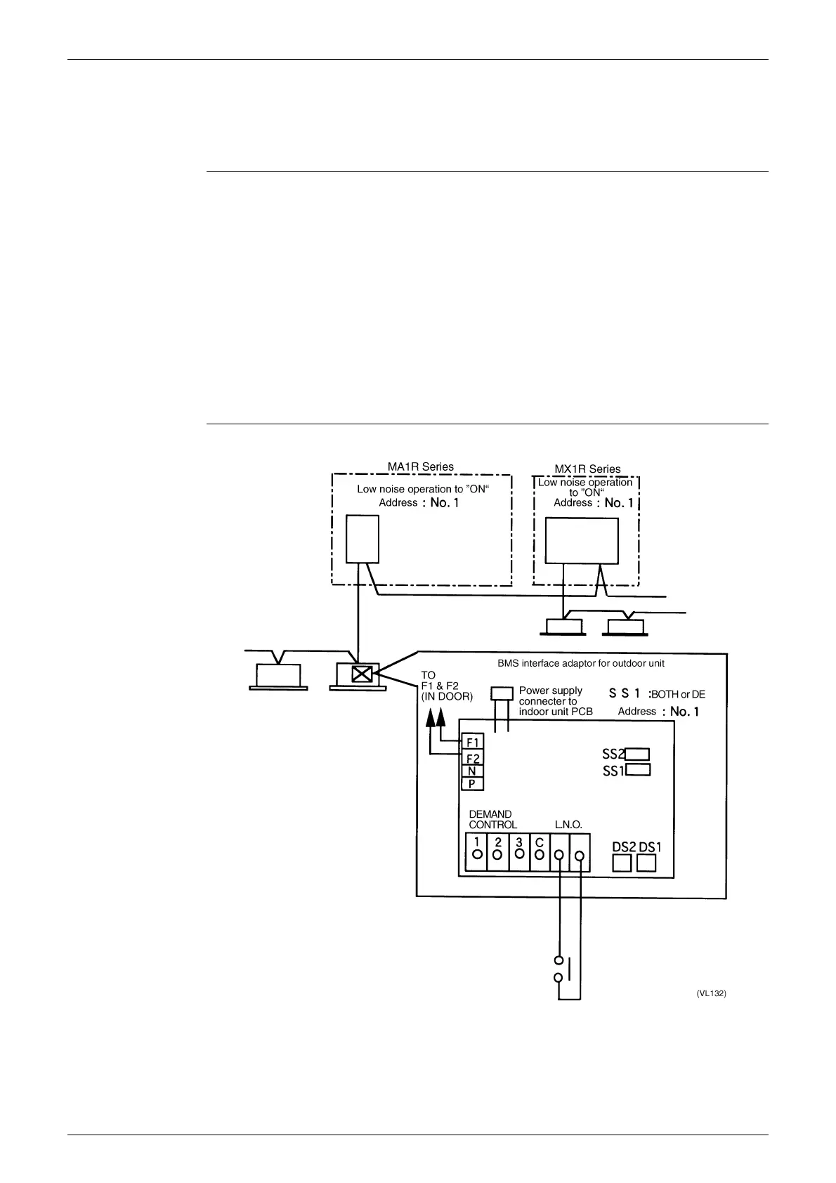
1.6 Low Noise Operation
By connecting the external contact input to the low noise input of the BMS interface adaptor for outdoor unit
(optional), you can save power and lower operating noise by 2 -3 dB.
Instructions for
Demand Control
Operation
1. Outdoor unit field setting
Setting mode 1: Set low noise operation to “ON.”
Setting mode 2: Match low noise operation and demand control address with address of BMS interface
adaptor for outdoor unit.
2. BMS interface adaptor for outdoor unit setting
Function switch (SS1)
Set to “BOTH” or “DE.”
Address setting switches (DS1, DS2)
Match with outdoor unit low noise operation and demand control address.
3. Short-circuit the low noise input of BMS interface adaptor for outdoor unit.
Low Noise Control
System Example

Table of Contents

Other manuals for Panasonic CU-10ME1XPK

Related product manuals