EasyManua.ls Logo

Panasonic CU-10ME1XPK - Page 588

Panasonic CU-10ME1XPK
643 pages
Print Icon
To Next Page IconTo Next Page
To Next Page IconTo Next Page
To Previous Page IconTo Previous Page
To Previous Page IconTo Previous Page
Loading...
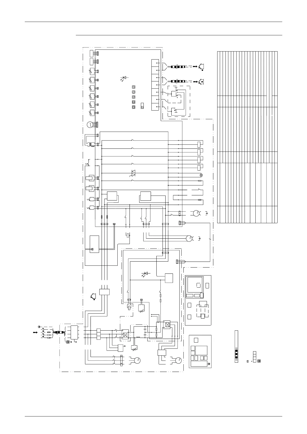
PACD011001C2 Wiring Diagrams (Outdoor Unit)
Appendix 567
CU-8·10MX1SPP
X2M
(ALARM-WHITE)
TERMINAL BOARDX2M
X2M
TSR
NOTES
: TERMINAL
X1M
A3P
X26A
SS1
SS2
XCS
K9R
XCS
J2HC
BS5BS4BS3
HAP
X1A
R5T
t
R2R1
K2R
K1R
R1V
u
FUSE (250V, 10A)
K1M, K2M
V1TR
RED
BLK
BLK
WHT
RED
M
1
YLW
WHT
C2R
MF2
K2M
K1R
XCS
X3S
PNK
BLU
PRC
K10R
K5R
K7R
K6R
X14S
X13S
X12S
X11S
X10S
X7S
X9S
XCS
HWL
XCS
XCS
XCS
XCS
X8S
X6S
Y4SY3SY2SY1R
K2M
J1HC
K4R
FC
FH
X6A
BLU
K2M
F2C
3
M
M2C
W
V
U
RED
WHT
BLK
HAP
H4P
H3P
H2P
H1P
H7P
H6P
H5P
H4P
H3P
H2P
H1P
FIELD WIRING
BRN : BROWN
BLU : BLUE
BLK : BLACK
PNK : PINK
ORG : ORANGE
GRY : GRAY
RED : RED
WHT : WHITE
YLW : YELLOW
CONNECTING THE CENTRAL REMOTE CONTROLLER.
INSTALLATION MANUAL ATTACHED TO THE CENTRAL REMOTE CONTROLLER, WHEN
TRANSMISSION F1-F2, OUTDOOR-OUTDOOR TRANSMISSION F1-F2. REFER TO THE
2. REFER TO THE INSTALLATION MANUAL, FOR CONNECTION WIRING TO INDOOR-OUTDOOR
1. USE COPPER CONDUCTORS ONLY.
: CONNECTOR
: WIRE CLAMP
COLORS :
: PROTECTIVE EARTH (SCREW)
N : NEUTRAL
L1, L2, L3 : LIVE
PM
FL
M
1
+
-
W
V
U
X1A
X4A
outdoor
BLK
RED
BLK
WHT
RED
L1R
X1A
PC
T1C
BLK
WHT
RED
C3R
C4R
K1M
F1S
R
Z1F
BS2BS1
380-415V
3N 50Hz
¨
L1 L2 L3 N
F6U
F1C
L1
L2 L3
N
DM
-
+
-
+
R4
-
+
R3
ST
X4A
t
X2A
R1T
YLW
WHT
C1R
RED
BLK
ORG
X7A
FH
FC
K2R
K3R
MF1
F2U
X2A
X5A
F1U
SD
A1P
3
Z3F
X3A
A2P
K1M
T1R
INV
Z2F
(F2)(F1)(F2)(F1)
(C)(B)(A)
M
Y1E
BS1
X17A
R3-1T
t
X19A
X12A
X16A
R4T
t
X20AX18A
R3-2T
t
BS2
R2T
t
R1T
t
SENPL
X21A X22A
indoor
outdoor
FAN
HEAT
COOL
HEAT
COOL
SS1
K1M
L1R
PM
R3,R4
DM
A2P
Z2F
R1V
F1S
C4R
C3R
F2C
K2M
C1R
C2R
Z1F
A1P
Z3F
A3P
T1R
SWITCH BOX (LEFT)
INVERTER BOX (RIGHT)
X10A
S2PH
X11A
X1S
X2S
F2C
X8A
Q1M
X9A
Q2M
S1PH
CAPACITOR
(MODE,SET,RETURN,WIRING CHECK,RESET)
PRINTED CIRCUIT BOARD
J1HC, J2HC
PUSH BUTTON SWITCH
DC CURRENT TRANSFORMER
REACTOR
HWL
H1P-7P
OVER-CURRENT RELAY (M2C)
F6U
F1U,F2U
F2C
F1S
C1R-4R
THERMAL PROTECTOR (KLIXON) (MF1, MF2)
4 WAY VALVE
SOLENOID VALVE (INJECTION M2C)
SOLENOID VALVE (INJECTION M1C)
SOLENOID VALVE (HOT GAS)
PRESSURE SWITCH (HIGH)S1PH,2PH
EARTH LEAK DETECTOR
SS1
OPTIONAL PARTSPILOT LAMP
TRANSFORMER (220-240V/22V)
THERMISTOR (SUCTION)
T1R
T1C
INVERTER
MOTOR (COMPRESSOR)
INV
THERMISTOR (FIN) (A2P)
SELECTOR SWITCH (COOL/HEAT SELECT)
PRESSURE SENSOR (LOW)
R1T
SS1
SENPLA1P, A2P, A3P
THERMISTOR (AIR) (A1P)R1T
PRESSURE SENSOR (HIGH)SENPH
R2T
R3-1T,-2T
THERMISTOR (COIL)
THERMISTOR (DISCHARGE)
COOL/HEAT SELECTOR
R4T
R1V
TERMINAL STRIP
NOISE FILTER
SD
Z1F-3F
K1R, K2R MAGNETIC RELAY (A2P)
Y1E
V1TR
SURGE ARRESTER
L1R
Y1R
X1M
R1-4 RESISTOR
COMPRESSOR CONTACTOR (M1C, M2C)
PC POWER CIRCUIT
BS1-5
EXPANSION VALVE (ELEC. TYPE)
CRANKCASE HEATER
FIELD FUSE
(SERVICE MONITOR-ORANGE) (A1P)
LIGHT EMITTING DIODE
DIODE MODULEDM
(SERVICE MONITOR-RED) (A2P)
LIGHT EMITTING DIODE
H1P-4P
(SERVICE MONITOR-GREEN) (A1P)
LIGHT EMITTING DIODE
HAP
(SERVICE MONITOR-GREEN) (A2P)
LIGHT EMITTING DIODE
HAP
F1C
K1R
K2R, K3R
MAGNETIC RELAY (K2M)
MAGNETIC RELAY (M1F) (A1P)
K4R-10R MAGNETIC RELAY
M1C, M2C
M1F, M2F MOTOR (FAN)
POWER MODULEPM
PHASE REVERSAL DETECT CIRCUITPRC
Q1M, Q2M
R5T THERMISTOR (OIL)
VARISTOR
SAFETY DEVICES INPUT
SOLID STATE RELAY
Y4S
Y3S
Y2S
SS2 SELECTOR SWITCH (COOL/HEAT)
SELECTOR SWITCH (FAN/COOL,HEAT)
GRY
BRN
X5A
GRY
GRY
SENPH
X15A
BLU
3
M
M1C
W
V
U
X3A
t
2TW22566-1A

Table of Contents

Other manuals for Panasonic CU-10ME1XPK

Related product manuals