EasyManua.ls Logo

Panasonic DMR-EH65EE

Panasonic DMR-EH65EE
101 pages
To Next Page IconTo Next Page
To Next Page IconTo Next Page
To Previous Page IconTo Previous Page
To Previous Page IconTo Previous Page
Loading...
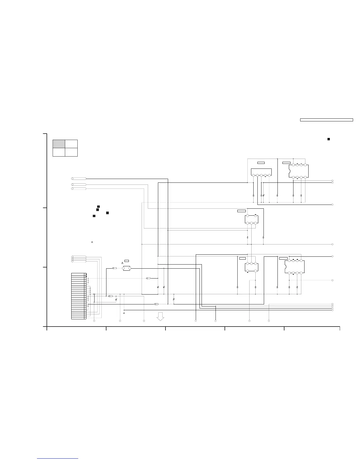
13.3. Main Net (1/4) Section (Main P.C.B. (1/4)) Schematic Diagram (M)
A B C
D
E F
G
F1H1A105A028
C1520
F1H1A105A028
C1522
3
1
2
4
5
IC1505
C0CBCBC00174
C1539 F1H1A105A028
C1540 0.01
F1H1A105A028C1535
F1J0J106A014C1536
C1537 $[F2A1A470A388]
F1H1A105A028C1538
67 5
2 43
8
1
C0CBCDD00027
IC1507
421 3 5
C0CBCDG00006
IC1510
0.01C1509
F1H1A105A028
C1510
F1H1A105A028
C1508
F2A1E1010067
C1504
C1518
10V100
C1512
F1H1A105A028
C1511
F1H1A105A028
3
1
2
4
5
IC1520
C0CBCDC00052
67 5
2 43
8
1
C0CBCBD00048
IC1521
X_SW_3R3V
RESET_5R2V
1
2
K5H302100004
IP1501
J0JKB0000003
LB1503
C1515
F2A1E4700048
6
7
5
9
12
10
11
18
19
16
17
13
15
14
8
1
3
4
2
K1KA19A00007
P1501
TO P1102
POWER P.C.B.
G1501$
LB1502 J0JKB0000003
J0JKB0000003
LB1506
F2A1A6810022
C1503
J0JKB0000003
LB1504
GND
X_SW5R8V
X_SW5R8V
X_SW5R8V
X_SW5R8V
X_SW5R8VT
GND
GND
GND
GND
P_ON_H
X_SW3R8V
X_SW12V
X_SW12V
X_SW12V
X_SW3R8V
X_SW3R8V
21
22
20
FANLOCK
FAN_GND
23
FANOUT
P_SAVE_L
X_SW12V
P
T
T
X_SW15R5V
ANA3R3VANA5V
NC
NC
X_SW5R2V
(MM1685C)
NC
CN
GND
V OUT
ON[H]
V IN
NC
GND
V IN
V OUT
ON[H]
TUREG5V
(PG050DNA1ZPH)
VO NC
VIN CNTGND
(S-815A33AMC-I2STFG)
X_SW3R3
NC
CN
GND
CNT VINGND
VONC
V OUT
NC
NC
V IN
ON[H]
(MM16830)
(S-815A50AMC-I3JTFG)
1
2
3
4
5
6
7
8
9
10
P_SAVE_L
T
FANLOCK
T
FANOUT
T
X_SW_3R8V
T
54321
C
B
A
TO
MAIN NET SECTION
(3/4)
NOTE:DO NOT USE THE PART NUMBER SHOWN ON THIS DRAWING FOR ORDERRING.
THE CORRECT PART NUMBER IS SHOWN IN THE PARTS LIST,AND MAY BE
SLIGHTLYDIFFERNT OR AMENDED SINCE THIS DRAWING WAS PREPARED.
A
DMR-EH65EE/GC/GCS/GN
Main Net(1/4) Section
(Main P.C.B.(1/4))
Schematic Diagram(M)
M:Main Net Section:(Page: )
A
AV:A/V I/O Section:(Page: )
B
DE:Nicam Decoder Section:(Page: )
C
T:Timer Section:(Page: )
D
WHEN REPLACING ANY OF THESE COMPONENTS.ONLY THE SAME TYPE.
COMPONENTS IDENTIFIED WITH THE MARK HAVE THE SPECIAL CHARACTERISTICS FOR SAFETY.
IMPORTANT SAFETY NOTICE:
LOCATION MAP
1/4 2/4
3/4 4/4
DMR-EH65EE / DMR-EH65GC / DMR-EH65GCS / DMR-EH65GN
53

Table of Contents

Related product manuals