EasyManua.ls Logo

Panasonic DMR-EH65EE

Panasonic DMR-EH65EE
101 pages
To Next Page IconTo Next Page
To Next Page IconTo Next Page
To Previous Page IconTo Previous Page
To Previous Page IconTo Previous Page
Loading...
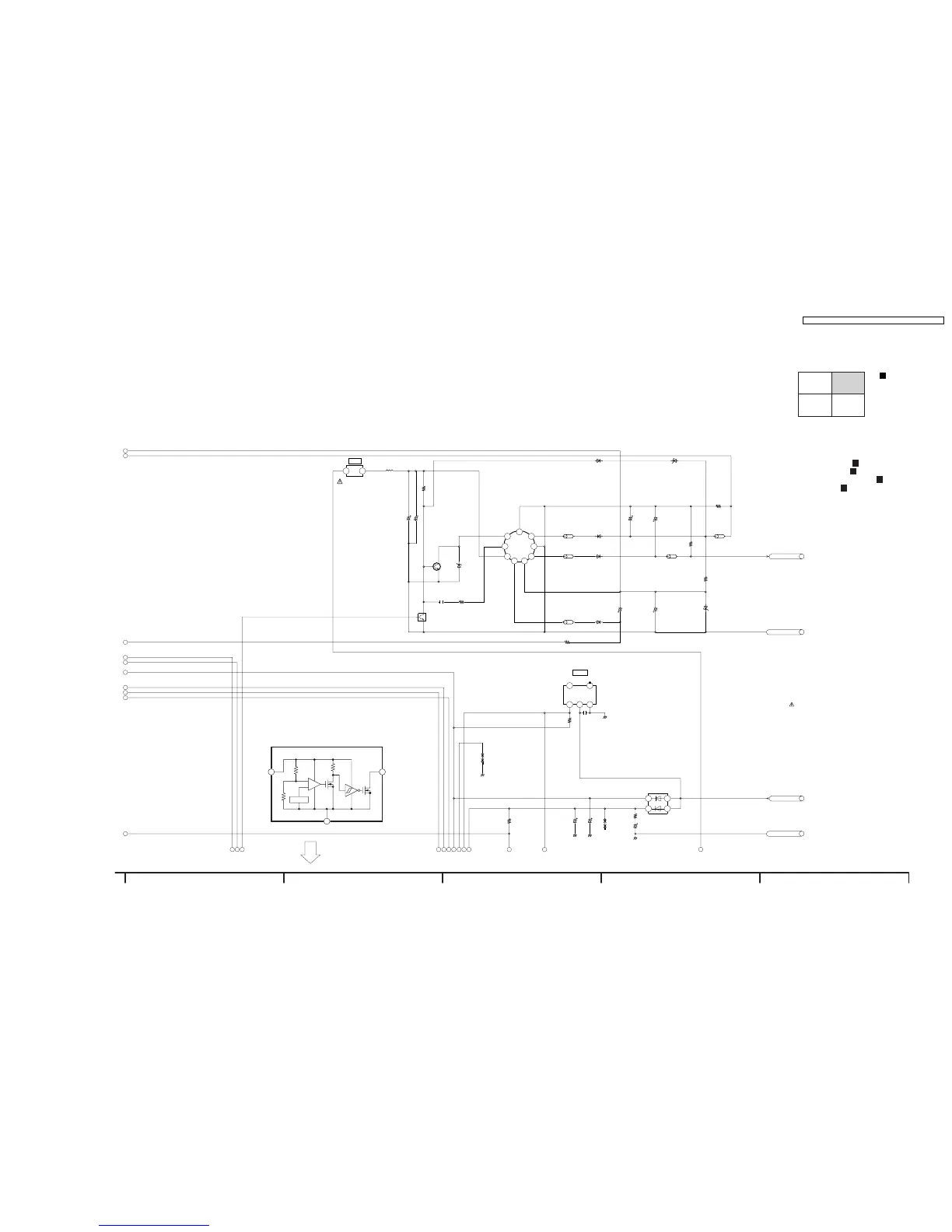
13.13. Timer (2/4) Section (Main P.C.B. (4/4)) Schematic Diagram (T)
H I J LK M N O P Q S TR
F2A0J470A012
C7579
TW7501
VWJ0795=5
F2A0J470A012
C7578
F4D55473A013
C7584
R7623
180
R7621
100K
D7504
MAZ4220NLF
LB7518
VWJ0795=5
C7571
F2A1H100A454
C7573
F2A1H100A454
3
2
4
1
B0JDCE000002
D7509
ERJ3GEY0R00V
LB7515
B0AADM000003
D7505
47
R7614
B0BA03600021
D7501
VWJ0795=5R7618
ERJ3GEY0R00V
LB7517
D7507
B0JAMD000026
C7572
16V120
B0AADM000003
D7506
5
3
4
8
7
6
2
1
9
G4D1A0000117
T7501
ERJ3GEY0R00V
LB7516
B1BABK000001
Q7510
UNR521400L
QR7508
ECQB1H392KF3
C7569
C7570
F2A1V560A387
MA2C165001VT
D7510
ELESN390JA
G0C390JA0055
L7501
1
2
IP7501
K5H7512A0010
F2A1C121A453
C7565
R7612 5600
R7619
10K
3
1
2
4
5
IC7505
C0EBJ0000336
C0EBJ0000110
C0EBJ0000153
C7577
0.1
X_SW_5R2V
GND
UNREG_38V
DDGND
R7616
47K
LB7519
VWJ0795=5
R7615
47K
MAZ4180NHF
D7508
ERDS2TJ271T
R7617
M
M
M
M
(BD485G)
5VDET
or
G
(R3111N451A-TL)
or
VDD GNDOUT
NC
1
2
3
4
5
6
7
8
9
10
GND
VDD
OUT
1
3
2
Vref
+
-
F2A1C121A453
C7593
K7504
0
NOTE:DO NOT USE THE PART NUMBER SHOWN ON THIS DRAWING FOR ORDERRING.
THE CORRECT PART NUMBER IS SHOWN IN THE PARTS LIST,AND MAY BE
SLIGHTLYDIFFERNT OR AMENDED SINCE THIS DRAWING WAS PREPARED.
109876
D
TO
TIMER SECTION
(4/4)
DMR-EH65EE/GC/GCS/GN
Timer(2/4) Section
(Main P.C.B.(4/4))
Schematic Diagram(T)
M:Main Net Section:(Page: )
A
AV:A/V I/O Section:(Page: )
B
DE:Nicam Decoder Section:(Page: )
C
T:Timer Section:(Page: )
D
WHEN REPLACING ANY OF THESE COMPONENTS.ONLY THE SAME TYPE.
COMPONENTS IDENTIFIED WITH THE MARK HAVE THE SPECIAL CHARACTERISTICS FOR SAFETY.
IMPORTANT SAFETY NOTICE:
IC7505
RESET
IC-DETAIL BLOCK DIAGRAM
LOCATION MAP
1/4 2/4
3/4 4/4
DMR-EH65EE / DMR-EH65GC / DMR-EH65GCS / DMR-EH65GN
65

Table of Contents

Related product manuals