EasyManua.ls Logo

Panasonic DMR-EH65EE

Panasonic DMR-EH65EE
101 pages
To Next Page IconTo Next Page
To Next Page IconTo Next Page
To Previous Page IconTo Previous Page
To Previous Page IconTo Previous Page
Loading...
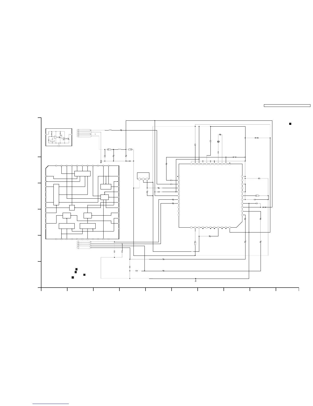
13.11. Nicam Decoder Section (Main P.C.B. (3/4)) Schematic Diagram (DE)
0.1(EXCEPT EG)
C7314
R7307
0
C7301
0.1
0.1
C7333
0
R7322
K7303
0
K7308 ERJ3GEY0R00V
C7332 0.1
ERJ3GEY0R00V
C7329
H0D245500016
X7301
C7330
8200P
C7312
F2A1V100A384
K7307
VWJ0795
220
R7313
R7312 220
ECA1CAK470XB
C7317
J0JCC0000124
LB7302
C7313
F2A1V100A384
C7324
0.1
C7323 1000P
LB7301
J0JCC0000124
R7324 220
R7325 220
4140 4442 43
29
28
27
34 3635 3837
32
33
31
30
39
25
24
26
1321 19 182022 15 1417 16
23
12
10
3
2
4
1
9
7
5
6
8
11
IC7301
C1AB00002225
C7334
50V2.2
(EXCEPT EG)
21 3
IC7302
C0EAH0000051
J0JCC0000080
LB7303
0.01
C7306
0.1
C7340
G_SIFIN_A
G_TU_A_IN_A
TU_REG5V
GND
C7305
16V100
ECA1CAK101XB
C7303
L7304
2.2u
G0C1R0JA0019
L7303
R7326
0
LB7304
J0JHC0000032
R7304
100
G_IIC_DATA_A
G_DEC_L_A
G_DEC_R_A
G_IIC_CLK_A
C7307
10P
C7310
100P
100P
C7309
C7308
10P
R7317 0
R7319 0
0.1
C7335
M
M
VDDA1/CDE1SD0/LPF
VSSD1/N.C
TP1/N.C
TP2/N.C
VSSA1/N.C
SCL
SIF2/N.C
SIF1/IFINT
CRESET/CAF2
TEST1/N.C
VDDA2/MAD
VREF1/CAF1
VDDA3/VCC
VSSA3/VCC
VDDD1/CDE2
PCLK/N.C
VDEC2/AF1I
VSSD2/AGND
NICAM/AF1D
TPB/N.C
1REF/LF2
VDDR2/N.C
TEST2/N.C
VSSA2/N.C
ADDR1/AFR
XTAL0/LF1
XTAL1/XTAL
SDA
OUT L
VREF2/VREF
P1
MONO IN/EXTM
VSSD3/N.C
EXTIL/EXTL
EXT IR/EXTR
OUTM
P2
VSSA4/N.C
SCK/AF21
SYS CLK/CTRIG
VDDD3/CID
OUT RWS/AF20
M
T
T
IN OUTG
M
AV
AV
GND
IN
OUT
3
2
1
Vref
+
-
PLL SC2
NARROW-BAND
FM DEMODULATOR
PLL SC1
NARROW-BAND
FM DEMODULATOR
2
AMPLIFIER
AF
1
AMPLIFIER
AF
SUPPLY
POWER
ADJUST
STEREO
DECODER
STEREO
TRANSCEVER
IIC BUS
NARROW-BAND PLL
PILOT
IDENTIFICATION
DIGITAL
AF SWITCH
11
10
9
8
7
6
5
4
3
2
1
3435363738394041424344
23
24
25
26
27
28
29
30
31
32
33
2221201918171615141312
DMR-EH65EE/GC/GCS/GN
Nicam Decoder Section
(Main P.C.B.(3/4))
Schematic Diagram(DE)
NOTE:DO NOT USE THE PART NUMBER SHOWN ON THIS DRAWING FOR ORDERRING.
THE CORRECT PART NUMBER IS SHOWN IN THE PARTS LIST,AND MAY BE
SLIGHTLYDIFFERNT OR AMENDED SINCE THIS DRAWING WAS PREPARED.
10987654321
F
E
D
C
B
A
C
M:Main Net Section:(Page: )
A
AV:A/V I/O Section:(Page: )
B
DE:Nicam Decoder Section:(Page: )
C
T:Timer Section:(Page: )
D
IC7302
DECODER
IC-DETAIL BLOCK DIAGRAM
IC7301
RESET
IC-DETAIL BLOCK DIAGRAM
DMR-EH65EE / DMR-EH65GC / DMR-EH65GCS / DMR-EH65GN
63

Table of Contents

Related product manuals