EasyManua.ls Logo

Panasonic DMR-EZ28P

Panasonic DMR-EZ28P
76 pages
To Next Page IconTo Next Page
To Next Page IconTo Next Page
To Previous Page IconTo Previous Page
To Previous Page IconTo Previous Page
Loading...
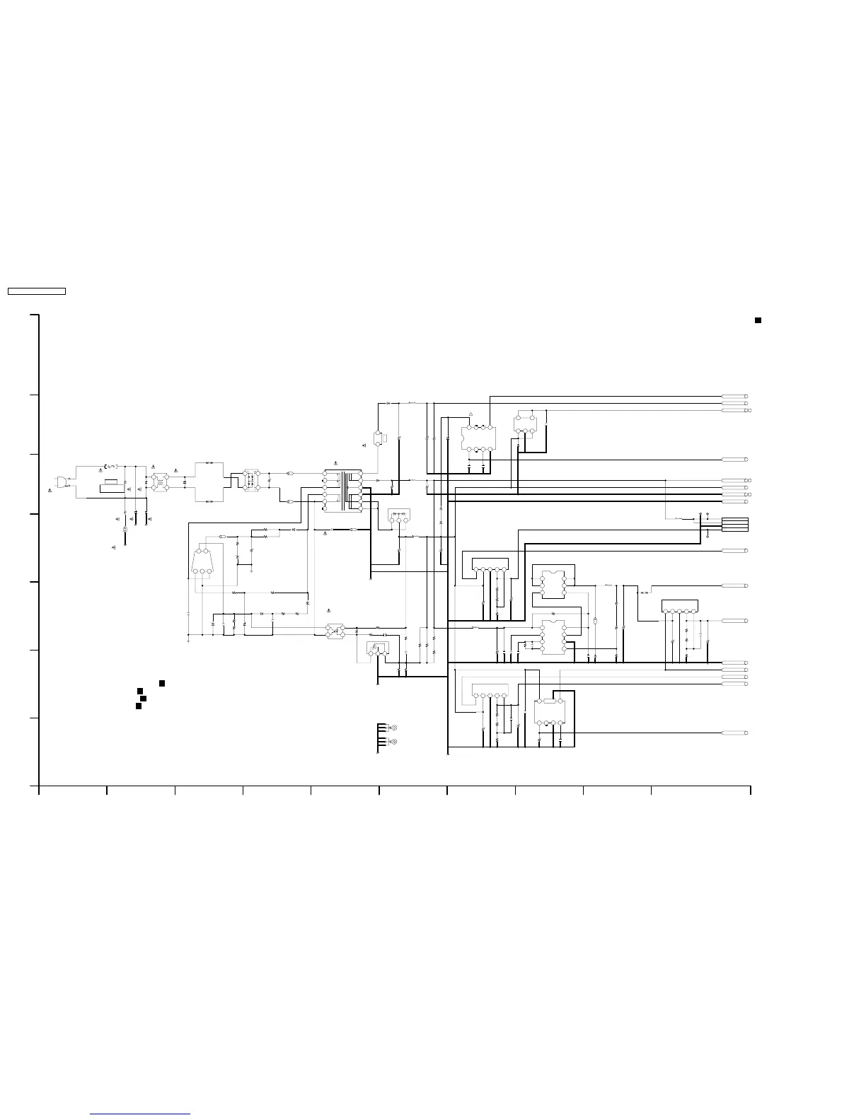
12.2. Power Supply Section (Main P.C.B. (1/4)) Schematic Diagram (A)
B0EAKL000062
X_SW_12V
X_SW_5R2V
DI_PON_DL2_H
X_SW_3R2V
ANA3R3V
FAN_GND
X_SW_4V
DDGND
DI_PON_DL_5V
DI_PON_DL1_H
D5V
D5V_PON_H
D3R3V
DR_P_ON_H
X_SW_5R8V
GND
C1103
ERZVA5V471
VA1102
1000P
1000P
C1102
K1102
VWJ0795=10
EYF52BCY
K3GE1ZA00010
ZA1102
ZA1101
EYF52BCY
K3GE1ZA00010
K1101
VWJ0795=10
ERZVA5V471
VA1101
1
2
P1101
K2AB2B000007
K2AB2B000011
43
12
B0EDKT000009
D1101
2
3 4
1
L1101
G0B233D00001
0.068
C1101
0.022
C1104
C1107
250V150
VWJ0795=5
LB1102
2 31
11 1012
645
8 79
G4D2A0000249
T1101
VWJ0795=5
LB1101
D1210
B0JAQE000004
C1331
1
1
1
C1320
R1210 3300
3
1
2
4
5
C0CBCDC00054
IC1330
C1330
67 5
2 43
8
1
C0CBCBD00048
IC1320
10V560
C1210
10V100
C1211
L1210
G0A220GA0026
D1321
C1322
0.01
25V220
C1221
C1321
1
L1220
G0A100HA0023
B0JAQG000005
D1220
16V820
C1220
CL1201CL1200
1
2
K5H302100004
ERBSE3R00U
IP1210
R1121 10
R1128
220
10K
R1122
B0BC01600013
MAZ81600ML
D1124
12K[D]
R1125
100P
C1123
2K[D]
R1124
D1122
B0AACK000004
R1127
6800[D]
2200P
C1124
R1126
1300[D]
B0BC013A0007
D1123
MAZ81300ML
35V56
C1120
R1123
10K
ERJ6GEY0R00V
LB1120
250V1800P
C1121
1000P
C1122
MAZ73000BC
D1121
2 4
1 3 5
C0DACZH00022
IC1120
1000P
C1108
R1120 10
DZ1101
J0LY00000045 : EZ28P
J0LV00000001 : EZ28PC
B0AADM000003
D1120
10V82
C1230
68K[D]
R1205
R1341
R1342
R1340
1K
11K
39K
0.033
10V100
10V100
10V100
1C1350
[JF]
C1351
0.01
C1353
4
5
67
21 3
C0DBGHF00001
IC1350
C1344
C1343
3 21
K9ZZ00001279
ZA1104
3 21
K9ZZ00001279
ZA1103
C1342
180KR1202
C1363
10V100
10V100
C1361
10K[D]
R1254
0.033C1362
R1360
1K[D]
R1361
22K[D]
10V680C1258
D1250
B0JCPE000038
R1362
11K[D]
G1501
4700[D]
R1255
6 75
24 3
8
1
IC1250
C0DBAZZ00132
C1256
0.01
24K[D]
R1262
R1201
0
421 3 5
IC1340
C0DAEYH00002
C1252 0.1
R1200
22K[D]
L1250
G0A100HA0023
C1250 25V220
C1251 1
C1254
27P
C1253 0.1
R1251
33K
CL1203
R1261
68K[D]
R1260
3600[D]
R1252 27
10V100
C1263
421 3 5
C0DBEKG00003
IC1260
12
5 6
3
4
B1DHDD000022
Q1250
820[D]
R1253
K1250
VWJ0795=5
G0A100K00003
L1251
421 3 5
C0DAEYH00002
IC1360
J0JHC0000048LB1250
C1231
10V680
L1230
G0A100H00025
R1206
2400[D]
R1203 5600[D]
0.047
C1203
10K
R1204
4
3
1
2
B3PBA0000237
B3PBA0000402
B3PBA0000454
Q1200
1K
R1209
270
R1207
C1201
0.22
A R
3 2
C
1
IC1200
C0DAEMZ00001
C0DAEYY00021
C0DAEJC00006
R1208
2200
B0EAKL000062
D1320
31 2
D1230
B0JBSG000048
G0A100HA0023
L1241
2
1
4
3
K1KA04AA0180
P1240
LB1103
ERJ6GEY0R00V
T
A
DR5V
DR12V
ADJ
DRGND
DR12V
TO RAM DRIVE
A
TT
A
T
ZA1361 XYN3+J8FJ
D1360 RADIATION
ZA1360 VSC5839-A
VIN
[JF]
VC VOUT
[SI-3011ZFELF1113A]
GND
A
A
T
T
TA
A
A
A
A
A
A
T
B2
(UL RECOGNIZED)
or
B1
SERVICE MANUAL
Ns6-1
or
ZA1120 VSC5839-A
IC1120 RADIATION
or VSC5839
ZA1121 XYN3+J8FJ
or
[MR1521-7101]
or
NC Ns6-2
P1
(S1WBA80-7062)
or
or
Ns3.2
or
P
A
or
F1101
K5D202BK0005
K5D202BLA013
2A250V
SEE THE
N
P2
Ns12PT
CN
VOUT
SENSE
[JG]
GND
GND
D
D
S
EXT
GND
CS
D
D
[CPH6312-TL-E]
[JF]
G
VREF
V5
VIN
[S-815A52AMC]
NC
ZA1230 VSC5984
[RB085TP-60]
[JG]
D1230 RADIATION
VIN
[SI-3012KM-TL]
[JG]
VC
ZA1231 XYN3+J8FJ
NC
CNTVIN GND
NOIZEVO
ON[H]
VIN
1
NC
[M1683DFBE]
[JF]
[JG]
VOUT
[RB056L-40TE25]
[MM1775AFBE]
FB
VIN
VOUT ADJVINVC GND
SUB
VOUT
NC
or
CC
ZA1340 VSC5839-A
IC1340 RADIATION
ZA1341 XYN3+J8FJ
ON[H]
GND
CN
[AL1014]
C1262
10V100
P:Power Supply Section:(Page: )
A
A
A:AV IO Section:(Page: )
B
TU:Tuner Section:(Page: )
T:Timer Section:(Page: )
C
D
89 1076
E
F
G
D
C
54321
B
A
DMR-EZ28P/PC
Schematic Diagram (P)
Power Supply Section (Main P.C.B. (1/4))
NOTE:DO NOT USE THE PART NUMBER SHOWN ON THIS DRAWING FOR ORDERRING.
THE CORRECT PART NUMBER IS SHOWN IN THE PARTS LIST,AND MAY BE
SLIGHTLYDIFFERNT OR AMENDED SINCE THIS DRAWING WAS PREPARED.
DMR-EZ28P / DMR -EZ28 PC
42

Table of Contents

Related product manuals