EasyManua.ls Logo

Panasonic DMR-EZ28P

Panasonic DMR-EZ28P
76 pages
To Next Page IconTo Next Page
To Next Page IconTo Next Page
To Previous Page IconTo Previous Page
To Previous Page IconTo Previous Page
Loading...
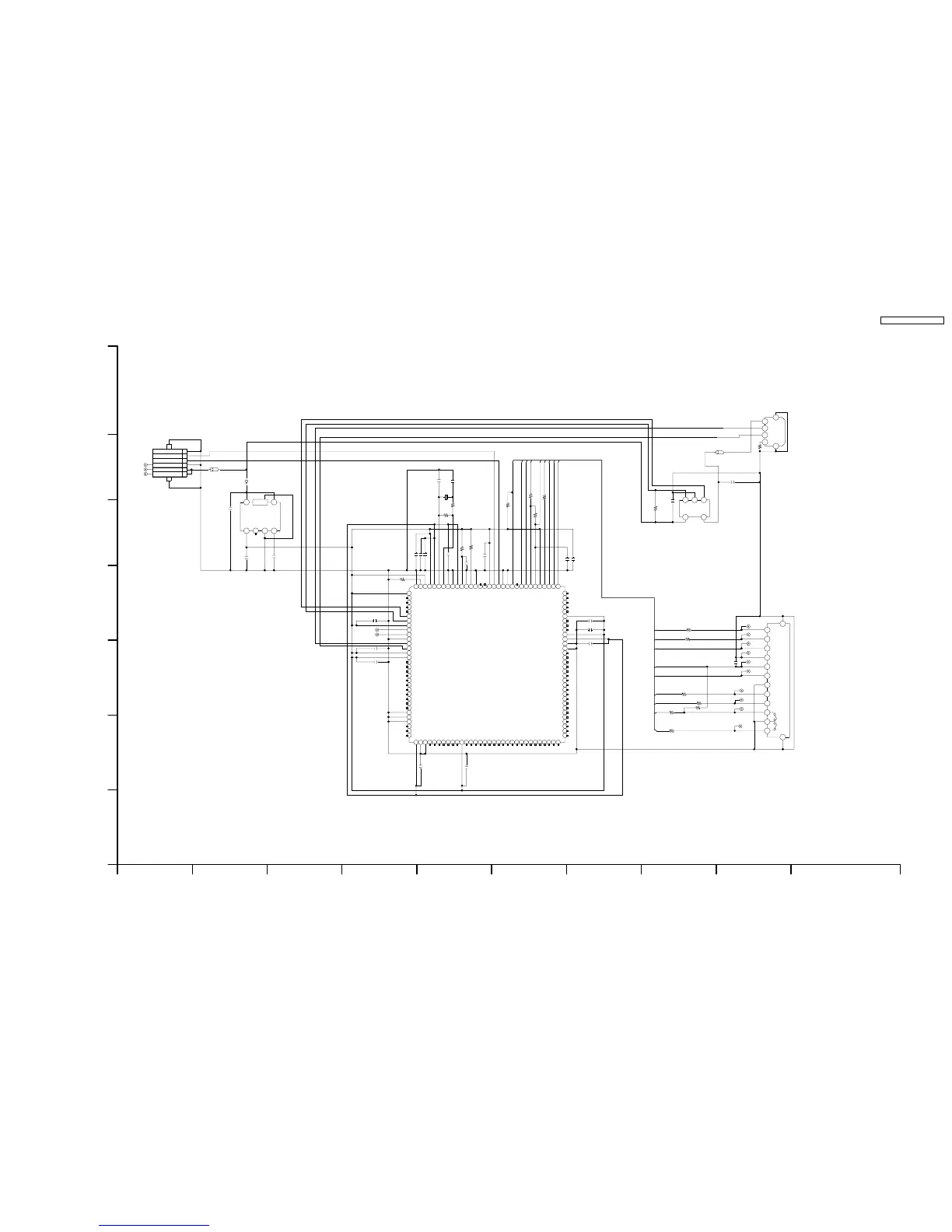
12.10. SD/USB Schematic Diagram
R66810
R66809
R66803
15P
R66802
0.1 C66820
0.1 C66818
0.1 C66819
CKE5
CKE3
CKE4
C66826
2.2
CKE8
CKE7
P_SD3R3
SCMD
SDAT0
SDAT1
R66811 33
C_48_SCLK
G_DM
G_DP
R66818
0
P_D5_B802
2
5
G
1
4
6
G
3
P66804
USB
K1FY104B0011
C66823
J0JGC0000020
LB66802
R66817
47K
R66813 33
R66812 33
CKE1
CKE2
CKE9
SDAT3
SDAT2
P_D5_IC803
3
1
2
4
5
IC66803
C0DBZHE00024
OC
0.1C66821
CKE12
14
435 1210 1211 7 68
13
9
P66805
SD CARD
K1NA09E00099
K1NA09E00083
CKE11
CD
0
SWP
0
R66814 10K
R66816
33
P_D5_B801
1u[18]C66801
470PC66804
1[18]C66803
P_D5_D801
D66801
B0ECKP000002
4
5
67
21 3
C0DBGGF00001
IC66801
P_D5
CKH5
CKH6
CKH4
RET1
RET2
1
G1
G2
2
4
3
1
6
5
K1KA06AA0231
P66801
J0JGC0000020
LB66801
CL66801
C66805 0.1
C66806 0.1
CL66802
0.1C66807
12KR66801
0.1
C66816
C_48_SCLK
0.1
C66817
SDAT1
SDAT0
SWP
0
R66804
100K
R66805 10K
0.1C66813
0.1 C66808
0.1 C66811
C66809
10
C66829
0.1
1M
0.1C66828
C66812
X66801
H0J240500042
24MHz
C66814
27P
P_SD3R3
R66808 33
R66806
33
SCMD
CD
100K
R66815
SDAT3
SDAT2
R66807 10K
127
125
123
117
116
118
115
120
121
119
98
97
99
105
104
106
102
100
101
103
113
111
109
108
110
112
114
107
122
124
126
6350 525145 474641 423834 36 3735 4039 4443 4948 60 626156 5753 5554 5958 64
95
92
93
88
89
84
85
80
81
72
67
65
66
71
69
68
70
76
78
79
77
73
75
74
83
82
87
86
91
90
94
96
9
10
7
8
12
15
16
13
14
11
1
4
2
3
6
5
128
31
29
23
26
27
24
25
18
19
17
22
20
21
28
30
32
33
IC66802
C1CB00002799
S_D+
S_D-
P_3R3
PO
DGND
0.1C66815
0.1C66810
P_1R8
VSS
VSS
D-
GND
GND
D+
PO
Cn
Vo
NC
GND
Vin
Cont
Sub
D5V
3R3V
GND
CLK
SF_D8GR4_N
SF_D2
(USB2602)
GR3_N
SF_D0
CF_SA0
MS_BS
MS_D1
SF_D1GPIO6
RBIAS
GPIO8
VDD33
DAT3
VDD33
VDD18
DAT2 FG
GPIO2
GPIO7
GPIO1
[2]PRTPWR2
[1]PRTPWR_POL
[95]GPIO14
[94]GPIO13
GPIO12
[96]GPIO15
VDD33
SD_CLK
VSS
VSS
GPIO4
GPIO5
SD_CMD
GPIO11
SD_NWP
DP
DM
GND
VBUS
1
/OC GND
V_IN
/EN
V_OUT
SD_DATA3
SD_DATA2
SD_DATA0
USBUP_DP
USBUP_DM
SD_DATA1
VDD33PLL
ATEST
TEST
VSS
VSS
VSS
XTAL2
VDDA33
VBUS_DET
USBDN_DP2
USBDN_DM2
VDD18
RESET_N
XTAL1
VDD18PLL
VDD33
GNDSF_D10
SF_D9
VSS
CMDVSS
SF_NCD2
USBDN_DM3
USBDN_DM4
USBDN_DP3
VDDA33
USBDN_DP4
OCS2_N
OCS4_N
OCS3_N
PATPWR4
EXT_SWINGVDDA33
PATPWR3
GR2_N
VSS
MS_D3
VDD18
MS_D2
MS_INS
[66]CF_D15
CF_NIOR
CF_NCS1
CF_D12
CF_D5
CF_D3
CF_NCD1
CF_D4
CF_D11
CF_D6
CF_D14
CF_D13
SM_D5
SM_D4
SM_D2
SM_D7
SM_NCD
GPIO9
SM_D6
SM_D3
[65]CF_D7
FG
CD
COM
CF_nCS0
CLK_SEL1
VSS
SM_ALE
SM_NRE
SM_CLE
SM_NWPS
SM_NCE
SM_DO
SM_D1
VDD33
GPIO10
SM_NWP
SM_NWE
SM_NBR
CF_SA1
CF_SA2
CF_NIOW
DAT1
DAT0
CF_IRQ
WP
CF_IORDY
CF_NRESET
[31]NC
MS_SDIO_D0
[29]CLK_SEL2
[30]NC
MS_SCLK
SEL_CLKDRV
[32]NC
TO P55001
(AVENC/RTSC/AVDEC/MAIN CPU-1 Section (1/4))
DIGITAL P.C.B.
89 1076
E
F
G
D
C
54321
B
A
SD/USB
DMR-EZ28P/PC
Schematic Diagram
NOTE:DO NOT USE THE PART NUMBER SHOWN ON THIS DRAWING FOR ORDERRING.
THE CORRECT PART NUMBER IS SHOWN IN THE PARTS LIST,AND MAY BE
SLIGHTLYDIFFERNT OR AMENDED SINCE THIS DRAWING WAS PREPARED.
DMR-EZ28P / DMR -EZ28 PC
53

Table of Contents

Related product manuals