EasyManua.ls Logo

Panasonic GT02

Panasonic GT02
206 pages
To Next Page IconTo Next Page
To Next Page IconTo Next Page
To Previous Page IconTo Previous Page
To Previous Page IconTo Previous Page
Loading...
4-19
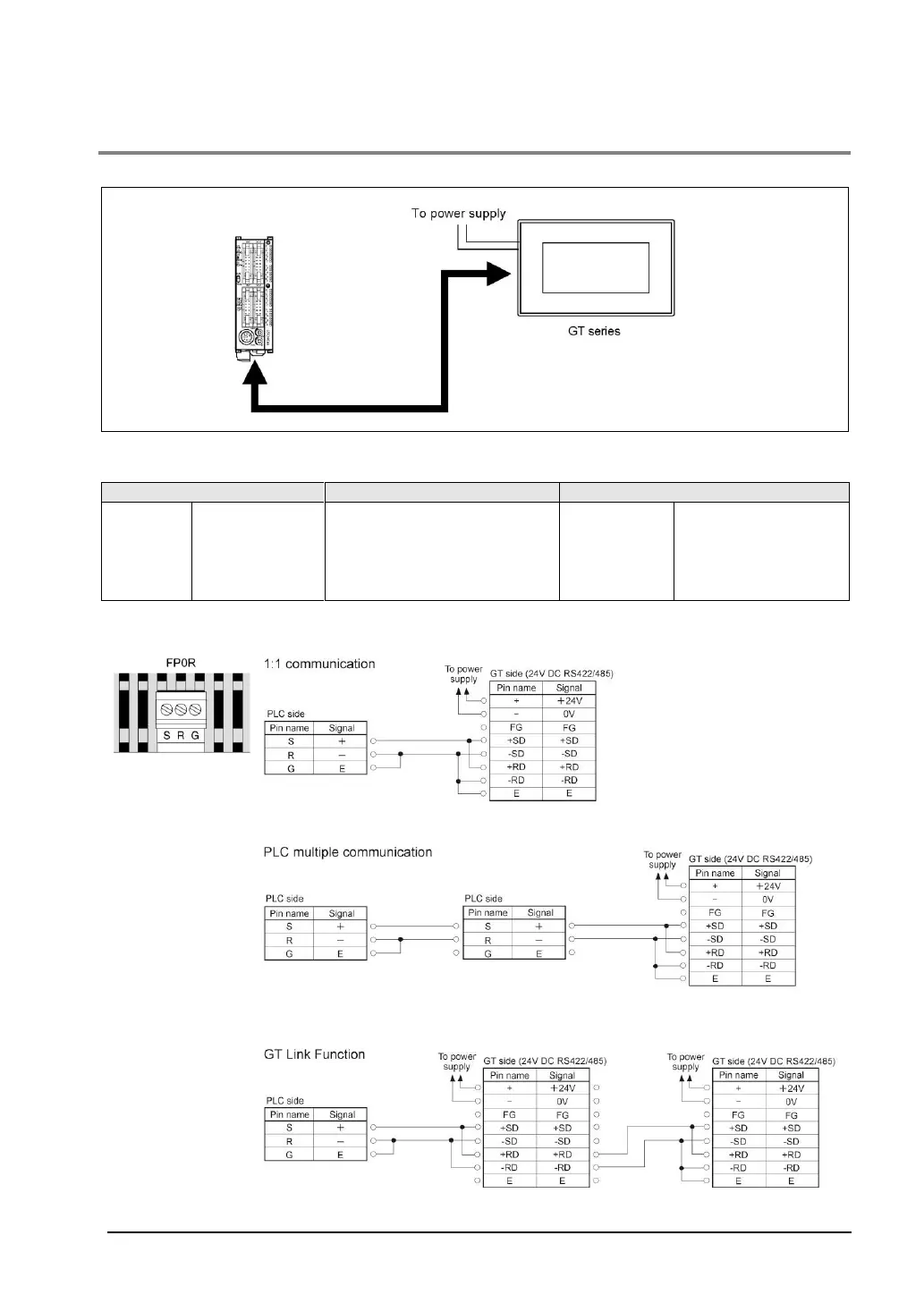
4.4.2 RS485 Connection with FP0R COM Port
Connecting to the COM port
Usable models
PLC
PLC communication cable
Programmable display
FP0R
RS485 type
Loose-wire cable
5 V DC
24 V DC
RS422/RS485 type
Connecting to the COM port of FP0R

Table of Contents

Other manuals for Panasonic GT02

Related product manuals