EasyManua.ls Logo

Panasonic GT02 - Gt03 T-E

Panasonic GT02
206 pages
Print Icon
To Next Page IconTo Next Page
To Next Page IconTo Next Page
To Previous Page IconTo Previous Page
To Previous Page IconTo Previous Page
Loading...
7-6
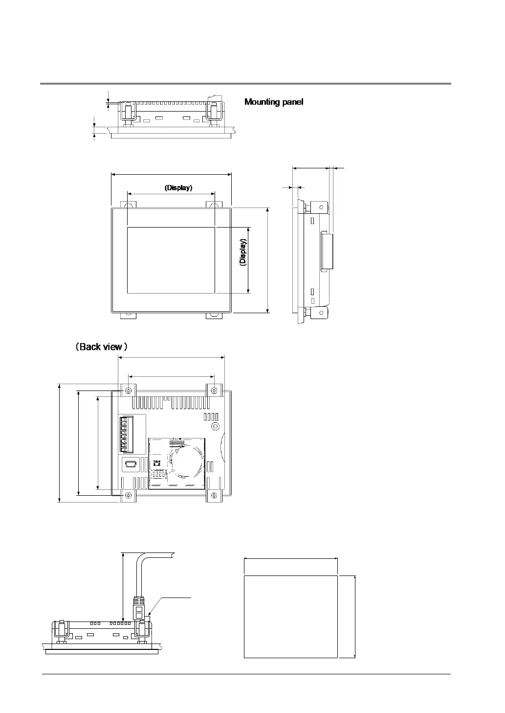
7.1.5 GT03T-E
Installation dimensions
(60)
connector
Panel cutout dimensions
87.5
1
0
76.5
1
0
(Unit: mm)
Applicable panel thickness: 1.0 to 5.0 mm

Table of Contents

Other manuals for Panasonic GT02

Related product manuals