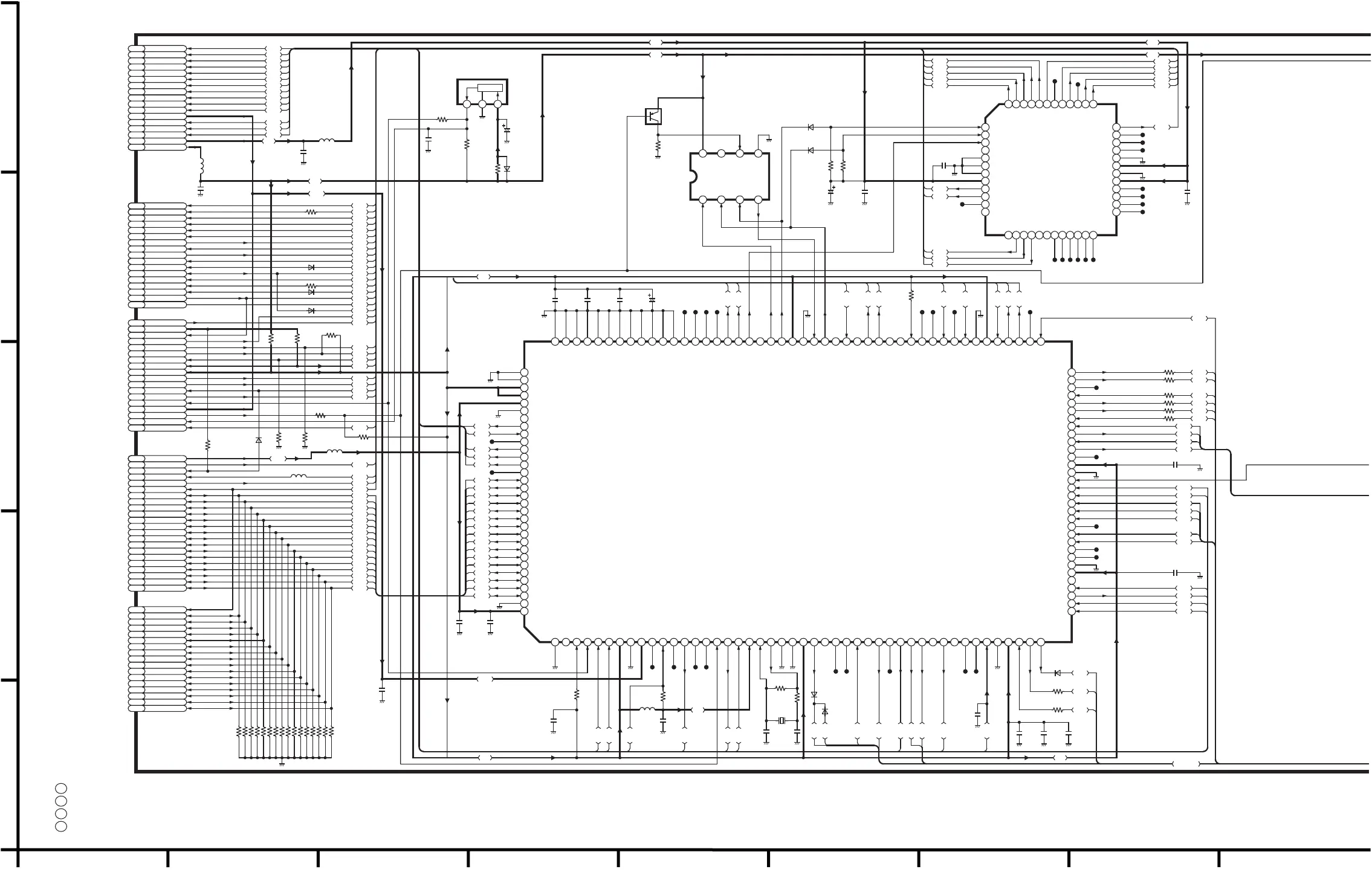
IC2001
M31020VLFP
(LSI MICON)
IC2002
M62370
(EVR DAC)
N SW3V
VL17
REG 3V
VL16
EE ADJ
VL15
Y GCA ADJ
VL14
C GCA ADJ
VL13
L VPP
VL12
RD
VL11
BLW
VL10
REC CADJ
VL9
ERRDL
VL8
CLK PH
VL7
DLADJ
VL6
COMP
VL5
ATFG
VL4
V VCO
VL3
BETA
VL2
ALFA
VL1
V PLL
L
LV19
LV20
SL40
SL41
V1
G CTL PBY
SYNC OFF
LV2
GCTLC
LV3
GCTLY
LV4
CTL 27M
LV5
MCVS
LV16
RST AD
LV17
AFRP
LV9
EE MUTE
LV6
DCS CLK
LV14
DCS DA
LV13
DC STP1
LV15
FS PLL
LV18
DC STP2
LV7
SSP
G CTL PBC
CPN OUT (H)
LV10
NSWL 3V
SL1
D REG 2V
LD22
SSP
SL2
V SYNC (L)
SL3
L MOD0
SL4
L MOD1
SL5
L VEE
SL6
L VPP2
SL7
L VCC
SL8
L SCLK
SL9
L SDA
SL10
L BUSY
SL11
LOE
SL12
L RESET
SL13
L VPP
SL14
L TEST
SL15
RST
SL16
ALE
VL18
INTP
LD1
RST DIF
LD21
BCLK
LD20
DC
LD19
ALE
LD18
DT15
LD17
ADDT14
LD16
LD15
LD14
LD13
LD12
LD11
LD10
LD9
LD8
LD7
LD6
LD5
LD4
LD3
LD2
ADDT13
ADDT12
ADDT11
ADDT10
ADDT9
ADDT8
ADDT7
ADDT6
ADDT5
ADDT4
ADDT3
ADDT2
ADDT1
ADDT0
DT15
VL19
ADDT14
VL20
ADDT13
VL21
ADDT12
VL22
ADDT11
VL23
ADDT10
VL24
ADDT9
VL25
ADDT8
VL26
ADDT7
VL27
ADDT6
VL28
ADDT5
VL29
ADDT4
VL30
ADDT3
VL31
ADDT2
VL32
ADDT1
VL33
ADDT0
VL34
IC2003
PST7029-MT
(RESET)
123
RESET
IC2004
S29L331AFS
(EEP ROM)
QR2003
UN5113
(SWITCHING)
1 2 3 4
5678
DO
GND
DISKCS
NCNCV
CC
E14
E13
E12
E11
E10
E9
E8
E7
E6
E5
E4
E3
E2
E1
E15
E16
E17
E18
E19
E20
E21
E22
E23
E24
E25
E26
E27
E28
E29
E47
CPN IN (L)
E30
E31
E32
E33
E34
E35
E36
E37
E38
E39
E45
E40
E41
E42
E43
F1
F2
F3
F4
F5
F6
F7
F8
F9
F10
F11
F12
F13
F14
F15
F16
F16
F15
F14
F13
F12
F11
F10
F9
F8
F7
F6
F5
F4
F3
F2
F1
E43
E42
E41
E10
E11
E32
E33
E34
E16
E45
E23
H17
H16
H11
H10
H24
H15
E19
E35
H22
H5
H6
E36
E37
E38
E39
E20
E22
E7
E20
E21
H8
H9
G1
G2
G3
G4
H1
H2
H3
H4
H13
H14
E29
E24
E30
E25
E40
E15
E27
E31
E26
E28
E7
E6
E5
E4
E3
E8
E9
LB2002
VLP0145
LB2001
VLP0145
C2016
1
C2018
1
R2112 22K
R2111 22K
D2013 MA728
D2012 MA728
D2011 MA728
R2039
0
R2042
0
R2038
100K
R2047 1K
R2002
100K
R2001
0
R2003
100K
LB2006
VLP0145
LB2007 VLF1148A241
D2003
1SS355
R2028
47K
R2006 10K
R2007 10K
R2008 10K
R2009 10K
R2010 10K
R2011 10K
R2012 10K
R2013 10K
R2014 10K
R2015 10K
R2016 10K
R2017 10K
R2018 10K
R2019 10K
R2020 10K
R2021 10K
C2003
0.1
C2002
0.1
C2013
0.1
C2030
0.1
R2036
47K
R2117
47K
LB2005
VLP0145
C2042
0.1
C2005
5P
R2034
1M
R2035
22
X2001
VSX1061
C2006
5P
D2004
1SS355
D2005
1SS355
C2028
0.1
C2004
0.1
C2007
0.1
C2029
0.1
R2105
100
R2104
100
D2014
MA728
C2008
0.1
C2009 0.1
R2061 100
R2062 100
R2100 100
R2101 100
R2102 100
R2099 100
H12
1
2
3
4
5
6
7
8
9
10
11
12
13 14 15 16 17 18 19 20 21 22 23 24
31
32
33
34
35
36
25
26
27
28
29
30
4142434445464748 37383940
CLK PHASE
DI
CLK
LD
DO
GND
CI
V
DD1
ERRDL
REC CUR
V
SS
DL ADJ
COMPLEV
ATF GAIN
V VCO
GCTLC
G CTL PBY
G CTL PBC
GCTLY
BETA
ALFA
V
SS2
V
DD2
C2
V
CC
EE ADJ
Y GCA ADJ
C GCA ADJ
E17
E18
E47
E46
E2
E1
R2037
56
R2046
10K
R2040
330
C2001
6V22
D2001
MA728
R2116
10K
C2011
0.1
C2012
0.1
C2027
0.1
C2010
6V100
R2067
47K
R2066
47K
D2010
MA728
D2009
MA728
C2019
6V10
C2020
1
E14
E13
E12
C2045
0.1
C2044
0.1
R2032
47K
1 2 3 4 5 6 7 8 9 11 12 13 14 15 16 17 18 19 21 22 23 24 25 26 27 28 29 31 32 33 34 35 36 37 38 39 41 42 43 44 45 46
47
48
49
10 20 30 40
50
51
61
71
52
62
72
53
63
73
54
64
74
55
65
75
56
66
76
57
67
77
58
78
68
59
69
79
60
70
808191 8292 8393 8494 8595 8696 8797 8898 8999 90
100108 107 106 105 104 103 102 101
144
143
142
141
140
139
138
137
136
135
134
133
132
131
130
129
128
127
126
125
124 123 122 121 120 119 118 117 116 115 114 113 112 111 110 109
154
153
152
151
156
155
150
149
148
147
146
145
NC
NC
AVREF
A.V
CC
VCC2
V
SS
NC
BCLK
DC
R/W
ALE
RD
BLW
BHW
DT15
AD/DT14
AD/DT13
AD/DT12
AD/DT11
AD/DT10
AD/DT9
AD/DT8
AD/DT7
AD/DT6
AD/DT5
AD/DT4
AD/DT3
AD/DT2
AD/DT1
AD/DT0
V
CC2
V
SS
VSS
VCC
VSS
VCC
NC
CPN IN (L)
NC
CPN OUT (H)
NC
NC
V
SS
VSS
VCC
NC
NC
NC
NC
NC
NC
NC
NC
NC
V
CC
VSS
VCC
HLDA
HOLD
RESET
MOD0
MOD1
L TEST
SYNC OFF
XIN
X OUT
A MUT
SYS VIDEO EE
VIDEO EE (L)
EE MUTE
COMRDY
YC CS
CTL 27M
CPU AOKI1
CPU WUPO1
RST LSI
V
SS
VCC
VCC
OSC VSS
OSC VCC
L SCLK
L SDA
V
CC
VSS
NC
NC
NC
V
SS
VCC
NC
NC
RST DIF
LOE
NC
TSR
HID
CYL FG
CYL PG
SPA
AFRP
MCVS
FRP
COM RST
COM CLK
COM DATA OUT
COM DATA IN
RDY CTS
CPU CLK
CPU DATA OUT
CPU DATA IN
YC CLOCK
LYCDO
LYCDI
NC
V
CC
VSS
NC
NC
NC
NC
NC
NC3
NC1
V
SS
VCC
NC
NC
NC
NC
NC
NC
NC
NC
NC
NC
NC
NC
NC
NC
NC
A.V
SS
DCS CLK
DCS DO
DCS DI
SSP
DIF INT
NMI
V PLL
FS PLL
V SYNC (L)
EE CLK
EE DI
EE DO
EE CS
NC
DAC LD
DC STP1
DCS STP2
H- LINE
C2037
0.1
E46
E44
E44
TL13
TL18
TL27
TL30
TL32
TL4
TL5
TL9
TL16
TL17
TL21
TL22
TL23
TL26
TL47
TL37
TL29
TL14
TL31
TL38
TL39
TL40
TL41
TL57
TL58
TL42
TL43
TL44
TL45
TL53
TL52
TL51
TL46
TL49
TL54
TL12
3V
3V
3V
3V
3V
3.5V
TL33
TL34
TL35
TL36
3V
3V
2V
3.5V
3V
3V
3V
33
0331.3
30
0
0
0
0
3
3
0
0
0
1.9
0
0
1.7
0
1.8
1.1
1.9
1.5
1.3
1.3
2.3
1.7
0
0
0
2.2
1.7
0
3
0
0
0
0
0
0
0
1.9
1.5
3
3
3
3
3
3
3
3
0
1.6
0.1
0
3
1.5
1.5
1.5
0
0
0
3
3
3
3
3
1.5
1.5
0
1.5
3 (1) (1)
2.8
3
0
3
3
3
0
0
0
0
3
3
1 (0)
0 (1.6)
0
3
1.3
3
3
0
0
2.6
3
0
0
0
0
3
3
2.1
2.1
3
3
3
0
2.8
0
<0> 3.2
0
0
0
0
3
3
0
(0) 3
1.7
1.8
3
0
0
0
(3) 0
(3) 0
0
0
3
3
(3) 0
0
0
3
3
0
0
3
3
3
0
0.7
0
0
0
2.1
2.1
2.1
0.1
0.1
0.1
0.1
0.1
0.1
0.1
0.1
0.1
0.1
0.1
0.1
0.1
0.1
0.1
0.1
NOTE : DO NOT USE ANY PARTS NUMBER SHOWN ON THIS SCHEMATIC
DIAGRAM FOR ORDERING.
WHEN YOU ORDER A PART, PLEASE REFER TO PARTS LIST.
NOTE: THE MEASURMENT MODE OF THE DC VOLTAGE OUT OF THE BRACKETS ON THIS DIAGRAM IS STOP MODE
WITH PAL COLOUR SIGNAL. (MINI DV:SP MODE) ·LINE IN SIGNAL LEVEL... -6dB 400Hz
THE MEASURMENT MODE OF THE DC VOLTAGE IN THE BRACKETS ( ) ON THIS DIAGRAM IS PLAYBACK MODE
WITH PAL COLOUR SIGNAL. (MINI DV:SP MODE) ·LINE IN SIGNAL LEVEL... -6dB 400Hz
THE MEASURMENT MODE OF THE DC VOLTAGE IN THE BRACKETS < > ON THIS DIAGRAM IS RECORD MODE
WITH PAL COLOUR SIGNAL. (MINI DV:SP MODE) ·LINE IN SIGNAL LEVEL... -6dB 400Hz
SL
: TO DIGITAL (SYSTEM CONTROL & SERVO)
LD
: TO DIGITAL (DIGITAL I/F)
LV
: TO DIGITAL (VIDEO 1)
VL
: TO DIGITAL (VIDEO 2)
A
B
C
D
E
1
24
3
5
6789