Home
Panasonic
Projector
pt-p1sdea
Panasonic pt-p1sdea
71 pages
Manual
To Next Page
To Next Page
To Previous Page
To Previous Page
Loading...
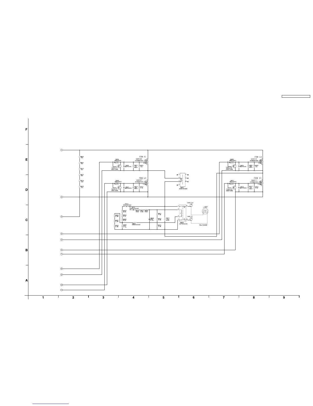
11.12. B-Module
(2/2)
B-Module
TXANP02VKB5 (2/2)
Module Replacement
Only supplied components IC9602-03, Q9603-1
1, D9601, D9604-09, D9611-14, D9616-29, R9601, R9653-56,C9618-19, TXJ/L2VJV2
PT-P1SDU
/
PT-P1SDE
/
PT-P1SDEA
55
54
56
Table of Contents
Main Page
Default Chapter
1
Lcd Projector
1
Table of Contents
4
1 Safety Precautions
5
General Guidelines
5
Leakage Current Check
5
UV Precaution and UHM Lamp Precautions
5
2 Ext Option
6
Procedure to Enter EXT OPTION
6
EXT OPTION Menu and Functions
6
Canceling EXT OPTION
7
3 Self-Check Mode
7
Procedure to Enter the Self-Check Mode
7
Self Check Display and Contents
8
Canceling the Self-Check Mode
8
4 Service Mode
9
Procedure to Enter the Service Mode
9
Canceling the Service Mode
9
5 Flicker Adjustment Mode
9
Procedure to Enter the Adjustment Mode
9
Adjustment Display and Contents
9
Canceling the Flicker Adjustment Mode
9
6 Disassembly Instructions
10
Printed Circuit Board and Main Parts Location
10
Removal of Upper Case
11
Removal of A-P.C.board
11
Removal of J-P.C.board
11
Removal of R-P.C.board
12
Removal of K-P.C.board
12
Removal of B/Q-Module
12
Removal of P-P.C.board
13
Removal of Z-P.C.board
13
Removal of Lamp Unit
13
Removal of Analysis Block and Lens
14
Removal of LCD Block
14
Replacement of LCD Panel (B)
15
LCD Panel Discrimination
16
LCD Panel Combination
16
Replacement of Incidence Polarizer (B)
16
Replacement of Projection Polarizer (B, G)
17
Replacement of PBS Array (Analysis Block)
17
7 Measurement and Adjustments
19
Adjustment Procedure Flowchart
19
Cautions for Adjustment
19
Setting before Adjustment
19
Convergence Adjustment
19
Lighting Area Adjustment
21
Software for Adjustment
23
Flicker Adjustment
25
Input Level Adjustment
25
Model Information Setup
26
Adjustment Menu
26
Setup Procedure
26
8 Troubleshooting
27
9 Interconnection Block Diagram
37
Interconnection Block Diagram (1/2)
37
Interconnection Block Diagram (2/2)
38
10 Block Diagram
39
Power Supply
39
Signal Processing (1/2)
40
Signal Processing (2/2)
41
11 Schematic Diagram
43
A-P.C.board (1/6)
44
A-P.C.board (2/6)
45
A-P.C.board (3/6)
46
A-P.C.board (4/6)
47
A-P.C.board (5/6)
48
A-P.C.board (6/6)
49
J-P.C.board
50
P-P.C.board (1/2)
51
P-P.C.board (2/2)
52
K-P.C.board / R-P.C.board / Z-P.C.board
53
B-Module (1/2)
54
B-Module (2/2)
55
Circuit Boards
57
12 Circuit Boards 12.1. A-P.C.board
57
J-P.C.board / P-P.C.board / R-P.C.board
58
13 Terminal Guide of Ics and Transistors
59
14 Exploded Views
60
15 Replacement Parts List
63
Related product manuals
Panasonic PT-P1SDE
36 pages
Panasonic PT-P1SDU
42 pages
Panasonic PT-L502
68 pages
Panasonic PT-LB75
9 pages
Panasonic PT-VX41
94 pages
Panasonic PT-LB50
5 pages
Panasonic PT-EZ580
155 pages
Panasonic PT-DZ870
8 pages
Panasonic PT-VZ570
118 pages
Panasonic PT-AX100
7 pages
Panasonic PT-AR100
11 pages
Panasonic PT-FW300
11 pages