EasyManua.ls Logo

Panasonic TH-37PV70F - Service Hint

Panasonic TH-37PV70F
182 pages
Print Icon
To Next Page IconTo Next Page
To Next Page IconTo Next Page
To Previous Page IconTo Previous Page
To Previous Page IconTo Previous Page
Loading...
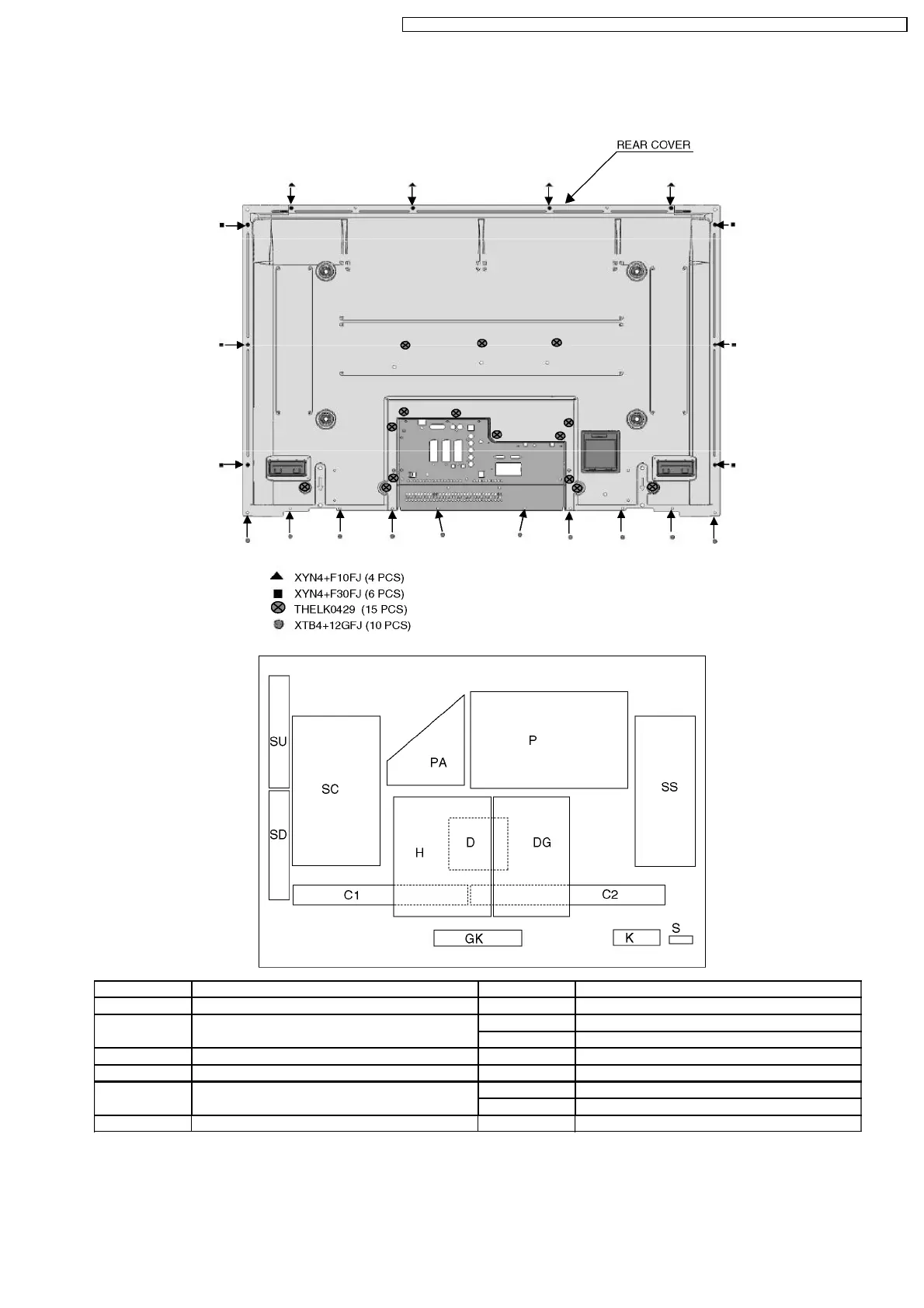
Remove the Rear Cover
5 Service Hint
Board Name Function Board Name Function
P Power Supply D Format Converter, Plasma AI, Sub-Field Processor
DG Digital Signal Processor, Micon, HDMI Interface
Peaks Lite 2
C1 Data Driver (Lower Right)
C2 Data Driver (Lower Left)
K Remote receiver, Power LED SC Scan Drive
S Power Switch SU Scan out (Upper)
H Speaker out, Sound Processor
AV Terminal, AV Switch
SD Scan out (Lower)
SS Sustain Drive
PA DC-DC Converter GK Key Switch, Front Terminal
9
TH-37PV70F / TH-37PV70P / TH-37PX70B / TH-37PX70E / TH-42PV70F / TH-42PV70P / TH-42PX70B / TH-42PX70E

Table of Contents

Related product manuals