EasyManua.ls Logo

Panasonic TH-42PE50B - DG-Board (1 of 2) Block Diagram

Panasonic TH-42PE50B
165 pages
To Next Page IconTo Next Page
To Next Page IconTo Next Page
To Previous Page IconTo Previous Page
To Previous Page IconTo Previous Page
Loading...
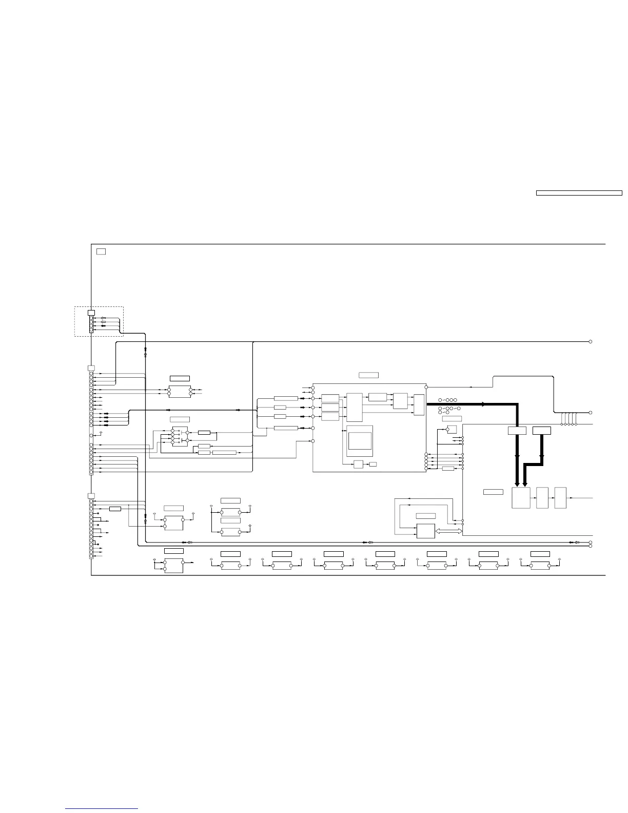
14.25. DG-Board (1 of 2) Block Diagram
AFC1
LED_R
SOS2
M2_RST
B_DDR_CLK
B_DDR_NCLK
RM_IN
SP_MUTE
KEYSCAN
XBUF
M2_RST
CVBS1
AV2_QLINK
RGB_FB
TUNER_MAIN_ON
SOS
Q_LINK_IN
Q_LINK_OUT
Q_LINK_SEL
MAIN_Y/CVBS
MAIN_PB/C
MAIN_PR
AV4_QLINK
AUDIO_MUTE
BS_R
DVB_CVBS
BS_L
SD_LED
MAIN_PR
RGB_CVBS
MAIN_PB/C
MAIN_Y/CVBS
SRQ
TO
H2
DG2
SELF,ID,ED2
1080i
A/D 10bit
VPK
COLOUR
30MHz
30MHz
A/D 10bit
Macrovision
625i/p
A/D 10bit
MATRIX
NOISE LEVEL
RGB->
YUV
CHROMA
720p
Sync
SEPA
30MHz
Detection
3D/2D com
525i/p
SYNC
CLK
SW
TBC
I/F
FF
IP
NR
JUST
NR
I/P
FF
IC4005
10bit A/D
22
UV0~UV9
29
76
SOS2
10
STB_RESET
13
SCL2
21
SDA3
23
SP_MUTE
12
SOUND_MUTE
11
AV2_QLINK
FB_OUT
26
1
2
RMCN
AV4_QLINK
AFC1
3
6
LED_R
15
2
3
DG20
1
TO
PA20
25
23
MAIN 3.3V
SOS
BT30V
AC_ON/OFF
DG
MICOM,DIGITAL SIGNAL PROCESSOR
22
20
18
17
15
13
12
9
7
5
MAIN 3.3V
SUB 3.3V
SUB 9V
SUB 9V
MAIN 2.5V
MAIN 2.5V
SUB 5V
MAIN 5V
STB 5V
SUB 5V
MAIN 5V
STB 5V
4
RESET
IC4063
SDA2 SDA
NRST
IC4055
128M DDR SDRAM
3
4
TVON
MAIN 9V
MAIN 3.3V
SUB 9V
MAIN 9V
74
72
Q4006,Q4013
Q4011
Q4012
38
XTAL
20
24
KEYSCAN
8
A_DDR_CLK
A_DDR_NCLK
IC4054
GC4PRO
SDA2
SCL3 SCL3
SDA2
SCL2
SDA3
CLK0A
CLKIA
HSIA
VSIA
TPOUT0
7
Y0~Y9
14
R0~R3
3330
41 42
91 94
R0~R3,Y0~Y9,UV0~UV9
SDA2L SDA
SCL2L
81
SCL
82
D_CLKIN
RESET
VS
HS
LLC1
(ADV7403)
PORT-A
1
SDA1
18
17
SCL1
DEM.
DETECT
Q4068
9
SRQ
35
36
4
99
78
AVR 3.3V
8
VOUT
1
IC4049
CONT
AD 3.3V
5
VIN
SUB 5V
VOUT
PLL 1.2V
AVR 1.2V
MAIN 2.5V
1
IC4044
VIN
5
VOUT
AVR 1.2V
1
IC4061
VIN
5
DLL 1.2V
Q4010,Q4015
57
Q1153
Q1152
Q1151,Q1150
4
2
5
3
IC1105
Q LINK SW
1
13
51
6
32
SDAIN
7
SCLOUT
IC1235
SDAOUT
SCLIN
IIC BUFFER
SCL1
SDA1
Q1154
AIN9
FB
Q4900
2
INV.
RGB_CVBS
SD_LED
17
33
DVB_R
DVB_CVBS
31
DVB_L
TO
H1
35
DG1
MAIN_CVBS2(RGB)
MAIN_PR/B
28
30
32
MAIN_Y/V/G
34
MAIN_PB/C/R
STB 5V
14
STB 5V
VDD
AVR 2.5V
VCCVOUT VOUT
4
IC4024
35
IC4042
AVR 1.8V
4
1
OUT
STB 5V
21
IC1103
1
AVR 1.8V
3
MAIN 3.3V
VDD
2
AVR STB 2.5V
STB 2.5V
AVR 3.3V
AD 3.3VSTB 5V
4
MAIN 2.5V
MAIN 1.8V
DDR 2.6V
MAIN 5V
VIN
IC4008
4
VIN
5
VDET
VOUT
AVR 3.3V
VIN VOUT
MAIN 1.2V
IC4048
AD 1.8V
AVR 1.2V
MAIN 3.3V
IC4041
2
AVR 2.6V
5
VIN VO VCCVOUT
STB 3.3V
5
OUT
IC1110
MAIN 2.5VMAIN 2.5V
1
MAIN 3.3V
IC4025
SCLSCL2
(FS&HDMI)
PORT-B
PE50B ONLY
TH-37/42PA50E, TH-37/42PE50B
DG-Board (1 of 2) Block Diagram
TH-37/42PA50E, TH-37/42PE50B
DG-Board (1 of 2) Block Diagram
TH-42PA50E / TH-42PE50B / TH-37PA50E / TH-37PE50B
91

Table of Contents

Other manuals for Panasonic TH-42PE50B

Related product manuals