EasyManua.ls Logo

Panasonic TH-42PX600U - D-Board (1 of 6) Schematic Diagram

Panasonic TH-42PX600U
165 pages
To Next Page IconTo Next Page
To Next Page IconTo Next Page
To Previous Page IconTo Previous Page
To Previous Page IconTo Previous Page
Loading...
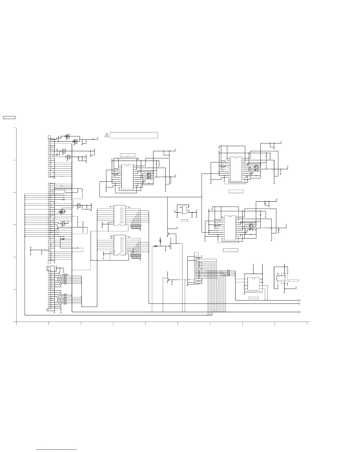
15.42. D-Board (1 of 6) Schematic Diagram
+
G
G
G
G
18
16
14
12
10
8
6
4
2
20
21
19
17
15
13
11
9
7
5
3
1
+
G
G
G
G
G
G
G
G
TH-42PX600U
D-Board (1 of 6) Schematic Diagram
+
G
G
FP_CSL
SC_CL
SC_CSL
SC_CBK
SC_SID
SC_SCSU
SC_CLK
FP_SCSU
SC_CEL
FP_CEL
SC_CPH
SC_CEL2
SC_SIU FP_CLK
FP_CEL2
SC_CML
SC_CSH
SC_CL
SC_CMH
SC_CSH
SC_CMH
SC_CLK
FP_CBK
SC_SIU
SC_CEL2
FP_SID
SC_CML
SC_SID
SC_CEL
FP_CPH
FP_CL
SC_CSL
SC_CBK
SC_CPH
FP_SIU
SC_SCSU
PANEL_MAIN_ON
ALL_OFF
FAN_SOS
PSTB
PBUSY
PDB0
ASDIO
DCLK
ECO_ON
TUNER_SUB_ON
P_ON/OFF
SOS7_SC2
SOS6_SC1
PANASONIC_MODE
DRVMUTE
READY
ALARM
INEXCH
AR_IIC_INT
SOS9_CONF
AC_GOOD
AR_IIC_CONT
STB_SCL02
STB_SDA02
RXD_PC
STBY3.3V_ON
DCDC_ON
SOS4_PS
PBUSY_2
PDB1_2
PDB0_2
LED_R
REM_IN
PSLCT_2
PSLCT
PDB1
AR_IIC_CONT_D4
P3V_SCL1
LED_G
P3V_SDA1
REMOCON
DCDC_ON
DISPEN_D2
READY_D2
ALARM_D2
INEXCH_D2
PANEL_STBY_ON PANEL_STBY_ON
STBY5V_D2
P3V_SCL1
P3V_SDA1
STBY3.3V
AR_IIC_CONT_D4
AR_IIC_CONT_D4
STB_SCL02_D4
STB_SDA02_D4
TXD_PC_D4
RXD_PC_D4
AR_IIC_INT_D2
FAN_CONT
FAN_SOS
ECO_ON
LED_R
LED_G
REMOCON
AC_GOOD
PBUSY_2
PDB0_2
PSLCT_2
PDB1_2
RXD_PC_D4
TXD_PC_D4
STB_SDA02_D4
STB_SCL02_D4
AR_IIC_INT_D2
VDATA_DET
C_SEL
FAN_CONT
PSTB_2
DATA0
NCS
FP_CSH
FP_CML
FP_CMH
TUNER_SUB_ON TUNER_SUB_ON
ALL_OFF
PSTB_2
TXD_PC
D9813
B0JCDD000002
R9845
5.6k
R9823
100
STB5V_M
R9850
47k
C0DBAYY00054
IC9800
1
GND
2
REFIN
3
VREF
4
CS
5
VCC
6
COVP
7
CUVP
8
PGOOD
9
CTL
10
LSAT
11
ILIM
12
+INC
13
-INC
14
N.C.
15
PGND
16
OUT-2
17
VDD
18
LX
19
OUT-1
20
CB
21
VIN
22
RT
23
VO
24
FB
P15V_MOTO
Q9806
B1ABCF000138
R9814
68k
D9811
MA2J72800L
STB5V_M
C9839
10u
25V
P15V
P15V_MOTO
R9802
62k
P3.3V
R9891
47k
R9839 100
C9823
10u
25V
P15V
C9815
68u
4V
P5V
L9800
G1C3R0MA0248
R9892
15k
C9805
4.7u
6.3V
C9896
0.1u
16V
R9849
EXB2HV470JV
C9801
4700p
25V
C9833
10u
25V
R9869
10k
C0JBAZ000856
IC9803
G1
1
2
A1
3
A2
4
A3
5
A4
6
A5
7
A6
8
A7
9
A8
10
GND
11
Y8
12
Y7
13
Y6
14
Y5
15
Y4
16
Y3
17
Y2
18
Y1
19
G2
20
Vcc
R9844
100
STB3.3V
R9871
10k
C9848
0.1u
25V
R9821
10k
R9847
EXB2HV272JV
R9816
82k
R9805
30k
R9813
2.4k
P5V
R9880
36k
IC9007
1
NCS
2
DATA
3
VCC
4
GND
5
ASDI
6
DCLK
7
VCC
8
VCC
R9830
10k
R9801
24k
R9897
100k
P5V
C9881
50V
1000p
C9807
10u
25V
R9133
4.7k
P3.3V
C9838
16V
0.1u
C9847
0.1u
25V
C9818
10u
25V
PA9800
K5H4022A0023
C9880
50V
1000p
D9800
B0JCME000037
R9893
36k
P5V
IC9801
C0DBZFG00066
1
VOUT
2
GND
3
CE
4
NC
5
GND
6
VDD
Q9803
B1MBEDA00015
S1G1S2G2
D2 D2 D1 D1
R9824
100
D9804
MA3X152K0L
P2.5V
R9854
100
R9879
20k
C9824
10u
25V
STB5V_M
FL9804
J0HABH000012
1
2
3
STB3.3V
C9827
6.3V
10u
D9808
MA3X152K0L
C9886
0.1u
16V
FL9801
J0HABH000013
12
3
C9809
0.1u
16V
C0DBAYY00054
IC9809
1
GND
2
REFIN
3
VREF
4
CS
5
VCC
6
COVP
7
CUVP
8
PGOOD
9
CTL
10
LSAT
11
ILIM
12
+INC
13
-INC
14
N.C.
15
PGND
16
OUT-2
17
VDD
18
LX
19
OUT-1
20
CB
21
VIN
22
RT
23
VO
24
FB
R9099
100
P5V_MOTO
P15V
C9826
16V
0.1u
R9825
100
D3
1
2
3
4
5
6
7
8
9
10
11
12
13
14
15
16
17
18
19
20
21
22
23
24
25
26
27
28
29
30
31
32
33
34
35
36
37
38
39
40
R9896
0
C9926
0.1u
16V
P15V
D9802
MA2J72800L
C9802
47p
50V
C9831
10u
16V
R9804
24k
D6
C9891
0.1u
16V
C9883
8200p
50V
D9801
B0JCDD000002
STB3.3V
R9870
10k
C9845
16V
0.1u
C9825
50V
100p
C9029
6.3V
10u
D9812
B0JCME000037
P5V_MOTO
D20
1
2
3
4
5
6
7
8
9
10
11
12
13
14
15
16
17
18
19
20
C9830
10u
16V
C9832
10u
16V
P5V
Q9801
SP8K2TB
S1G1S2G2
D2 D2 D1 D1
Q9800
B1MBEDA00015
S1G1S2G2
D2 D2 D1 D1
R9846
EXB2HV272JV
L9801
G1C2R2MA0241
R9831
10k
P1.5V
C9806
68u
4V
C9882
0.1u
16V
Q9805
B1ABCF000138
R9806
39k
D9807
MA3X152K0L
J0HABH000013
FL9806
R9815
22k
R9840 22
R9807
0
C9897
8200p
50V
C9843
16V
0.1u
R9843
100
R9131
4.7k
C9967
4.7u
6.3V
C9846
16V
0.1u
C9884
10p
50V
J0HABH000013
FL9800
R9826
100
C9803
4700p
50V
P15V
J0HABH000013
FL9805
FL9807
J0HABH000013
12
3
R9878
39k
C9841
16V
1u
R9848
EXB2HV470JV
LDO_5V
D9814
B0JCME000037
C9804
0.1u
16V
P2.5V
P3.3V
P1.2V
R9868
100k
LDO_5V
C9817
10u
25V
LDO_5V
C9885
1000p
50V
LDO_5V
C9800
0.1u
16V
R9842
100
P15V
C9816
68u
4V
R9803
0
R9859
EXB38V101JV
L9810
J0JHC0000045
L9802
G1C2R2MA0241
STB3.3V
C0DBAHD00011
IC9806
1
VOUT
2
GND
3
CE
5
VDD
4
NC
C9028
6.3V
10u
R9827
100
FL9803
J0HABH000012
12
3
P15V
P15V
C9899
1000p
50V
R9810
3k
R9132
4.7k
C9971
0.1u
16V
C9837
10u
16V
C9844
50V
0.01u
R9800
13k
Q9010
B1ABCF000138
D9815
B0JCDD000002
C9808
10u
25V
C0JBAZ000856
IC9802
G1
1
2
A1
3
A2
4
A3
5
A4
6
A5
7
A6
8
A7
9
A8
10
GND
11
Y8
12
Y7
13
Y6
14
Y5
15
Y4
16
Y3
17
Y2
18
Y1
19
G2
20
Vcc
P15V
C0DBAYY00054
IC9807
1
GND
2
REFIN
3
VREF
4
CS
5
VCC
6
COVP
7
CUVP
8
PGOOD
9
CTL
10
LSAT
11
ILIM
12
+INC
13
-INC
14
N.C.
15
PGND
16
OUT-2
17
VDD
18
LX
19
OUT-1
20
CB
21
VIN
22
RT
23
VO
24
FB
C9887
4.7u
6.3V
D25
1
2
3
4
5
6
7
8
9
10
11
12
13
14
15
16
17
18
19
20
STB3.3V
R9808
100k
R9872
0
C9898
10p
50V
R9883
0
C9840
16V
0.1u
C9822
6.3V
10u
C9842
16V
1u
R9884
100k
R9838
100
R9841
0
STBY5V
CSL
CEL
CBK
GND
GND
CEL2
FAN_SOS
SID
CL
SIU
SCSU
CPH
CLK
GND
GND
P5V
SOS7_SC2
SOS6_SC1
CMH
FAN_CONT
CML
CSH
(AC_GOOD)
ALL_OFF
GND
GND
+15V
+15V
GND
GND
GND
+5V
+5V
F_STBY_ON
GND
ECO_ON
PANEL_MAIN_ON
FB=0.7V
CTL
FAN_CONT
PANASONIC_MODE
FAN_SOS
ECO_ON
GND
GND
GND
GND
GND
GND
GND
REMOCON
LED_G
GND
DISPEN
INEXCH
ALARM
READY
STBY5V
TUNER_SUB_ON
ALL_OFF
IIC_DATA1
STBY3.3V
IIC_CLK1
IIC_CONT
IIC_CLK2
IIC_DATA2
TXD
RXD
IIC/INT
ACGOOD
LED_R
P15V
PSTB
PBUSY
PDB0
PSLCT
PDB1
PANEL_STBY_ON
SOS4_PS
STBY3.3V
IIC_CONT
GND
SCL1
SDA1
SCL2
SDA2
TXD
RXD
IIC_INT
LED_G
PSTB
LED_R
PDB0
PSLCT
PDB1
PBUSY
REMOCON
STBY5V
GND
P15V
VDATA_DET
P5V
CTL
FB=0.7V
FB=0.7V
C_SEL
B
58764
D
13
F
2
A
C
9
E
D-BOARD TNPA3810AHS (1/6)
(P25)
P-BOARD
TO
DG-BOARD
TO
(DG3)
SC-BOARD
TO
(SC20)
FOR
FACTORY
USE
PROM(FPGA)
15V 2.5V
DC-DC CONVERTER
15V
3.3V
DC-DC CONVERTER
15V
1.2V
DC-DC CONVERTER
AVR P1.5V
AVR 5V
LEVEL CONVERTERLEVEL CONVERTER
1
3
2
TVRN813
TH-42PX600U D-Board (1 of 6) Schematic Diagram
TH-42PX600U
110

Table of Contents

Other manuals for Panasonic TH-42PX600U

Related product manuals