EasyManua.ls Logo

Panasonic TH-42PX600U

Panasonic TH-42PX600U
165 pages
To Next Page IconTo Next Page
To Next Page IconTo Next Page
To Previous Page IconTo Previous Page
To Previous Page IconTo Previous Page
Loading...
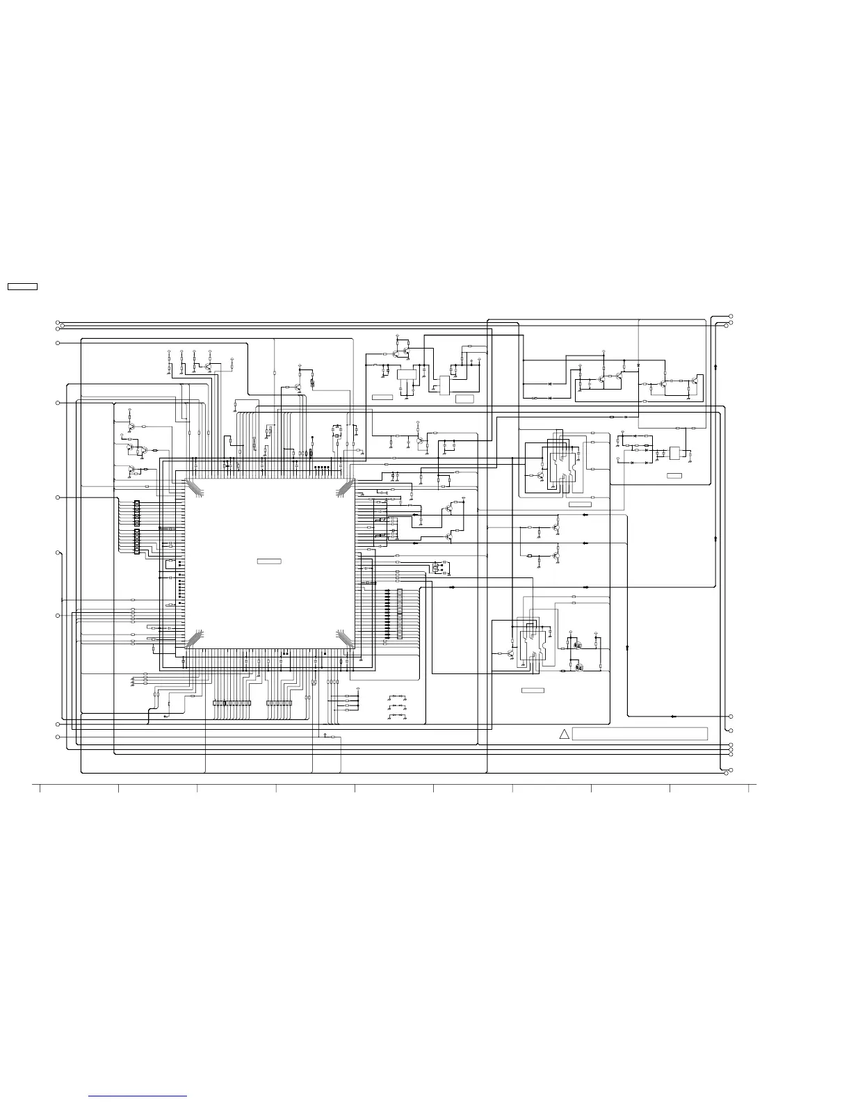
15.26. DG-Board (2 of 8) Schematic Diagram
+
+
+
AO_A8
R_LED_STBY_LED
DTV_SCL0B
GENX_R2
SDA0A
AQ_D15
LVDS_PD
GENX_G0
AO_A12
EXTRG0
GENX_R1
GENX_B1
SDA1
DTV_SDA0B
AP_WE
KEY1
GENX_HIN
GENX_R3
PSM_LEDR_AFC1_KEY2
AUDIO_MUTE
AQ_D2
SD_BOOT
SCL0A
SDATA
AQ_D9
AO_A2
AQ_D4
AO_A19
GENX_G2
SCL2
SCL1
AO_A5
AO_A14
AO_A1
AQ_D14
PANEL_SOS
AP_OE
AQ_D5
PANEL_SDA1
AO_A3
SCL1
GENX_G3
SCLOCK
AI_SENSOR
AO_A17
SDA0B
DTV_SDA0B
AQ_D10
GENX_B2
PANEL_STATUS
AO_A16
AQ_D12
GENX_B0
DTV_SCL0B
AQ_D0
AO_A6
KEY3_KEY_EDGE
GENX_YS
AQ_D11
DTV_RST
AQ_D7
SW_OFF_DET(EMERGENCY_RST)
FORMAT_EDGE(MAIN)
AO_A10
RST
AQ_D8
SOS
SDA1
DISPEN
GENX_R0
AQ_D3
ECO_ON
AV_SW_POWER_SW
GENX_YM
HDMI_DAC_PD
AQ_D1
GENX_B3
FAN_MAX
GENX_CLKIN
GENX_VIN
AQ_D13
AO_A15
A_MON_MUTE_MSP_RESET
FAN_SOS
AP_CE
AQ_D6
AO_A9
GENX_G1
GENX_R4
AO_A18
AO_A7
AO_A11
AO_A4
AO_A13
SRQ
MCU_RST
TV_SUB_ON
TV_SUB_ON
SDA2
M_SDA0
HPD2
DTV_TXD
DTV_RXD
HDMI_INT
STB1.5V
MCU_RST
HDMI_5V_DET2
HDMI_WP
HPD1
HDMI_RST
SCL0B
DTV_1.5V_ON
RM_IN
RST
GENX_B4
GENX_G4
GENX_G5
GC_RST
TV_MAIN_ON
TV_MAIN_ON
SOUND_SOS
PANEL_STBY_ON
HDMI_A_MUTE
STBY3.3V
DTV_1.5V_ON
PANEL_SCL1
SW_OFF_DET(EMERGENCY_RST)
KEY3_KEY_EDGE
MAIN_SW
AFT1
CVBS1
CVBS0
DTV_BUS_CONNECT1
HDMI_CEC
HDMI_5V_DET1
AO_A0
R1217
100
R1406
470k
C1153
4V
100u
C1123
10V
0.1u
R1293
100k
R1161
1k
R1357
10
Q1108
B1ABDF000034
PA1101
K5H8012A0023
SUB5V
R1453
47k
Q1116
B1ABDF000034
R1184
0
C1167
10V
1u
R1332
100k
R1319
2.7k
R1159
12k
R4902
1.5k
C1149
10V
0.1u
R1200
EXB2HV680JV
C1170
10V
0.1u
R1206
47k
R1356
10
L1104
J0JHC0000078
C1156
50V
22p
STBY5V
C1197
50V
100p
C1134
50V
15p
R1284
6.8k
R1478
68
Q1111
B1ABDF000034
R1270
22
R1167
100
R1322
10
C1193
6.3V
10u
R1130
47k
C1148
10V
0.1u
R1134
1k
C1119
10V
0.1u
C0EBF0000354
IC1108
4
OUT
3
CD
1
VSS
2
VDD
MAIN3.3V
R1249
47k
C0EBY0000041
IC1111
1
VIN
2
VSS
3
ON/OFF
5
VOUT
4
VDOUT
TP1110
SUB3.3V
R1147
EXB2HV560JV
R1221
3.3k
C1140
10V
0.1u
R1315
33k
R1367
33k
R1256
1k
R1310
22
R1236
2.7k
R1131
100
JS1102
ERJ2GE0R00X
C1139
10V
0.1u
R1247
7.15k
D1119
MA3X704A0L
R1198
47k
STBY5V
R1230
22
MAIN3.3V
JS1100
ERJ2GE0R00X
R1215
100
R1177
100
R1308
27k
D1113
MA2J11100L
R4903
0
R1275
7.15k
D1106
MA2J72900L
R1464
47k
Q4919
B1ABDF000034
R1165
15k
R1132
100
R1218
68
R1153
100
C1132
10V
0.1u
C1135
10V
0.1u
R1316
10k
R1191
47k
R1154
4.7k
Q1107
B1ABDF000034
R1151
100
R1171
100
C1152
10V
0.1u
R1344
1k
R1239
12k
STBY3.3V
R1400
10k
R1264 100
D1111
MA2J11100L
R1384
0
R1283
100
R1203
1k
C1157
50V
22p
Q4920
2SA207700L
R1303
22
R1150
100
R1388
56k
Q1101
B1ABDF000034
MAIN3.3V
R1342
47k
R1176
12k
R1280
22
R1251
EXB2HV101JV
SUB9V
R1246
9.1k
R1250
220k
R1182
68k
L1103
J0JHC0000078
R1368
18k
R1228
22
Q1106
B1ABDF000034
R1527
47k
R1189
47k
D1121
MA2J72800L
R1164
12k
R1390
56k
C1131
10V
0.1u
STBY3.3V
R1410
1k
R1296
47k
R1328
68k
R1133
1k
R1290
4.7k
X1100
H0J100500030
Q1139
B1ABDF000034
C1221
50V
1000p
R4906
0
R1281
1k
JS1101
ERJ2GE0R00X
Q1125
2SA207700L
C1133
50V
15p
C0CBCAD00016
IC1110
1
Vcont
2
GND
3
Np
5
Vin
4
Vout
C1129
10V
0.1u
C1146
10V
0.1u
C1178
10V
1u
R1524
47k
C1155
16V 0.01u
R1166
100
Q1102
B1ABDF000034
C1171
10V
0.1u
R1271
22
R1268
0
R1234
0
R1324
82k
C1150
10V
0.1u
R1318
2.7k
Q1140
B1ABDF000034
D1107
MA2J72900L
R1297
47k
R1157
100
C1138
10V
0.1u
Q1109
B1CBHD000002
R1467
47k
D1112
MA2J11100L
SUB5V
R1145
100
R1470
0
R1330
47k
R1405
470k
C1159
10V
0.1u
C1190
50V
1000p
R4904
6.8k
C1172
10V
0.1u
R1306
22
C1121
10V
0.1u
C1142
10V
0.1u
R1313
2.7k
TP1107
R1304
22
MN103SC50RGL
IC1103
1
-
2
-
3
-
4
-
5
-
6
-
7
IVSS
8
-
9
-
10
-
11
-
12
-
13
-
14
-
15
-
16
IVDD
17
-
18
-
19
-
20
-
21
MVSS
22
MVDD
23
-
24
-
25
-
26
-
27
-
28
-
29
-
30
IVDD
31
-
32
IVSS
33
-
34
-
35
-
36
-
37
-
38
-
39
-
40
-
41
-
42
-
43
-
44
-
45
-
46
-
47
-
48
IVSS
49
IVDD
50
-
51
-
52
-
53
-
54
VSS
55
VDD
56
-
57
-
58
-
59
-
60
-
61
-
62
-
63
-
64
A17
65
A16
66
A15
67
A14
68
-
69
-
70
-
71
-
72
-
73
IVDD
74
IVSS
75
A20
76
A21
77
NWE0
78
A22
79
A19
80
A18
81
RTCCNT
82
-
83
-
84
-
85
IVSS
86
-
87
-
88
IVDD
89
-
90
-
91
-
92
A2
93
NRE
94
NCS0
95
ZA1
96
VSS
103
SCL1
104
NTEST
105
HSYNC
106
IVSS
107
OSDXI
108
IVDD
118
G04
119
G03
120
G02
121
-
122
-
123
B04
124
B03
125
B02
126
B01
127
IVSS
128
-
129
IVDD
130
-
131
-
132
SDA0A
133
SCL0A
134
VSS
135
RTCXI
136
RTCXO
137
VDD
138
RMIN_IRQ0
139
ROMCNT
140
TEST
141
AVSS1
142
CVBS0
143
AVDD1
144
VREFL0
145
VREFH0
146
VCMO0
147
IREF0
148
VCMO1
149
VREFH1
150
VREFL1
151
CVBS1
152
AVSS2
153
AVDD2
154
PVDD
155
CLL
156
CLH
157
PVSS
158
IVSS
159
-
160
-
161
-
162
-
163
ADIN4
164
ADIN5
165
CECINA
166
CECINB
167
IVSS
168
OSCXO
169
OSCXI
170
IVDD
171
TRCD3
184
-
185
-
186
-
187
-
188
-
189
-
190
-
191
IVDD
192
IVSS
193
-
194
-
195
-
196
-
197
-
198
-
199
-
200
-
201
IVDD
202
IVSS
203
MVSS
204
MVDD
205
-
206
-
207
-
208
-
209
-
210
-
211
-
212
-
213
IVSS
214
IVDD
215
-
216
-
109
-
111
YSOUT
113
R03
115
R01
117
G05
110
-
112
R04
114
R02
116
-
172
TRCD2
173
TRCD1
174
TRCD0
181
VSS
182
VDD
183
-
97
NRST
98
VDD
99
PSCNT
100
SDA2
101
SCL2
102
SDA1
175
TRCST
176
TRCCLK
177
EXTRG1
178
EXTRG0
179
SDATA
180
SCLOCK
STBY3.3V
C1137
10V
0.1u
R1292
100k
R1225
22
IC1106
C0JBAS000128
1
1A
2
1B
3
2B
4
2A
5
2C
6
3C
7
GND
8
3A
9
3B
10
4B
11
4A
12
4C
13
1C
14
Vcc
STBY3.3V
R1263 100
X1101
H0J327200114
C1144
10V
0.1u
R1214
47k
R1187
EXB2HV680JV
R1158
27k
D1120
MA2J72800L
R1466
10k
C1130
10V
0.1u
R4908
1.5k
C1145
10V
0.1u
R1135
10k
R1232
3.3k
R1174
100
Q4921
2SA207700L
R1222
33
R1326
100k
R1137
100
C1158
10u
6.3V
R1375
100k
R1216
100
R1449
47k
R1479
47k
R1411
47k
SUB3.3V
R1307
100k
STBY5V
R1269
0
R1224
47k
C1128
10V
0.1u
SUB5V
R1197
47k
C1127
10V
0.1u
R1199
47k
R1129
47k
C1136
10V
0.1u
Q1141
B1ABDF000034
Q1110
B1CBHD000002
R1168
0
Q4918
B1ABDF000034
Q1142
B1ABDF000034
R1372
47k
R1530
0
Q1103
B1ABDF000034
C1151
50V
100p
Q1100
B1ABDF000034
R1181
100
R1207
100k
R1220
68
R1346
47k
R1386
100k
C1162
16V
0.01u
IC1105
C0JBAS000128
1
1A
2
1B
3
2B
4
2A
5
2C
6
3C
7
GND
8
3A
9
3B
10
4B
11
4A
12
4C
13
1C
14
Vcc
R1235
2.7k
C1154
10V
0.1u
Q1114
B1ABDF000034
R1311
22
R1223
1k
R1233
3.3k
R1321
15k
R1526
1k
R1175
56k
D1109
B0JCCE000008
TP1106
R1309
22
STBY3.3V
R1363
47k
R1376
27k
R1387
10k
L1107
J0JHC0000078
C1194
6.3V
10u
C1161
10V
1u
C1169
4V
100u
C1125
10V
0.1u
R1231
47k
C1141
10V
0.1u
R1155
4.7k
C1147
10V
0.1u
R1243
1k
R4905
1.5k
R1312
22
C1122
10V
0.1u
C1160
6.3V
47u
R1305
22
R1241
8.2k
R1188
10k
L1102
J0JHC0000078
R4907
6.8k
R1252
EXB2HV101JV
R1238
47k
STBY5V
R1279
22
R1343
560
R1183
EXB28V680JX
R1156
100k
STBY5V
R1148
EXB2HV560JV
C1120
10V
0.1u
R1314
2.7k
R1259
100
R1226
22
C1118
10V
0.1u
SUB3.3V
R1528
100
R1229
0
R1282
15k
R1531
0
C1168
10V
1u
YMOUT0
MEMD5/D5/IRQ6A
STB5V(SUB5V BACKUP)
HOUTA
A4/MEMA1
ADIN3
ADIN1
MEMD28/D28
MEMD6/D6/IRQ7A
A10/MEMA7
ADIN0
SCL0B
MEMD19/D19
MEMD30/D30
ZMEMD20/IRQ5B
ZMEMD18/IRQ3B
MEMD10/D10
MEMD20/D20
G01
A11/MEMA8
STB5V
MEMD8/D8
SUB5V
A7/MEMA4
A8/MEMA5
ZMEMD21/IRQ6B
ZMEMD23/IRQ8B
MEMD29/D29
MEMD7/D7/IRQ8A
(Euro:key EDGE)
MEMD27/D27
SDBS1/A1
VSYNC
MEMD25/D25
MEMD31/D31
MEMD16/D16
ZMEMD19/IRQ4B
SDA0B
ZMEMD22/IRQ7B
A6/MEMA3
B00
MEMD17/D17
L1
G00
MEMD18/D18
MEMD21/D21
MEMD11/D11
VCLKOUTA
ADIN2
MEMD24/D24
A5/MEMA2
A9/MEMA6
R00
MEMD22/D22
MEMD1/D1/IRQ2A
ZMEMD16/NCS2B
MEMD23/D23
MEMD4/D4/IRQ5A
MEMD0/D0/NCS2A
ZMEMD17/IRQ2B
MEMD26/D26
MEMD15/D15
MEMD2/D2/IRQ3A
MEMD14/D14
MEMD3/D3/IRQ4A
A12/MEMA9
L1
MEMD13/D13
A13/MEMA11
MEMD9/D9
MEMD12/D12
A3/MEMA0
(ALL OFF)
1610 14 1511 13 181712
MAIN MICOM
RESET
SWITCHING
STB 3.3V
RESET
SWITCHING
STB 1.5V
8
9
10
24
23
22
21
25
1
3
5
7
2
6
4
28
26
27
29
30
DG-BOARD TNPA3903BES (2/8)
!
TH-42PX600U DG-Board (2 of 8) Schematic Diagram
TH-42PX600U DG-Board (2 of 8) Schematic Diagram
TH-42PX600U
94

Table of Contents

Other manuals for Panasonic TH-42PX600U

Related product manuals