EasyManua.ls Logo

Panasonic TH-42PX600U

Panasonic TH-42PX600U
165 pages
To Next Page IconTo Next Page
To Next Page IconTo Next Page
To Previous Page IconTo Previous Page
To Previous Page IconTo Previous Page
Loading...
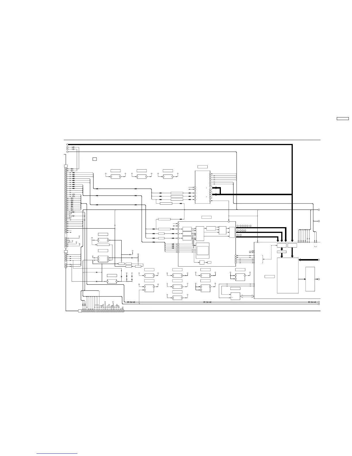
15.23. DG-Board (2 of 3) Block Diagram
MAIN_PR
VIDEO_OUT
RM_IN
ATV_SR
ATV_SL
BS_SR
B_DDR_CLK
MAIN_PR
BS_Y(V)
KEY3
MCU_RST
MAIN_L
MAIN_Y
CVBS0
KEY1
BS_C
MAIN_Y
B_DDR_NCLK
BS_SL
A_MON_MUTE
MAIN_R
MAIN_PB
R_LED_STBY_LED
MAIN_PB
SL
FAN_MAX
SOUND_SOS
TV_MAIN_ON
SR
FAN_SOS
SOS
TV_SUB_ON
SW_OFF_DET
CLKINB2
HSIB
VSIB
AP_DE
REFCH_HDMI
SR
SL
SUB_Y
SUB_PB
SUB_PR
SUB_PB
SUB_PR
SUB_Y
JTAG_TRST
JTAG_TCK
CVBS1
TCK
TRST
KEY2
AI_SENSOR
CLKINB
HSIB
VSIB
PC_R
PC_VS
PC_HS
PC_G
PC_B
PC_VS
PC_HS
PC_R
PC_B
PC_G
CLKINB
GC_RST
FRCK
FRCK
80
SDA
MATRIX
VOUT
HSIA
MAIN_PR/B
DG2
SYNC
A/D 10bit
23
AI_SENSOR
4
13
5
16
VDD
Q1114
MAIN3.3V
AIN1
5
1
DETECT
82
SUB3.3V
36
PC_VS
SCL2
/MSP.RESET
37
I/P CONV.
625i/p
SCL
GC5 PROCESSOR
A/D 10bit
86
TRST
SR
11
STB3.3V
1
1
VDOUT
69
STBY3.3V
HS
21
6
IC4018
KEY1
16
SOS
31
15
9
VIN
IC4013
IC4019
27
1
110MHz
STBY5V
49
PORT-A
A_DDR_CLK
TCK
MAIN_PB
DCLK_IN
SDA2
SUB3.3V
RESET
74
SCL0B
MAIN1.8V
AUDIO MUTE
IC1108
29
KEY3
3
3D/2D com
39
(ADV7499)
MAIN 1.8V
SDA0B
3
(FS&HDMI)
3D Y/C
SDA
I/F
STB 1.5V
MAIN_L
4
VSIA
Q4057
STB1.5V
ON/
NR
55
KEY2
VS_IN
PORT-B
78
54
TO
41
SUB_PB
BT30V
Q1111
RESET
4
SL
BS_C
VIN
VIN
2
A_DDR_NCLK
MIX
1
AD 3.3V
Q4050,Q4058
Sync
AIN4
REFCK_ADV
110MHz
MAIN 1.8V
5
8
BS_SR
5
53
43
MAIN_R
AUDIO MUTE
51
73
MAIN_Y
10bit A/D(ADV7499)
76
57
SCL2
PC_R
STB 3.3V
STBY3.3V
AD 3.3V
IC4038
2
RESIZE
1080i
720p
35
IC4037
SEPA
VOUT
XTAL
CHROMA
SW
CLK
Q1140,Q1141
8
H1
BS_Y(V)
SCLK
STB5V
77
VIDEO_OUT
IC1110
99
25
RM_IN
COLOUR
H2
OUT
INPUT
15
SUB5V
SDA2
DIGITAL
Macrovision
SOS
AIN6
BS_SL
14
45
CONT
STB3.3V
ATV_SR
AV-SW POWER SW
65
Q1116
(STB5V)
MAIN5V
6
56
A MON MUTE
MAIN1.8V
TO
BT30V
38
63
72
85
RST
STB5V
OFF
DEM.
HDMI_SR
STBY5V
->YUV
Q4056
81
7
BT30V
VS
R_LED_ON
CC_MAIN
CLKIA
4
67
4
CK
(DVB_C)
3
ATV_SL
110MHz
PC_B
AIN3
4
IC1111
SUB_Y
47
CLK0A
5
SELF,ID,ED2
Q1108
8
YBIN0-9,UBIN0-9
NOISE LEVEL
NRST
PC_HS
VOUT
SUB_PR
SDA0B
128M DDR SDRAM
AIN5
IC4027
VOUT
CK
LLC1
35
HS_IN
Detection
VDD
AIN2
RGB
PC_G
70
MAIN3.3V
SCL0B
58
7
A/D 10bit
525i/p
Q1130,Q1134
2
5
JTAG
RESET
VPK
VOUT
1
(DVB_Y)
33
4
HDMI_SL
DG1
VIN
FAN_SOS
SR
MAIN5V
SUB5V
29
SUB9V
32
SUB 5V
8
PA_SOS
MAIN3.3V
MAIN9V
2233 23
SOUND SOS
DG20
2838
SUB 5V
MAIN3.3V
187
MAIN 1.8V
17
MAIN 5V
25 3524
SUB_ON
PA20
MAIN3.3V
402
TUNER
6
MAIN3.3V
21
MAIN 5V
MAIN9V
TO
9
FAN_MAX
MAIN1.8V
4
SUB 9V
SUB 9V
MAIN 1.8V
39
SL
SUB 9V
TUNER
MAIN_ON
CLKINB2
VSIB
AP_DE
HSIB
REFCK_HDMI
L
R
DLL 2.5V
VOUTVDD
MAIN3.3V
5
IC4029
2.5V
1
RST
STB5V
(SUB5V BACK UP)
SL
78
SR
74
SOS
10
30
YIN0-YIN9
29
13
22
91
4241
14
33
UVIN0-UVIN9
7
RIN0-RIN3
94
30
VIN3
72
UBOUT0
TCK
35
VIN1
74
IC4020
61
64
YGOUT2
YGOUT0
Q4043,Q4051
85
UBOUT7
CLK0
Q4044,Q4052
SDA1
73
22
94
HPO
Q1131,Q1135
NRST
SCL
TRST
93
GC3FS
YGIN2-9,UBIN2-9
40
80
21
YGOUT1
SUB_CC
VPO
Q4046,Q4054
VIN2
SCL1
65
83
YGOUT7
SDA
84
AD 2.5V
AD 2.5V
IC4014
VOUT
1
VDD
5
MAIN 3.3V
VDD VOUT
PLL 2.5V
PLL 2.5V
1
IC4017
5
MAIN 3.3V
IC4040
VDD
1
MAIN2.5V
VOUT
5
MAIN 2.5V
MAIN 3.3V
12
POWER SW
CLKINB1
VOUTVDD
1
1.8V
AVR 1.8V
5
MAIN3.3V
IC4016
RST
DG
DIGITAL SIGNAL PROCESSOR
MICOM
HDMI INTERFACE
XTAL IN
16
FRCKO2
TV_MAIN_ON
PLL 3.3V
15
VIN
1
5
VIN
CONT
IC4032
8
MAIN1.2V
VOUT
MAIN1.8V
MAIN 1.2V
IC4030
PLL 3.3V
MAIN 5V
VOUT
1
VOUT
IC4035
DDR 2.5V
5
CONT
VIN
DDR2.5V
MAIN3.3V
8
TH-42PX600U
DG-Board (2 of 3) Block Diagram
TH-42PX600U
DG-Board (2 of 3) Block Diagram
TH-42PX600U
91

Table of Contents

Other manuals for Panasonic TH-42PX600U

Related product manuals