EasyManua.ls Logo

Panasonic TH-42PX600U

Panasonic TH-42PX600U
165 pages
To Next Page IconTo Next Page
To Next Page IconTo Next Page
To Previous Page IconTo Previous Page
To Previous Page IconTo Previous Page
Loading...
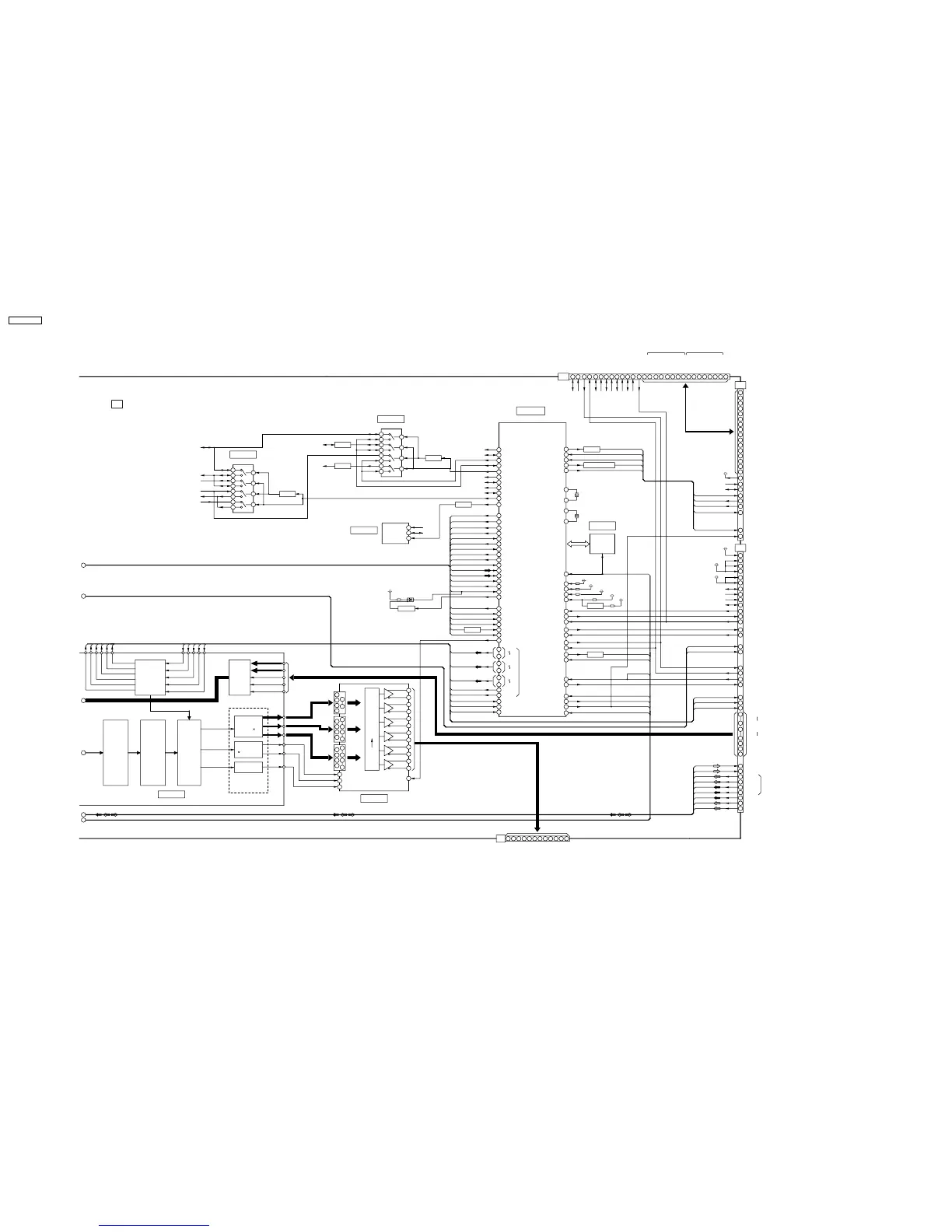
15.24. DG-Board (3 of 3) Block Diagram
MAIN_L
HDMI_WP
HDMI_INT
PA_SOS
GENX_V
GENX_H
RO0-R04
HDMI_RST
KEY1
BS_Y(V)
VIDEO_OUT
PANEL_SOS
BO0-B04
A_MON_MUTE
STATUS
MAIN_R
PEAKS_OSCK
FAN_SOS
ECO_ON
DTV_TXD
PANEL_STBY_ON
FAN_MAX
ATV_SL
DISPEN
TV_MAIN_ONGENX_CLK
SOUND_SOS
BS_SR
PEAKS_OSH
OSD_YS
AUDIO_MUTE
TV_SUB_ON
ATV_SR
PANEL_STBY_ON
ECO_ON
PEAKS_OSV
DISPEN
RM_IN
GO0-G05
BS_C
BS_SL
R_LED_STBY_LED
MCU_RST
SW_OFF_DET
OSD_YM
STATUS
PANEL_SOS
AI_SENSOR
HDMI_5V_DET2
GC_RST
HPD2
HPD1
HDMI_5V_DET1
HDMI_DAC_PD
CVBS1
CVBS0
HDMI_CEC
KEY2
KEY3
TRST
JTAG_TCK
D_PSLCT
TX_TE-
107
REMOCON
43
188
117
D_RXD
56
109
IC4037
43
SDA0B
OSDXI
20
76
ATV_SL
2
PORT_E
R_LED_STBY_LED
PEAKS_CLKIN
GAMMA
TX_TD+
D_IIC_INT
PEAKS_OSV
17
4
D_IIC_INT
19
SDA0B
SRQ
BS_C
BA_SCL0
51
ECO_ON
10Bit LVDS
R_LED
45
IRQ4A
Q1110
STBY3.3V_DET
14
SCL0B
36
42
13
TUNER_SUB_ON
YSOUT
11
SCL2
SDA0A
SCL2
103
MAIN3.3V_DET
TX_TB-
R04
PORT_D
DISPEN
SCL1
SUB5V
DG3
4
18
BS_FORMAT
37
D_RXD
D_PDB0
54
1
5
107
SWITCHING
SUB9V
PEAKS_VIN
13
FLASH
DG5
MAIN_R
SCL0A
206
TX_TE+
186
BA_SDA0
Q1107
PEAKS_HIN
AFT1
AV_SW/POWER SW
165
20
18
OSDYS
19
DT12
UVIN0~UVIN7
53
SW_OFF_DET
PEAKS_CIN0
IC1105
194
GENX_H
87
105
64
Q1101,1139
PANEL_SCL1
DTV_SCL0B
DTV_RST
109
33
32
8
TO
209
TO
17
47
100
Q1102
SDA0A
DTV_RXD
57
2
SDBOOT
208
52
3
WP
7
TX_TA+
BS_SL
(F_STBY_ON)
IC1106
29
TV_MAIN_ON
DTV_SCL0B
BA_SW
IC1102
CECINA
4M
PEAKS_OSV
GO0-GO5
KEYSCAN3_KEY_EDGE
FOR IIC/SERIAL
110
131
VMUTE
SCL1
INV.
102
TX_TD-
5
MAIN_SW
13
14
VIDEO_OUT
33
PANEL SW
ALARM(PANEL_SOS)
1
133
163
D_15V
PEAKS_YIN7
(OSD INPUT)
SCL0B
22
TO
D_TXD
30
OSD MIX
PEAKS_OSCK
VSOE
TX_TCLK+
X1101
D_PDB1
OUT
4
32
16
12
POWER_SOS
6
AFT1
TO D5
132
R00
SRQ
62
STB3.3V
187
22
FOR ROM(D-BOARD)
24
G_LED
SBI1
(PEAKS)
53
85
130
D_SCL2
37
40
SCL1
1
122
SDA1
SUB5V
22
LVDS_PD
5
9
36
13
D_15V
PANEL STATUS
7
14
TX_TCLK-
138
4
SDA0B
D_PBUSY
SUB9V
Q1142
15
IC1101
PANEL_STBY_ON
58
CONVERTER
SCL0A
MAIN_L
READY(STATUS)
116
6
SDAOB
SDA2
DG22
215
DTV_RST
HC15
ATV_SR
12
Q1106
95
184
6
SDA1
RTCXO
35
SCL0A
105
3
PEAKS_YIN0
BT30V
5
136
BT30V
38
Q1100
112
5
FAN_SOS
SCL1
5
13
9
GENX_CLK
DTV_SDA0B
23
6
SDA0B
29
216
8
15
CONT
MAIN3.3V
D_PSTB
10
Q1109
8
3
B00
X1100
DTV_SDA0B
CLKOE
FORMAT_EDGE
SCLOB
PEAKS_CIN7
PANEL SCL1
Q1137
60
D/A OSD
PIXEL CONV.
DG15
111
SCL2
D_PSLCT
159
135
46
11
13
G_LED
PANEL_STBY_ON
61
14
SCL1
SCL0B
SRQ
VSIC
8
SUB9V
REMOTE IN
D3
D_IIC_CONT
WP
DTV_SCL0B
SDA
TV_SUB_ON
STBY5V
13
96
SUB9V
SDA0A
GENX_V
2
MONITOR
26
10
Q1103
4
6
41
R_LED
211
INV.
35
D_PDB1
GC_RST
11
SUB5V_DET
97
97
21
123
IIC_CLK
1
CLKIN
BS_Y(V)
2
D_SDA2
169
RO0-RO4
16
34
183
15
212
RTCXI
210
D_IIC_CONT
SDA2
HDMI_RST
3
21
SCL2
10
168
KEYSCAN1
35
11
B04
PEAKS_OSH
17
STBY5V
D_STB3R3V
OSCXI
TX_TB+
10
DTV_SDA0B
D_BUSY
ECO_ON
DTV_TXD
3
27
D_STB3R3V
HSOE
164
DTV_SDA0B
RESET
30
SBO1
SDA1
NRST
SOUND SOS
BA_SDA0
SWITCHING
SDA0B
6
AI_SENSOR
23
PANEL SDA1
16
HDMI_WP
OSDYM
SUB9V_DET
YIN0~YIN7
33
19
HSIC
DTV_TXD(SBI1)
VSYNC
SW_OFF_DET
8
TX_TC+
BS_SR
5
D_SDA2
SUB5V
TX_TA-
27
BO0-BO4
PEAKS_OSCK
D_SCL2
197
80
SDA2
45
12
205
19
SCL0A
10
YMOUT
44
PANEL_SDA1
101
G00
106
BA_SCL0
24
PANEL_SOS
D_PSTB
50
52
57
34
SDA1
SDA0A
SUB9V
Q1125
(RGB OUT)
DTV_SCL0B
FAN_CONT
162
REMOCON
HSYNC
HDMI_INT
AI
SD_BOOT
128
2
16
A_MON_MUTE
TX_TC-
15
D_TXD
16
30
PEAKS_OSH
SUB5V
SDA2
STBY5V
STBY3.3V
8
SCL
110MHz 3
JTAG_TRST
207
MAIN_SW
SCL0B
DTV_RXD(SBO1)
D_PDB0
SCL0A
SDA1
7
D/A 10bit
IIC_DATA1
AUDIO MUTE
SDA0A
88
ROM
PORT_C
D/A 8bit
SCL0B
OSD
9
G05
HDMI 5V DET2
198
OSCXO
4
5
61
59
33
38
(SERIAL)
TC-
TCLK-
25
TA-
24
20
31
30
TE-
TD-
TD+
IC4036
DATA
13
LVDS TRANSMITTER(10bit)
23
/PDWN
29
GOE0~GOE9
12
55
TE+
TB-
19
TC+
CLKIN
TC5
18
22
28
LVDS
TCLK+
TTL
57
21
BOE0~BOE9
TB+
TC4
TA+
8
PARALLEL
63
40
62
42
6
11
64
9
1
ROE0~ROE9
44
46
48
50
52
54
12
POWER SW
196
HPD2
HPD1
195
185
HDMI 5V DET1
HDMI_DAC_PD
199
CVBS0
142
151
CVBS1
KEYSCAN2
160
MICOM
DIGITAL SIGNAL PROCESSOR
DG
HDMI INTERFACE
IC1103
MAIN MICOM
GC5 PROCESSOR
EEPROM
26
JTAG_TCK
TH-42PX600U
DG-Board (3 of 3) Block Diagram
TH-42PX600U
DG-Board (3 of 3) Block Diagram
TH-42PX600U
92

Table of Contents

Other manuals for Panasonic TH-42PX600U

Related product manuals