EasyManua.ls Logo

Panasonic TX-P42VT20E - SS-Board (2;2) and SS2-Board Schematic Diagram

Panasonic TX-P42VT20E
153 pages
Print Icon
To Next Page IconTo Next Page
To Next Page IconTo Next Page
To Previous Page IconTo Previous Page
To Previous Page IconTo Previous Page
Loading...
96
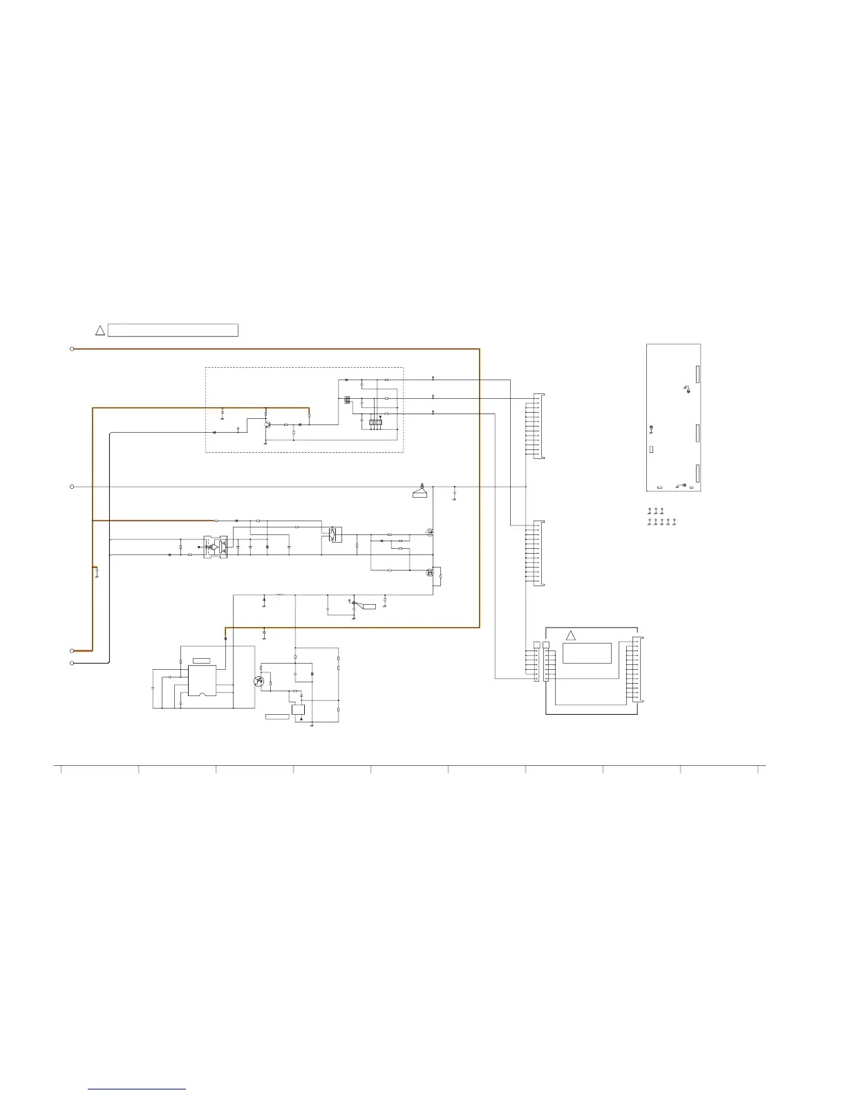
13.46. SS-Board (2/2) and SS2-Board Schematic Diagram
+
+
+
TERM
SIDE
TERM
SIDE
TERM
SIDE
AA_UML
AA_SOS8
AA_UEH
*C16101
2200p
630V
C16192
25V
0.1u
C16331
250V
1u
C16285
0.1u
50V
C16319
50V
0.1u
C16317
1u
10V
C16287
0.1u
50V
C16315
1u
10V
C16191
25V
4.7u
C16286
0.1u
50V
C16318
0.1u
50V
C16195
25V
1u
C16316
0.1u
16V
C16280
25V
1u
C16193
25V
47u
C16328
220u
160V
*C16314
220V
250u
D16192
B0ACCJ000048
D16280
B0ACCJ000048
D16191
B0ECKP000055
D16101
B0JCME000093
D16317
B0ECKP000055
D16286
B0ACCJ000048
D16316
B0ECKP000055
D16285
B0ADEJ000035
D16282
DZ2J068M0L
D16315
DZ2J150M0L
D16196
DZ2J200M0L
C0DBZMC00006
IC16312
4
REFERENCE
3
CATHODE
1
NC
2
ANODE
IC16304
MIP3900MSSCF
1
VDD
2
CL
3
FB
4
LS
5
DRAIN
7
SOURCE
8
SOURCE
*SS64
1
2
3
4
5
6
7
8
9
10
11
12
13
*SS61
1
2
3
4
5
6
7
8
9
10
11
12
13
SS21
1
2
3
4
5
6
7
L16303
G0C471MA0049
ZA16003
K4CD01000011
ZA16001
K4CD01000011
ZA16002
K4CD01000011
PC16301
B3PBA0000498
12
34
PC16191
B3PBA0000496
1
2
34
5
6
TP36
TP54
TP56
TP51
TP26TP25
TP29 TP31
TP27TP24
TP30
TP43
TP42
TP28
Q16101
B1CFRM000008
G
D
S
Q16102
B1CFRM000008
G
D
S
Q16280
B1ABCF000231
Q16191
B1HFPFA00001
R16285
EXB38V623JV
R16281
10k
R16109
10 R16101
220
R16320
68k
R16192
10k
R16290
330k
R16283
47k
R16195
1
R16288
330k
R16284
220k
R16104
10
R16319
2.49k
R16102
220
R16193
75
R16116
47k
R16334
4.7k
R16282
220
R16289
330k
R16330
1k
R16103
10
R16191
150
R16335
1k
*R16318
68k
*R16309
33k
*R16307
64.9k
R16105
470k
R16332
470k
SS24
1
2
3
4
5
6
7
SS58
1
2
3
4
5
6
7
8
9
10
11
12
13
=
*
171311 151410 181612
!
VE GEN.
SHUNT REG.
TPVe
TPSS1
ELECTRODE
SUSTAIN
PANEL
ELECTRODE
SUSTAIN
PANEL
FPC protector
3
4
1
2
SS2-BOARD
!
TNPA4802
ELECTRODE
SUSTAIN
PANEL
SS-BOARD TXNSS11NEK (2/2)

Table of Contents

Related product manuals