EasyManua.ls Logo

Paradox SP7000 - One-Touch Arming and Auto-Arming; One-Touch Arming Options; Fast Exit; Timed Auto Arming

Paradox SP7000
71 pages
Print Icon
To Next Page IconTo Next Page
To Next Page IconTo Next Page
To Previous Page IconTo Previous Page
To Previous Page IconTo Previous Page
Loading...
12
Magellan & Spectra SP • Installation Guide
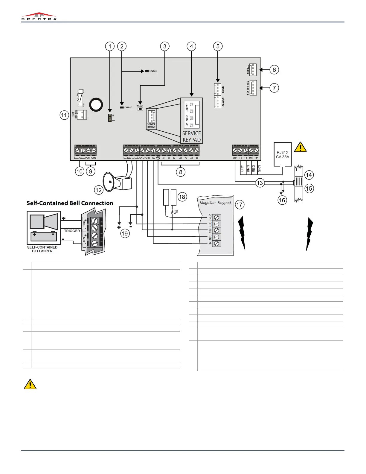
SP5500 PCB Layout
To provide maximum
lightning protection we
strongly recommend having
separate earth connections
for the dialer and zone
ground terminals.
40 VA transformer strongly recommended.
Max. number of keypads: 15 keypads
Max. aux. current: 700 mA
Max. distance of bus module from panel: 76 m (250 ft.)
Max. total run of wire: 230 m (750 ft.)
This equipment must be installed and maintained by qualified service personnel only.
For UL and C-UL warnings, refer to the UL and C-UL Warnings section at the back of the MGSP Reference & Installation Manual.
The sum of the current drawn from the
BELL and AUX must be limited to 1.3A. Exceeding this limit will overload the panel power supply
and lead to complete system shutdown.
Disconnect
telephone line
before servicing.
1
PGM +/- trigger not supported by the SP5500
2
LEDs
Status LED:
Flash once every second: Normal
Flashes ON 1 sec. and OFF 1 sec.: Any trouble
Always ON: Panel is using phone line
Fast flash 6 seconds after power-up: Installer lock enabled
Charge LED:
•Charging and battery test LED
3 Refer to Panel Reset on page 3
4 Four-pin connector can be used for quick installation of a keypad
5 EBUS (J3) and Dialer (J4) used with:
VDMP3 Plug-In Voice Module for voice reporting
PCS Series Communicator Module
6 Serial: Used for connecting the IP Internet Module/PCS (Data); also used
for In-Field Firmware upgrade through a 307USB Direct Connect Interface
7 Paradox Memory Key (PMC5)
8 Refer to Single Zone Inputs on page 13
9 PGM Output: Refer to Alarm Relay and PGM Connections on page 60
10 16.5 Vac (50 or 60 Hz), minimum 20 VA (40 VA recommended)
11 Refer to AC Power & Backup Battery Connections section
12 The
BELL output will shutdown if the current exceeds 3A
13 AWG#14 single conductor solid copper wire
14 Cold water pipe grounding
15 Ground clamp
16 To metallic enclosure
17 For the keypad’s zone configurations, refer to the programming guide
18 If EOL is enabled, see section [706] option 2, on page page 34.
Also refer to Keypad Zone Connections on page 13.
19 To connect additional wiring to auxiliary power, use the red (+) and black
(-) keypad connectors; auxiliary power will shut down if current exceeds
1.1A; if the auxiliary output is overloaded and shuts down, you must
disconnect all loads from the output for at least 10 sec. before
reconnecting any load back to the auxiliary output

Table of Contents

Other manuals for Paradox SP7000

Related product manuals