EasyManua.ls Logo

Parker Hyperchill ICE116 - Page 149

Parker Hyperchill ICE116
Print Icon
To Next Page IconTo Next Page
To Next Page IconTo Next Page
To Previous Page IconTo Previous Page
To Previous Page IconTo Previous Page
Loading...
17
,
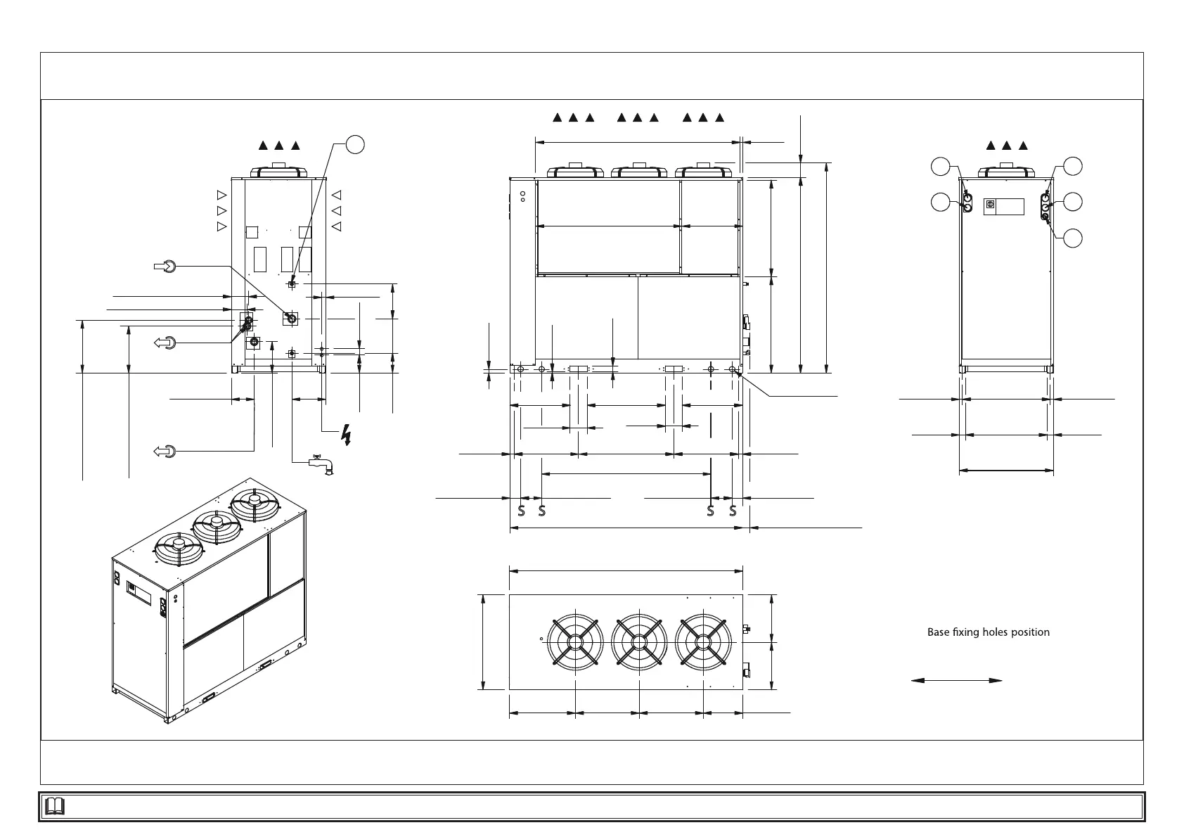
7.6 Dimensions ICE076-116(A)
ICE076-116
160
6.30[]
160
6.30[]
2200 86.61[]
2207 86.89[]
60
2.36[]
449
17.68[]
449
17.68[]
185
7.28[]
294
±
5
11.56
±
.19[]
322
12.7[]
40 1.57[]
168
6.61[]
327
12.87[]
327
12.87[]
890 35.04[]
*
30
1.18[]
*
30
1.18[]
908 35.75[]
100 3.94[]
200 7.87[]
1600 62.99[]
200 7.87[]100 3.94[]
56
2.20[]
570 22.44[]740 29.13[]570 22.44[]
497
±
5 19.57
±
.19[]
442
±
517.40
±
.19[]
150 ± 5 5.89 ± .19[]
162 ± 5 6.38 ± .19[]
*
40
1.57[]
*
40
1.57[]
*
No.8 HOLES Ø18
830 32.68[]
375
14.76[]
605
23.82[]
605
23.82[]
622
24.49[]
35
1.38[]
*
610 24.02[]
*
900 35.43[]
*
610 24.02[]
70 ± 5 2.76 ± .19[]
ø51 2.01[]
216 ± 5
8.49 ± .19[]
1984 78.11[]
136
5.35[]
60
2.36[]
770
30.32[]
60
2.36[]
898
35.35[]
25
.98[]
575
22.65[]
915 36.02[]
1848 72.76[]
10
.39[]
CIRCUIT 2 CIRCUIT 1
17
16
15
17
16
S SS
S
13
NP (no pump)
P (pump)
1933 76.1[]
1382 54.43[]
ICE076--090
[ inches ]
mm
*
ICE116
ICE076
ICE090-- 116
Water Charge / Drain

Table of Contents

Related product manuals