EasyManua.ls Logo

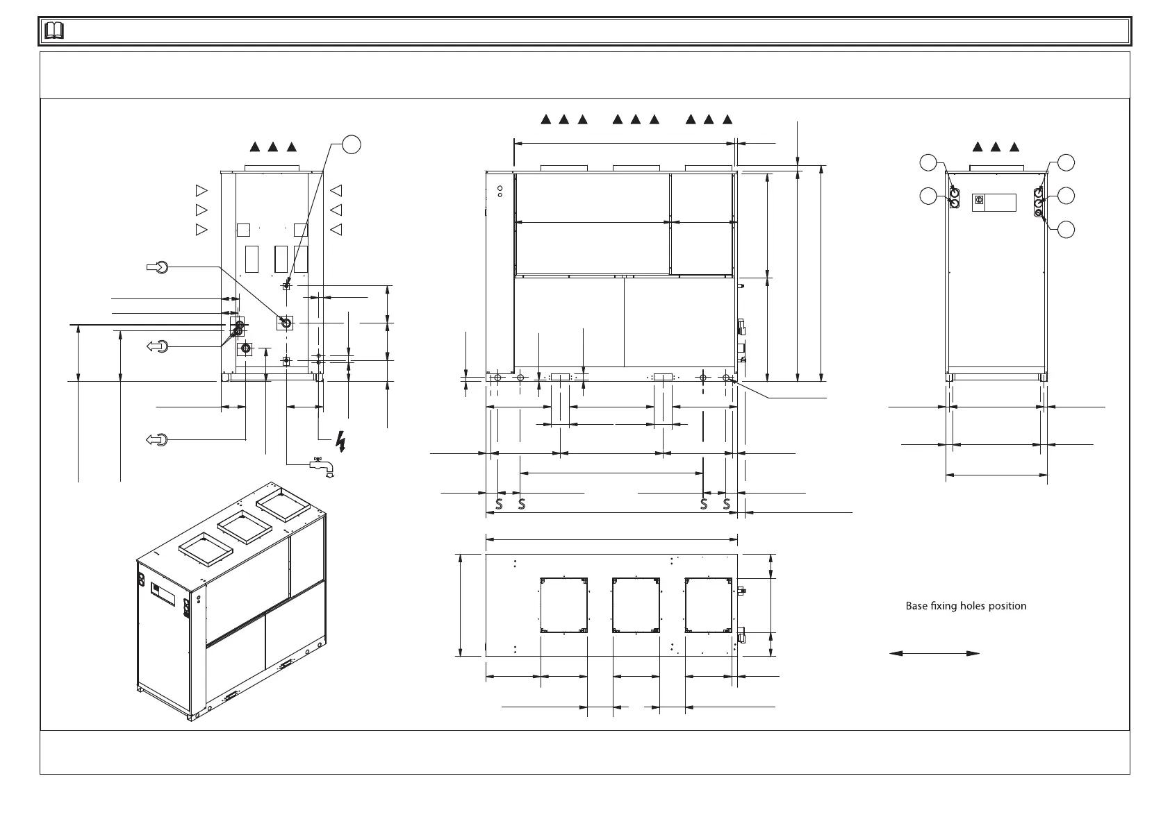
Parker Hyperchill ICE116 - Dimensions

Parker Hyperchill ICE116
Print Icon
To Next Page IconTo Next Page
To Next Page IconTo Next Page
To Previous Page IconTo Previous Page
To Previous Page IconTo Previous Page
Loading...
18
,
7.6 Dimensions ICE076-116 (C)
ICE076-116
294 ± 5
11.56 ± .19[]
60
2.36[]
50
1.97[]
915 36.02[]
481
18.9[]
408
16.06[]
225,5 8.88[]
408
16.06[]
225,5 8.88[]
408
16.06[]
51
2.0[]
2207 86.89[]
475
18.70[]
211,5
8.33[]
1933 76.1[]
908 35.75[]
1382 54.43[]
100
3.94[]
200 7.87[]
1600 62.99[]
200 7.87[] 100 3.94[]
160
6.30[]
160
6.30[]
740 29.13[]
56
2.20[]
570 22.44[] 570 22.44[]
2200 86.61[]
185
7.28[]
327
12.87[]
327
12.87[]
168
6.61[]
40
1.57[]
216 ± 5
8.49 ± .19[]
442 ± 5 17.40 ± .19[]
497 ± 5 19.57 ± .19[]
162 ± 5 6.38 ± .19[]
*
30
1.18[]
*
30
1.18[]
890 35.04[]
*
40
1.57[]
*
40
1.57[]
211,5
8.33[]
1898 74.72[]
70 ± 5 2.76 ± .19[]
No.8 HOLES Ø18
830 32.68[]
35
1.38[]
ø51 2.01[]
*
610 24.02[]
*
900 35.43[]
*
610 24.02[]
770
30.32[]
60
2.36[]
60
2.36[]
322
12.68[]
150 ± 5 5.89 ± .19[]
898
35.35[]
1848 72.76[]
575
22.65[]
10
.39[]
25
.98[]
CIRCUIT 2
CIRCUIT 1
17
16
15
17
16
NP (no pump)
P(pump)
13
ICE076
ICE090--116
ICE076--090
ICE116
S S S S
[ inches ]
mm
*
Water Charge / Drain

Table of Contents

Related product manuals