EasyManua.ls Logo

Parker Hyperchill ICE116 - Page 151

Parker Hyperchill ICE116
Print Icon
To Next Page IconTo Next Page
To Next Page IconTo Next Page
To Previous Page IconTo Previous Page
To Previous Page IconTo Previous Page
Loading...
19
,
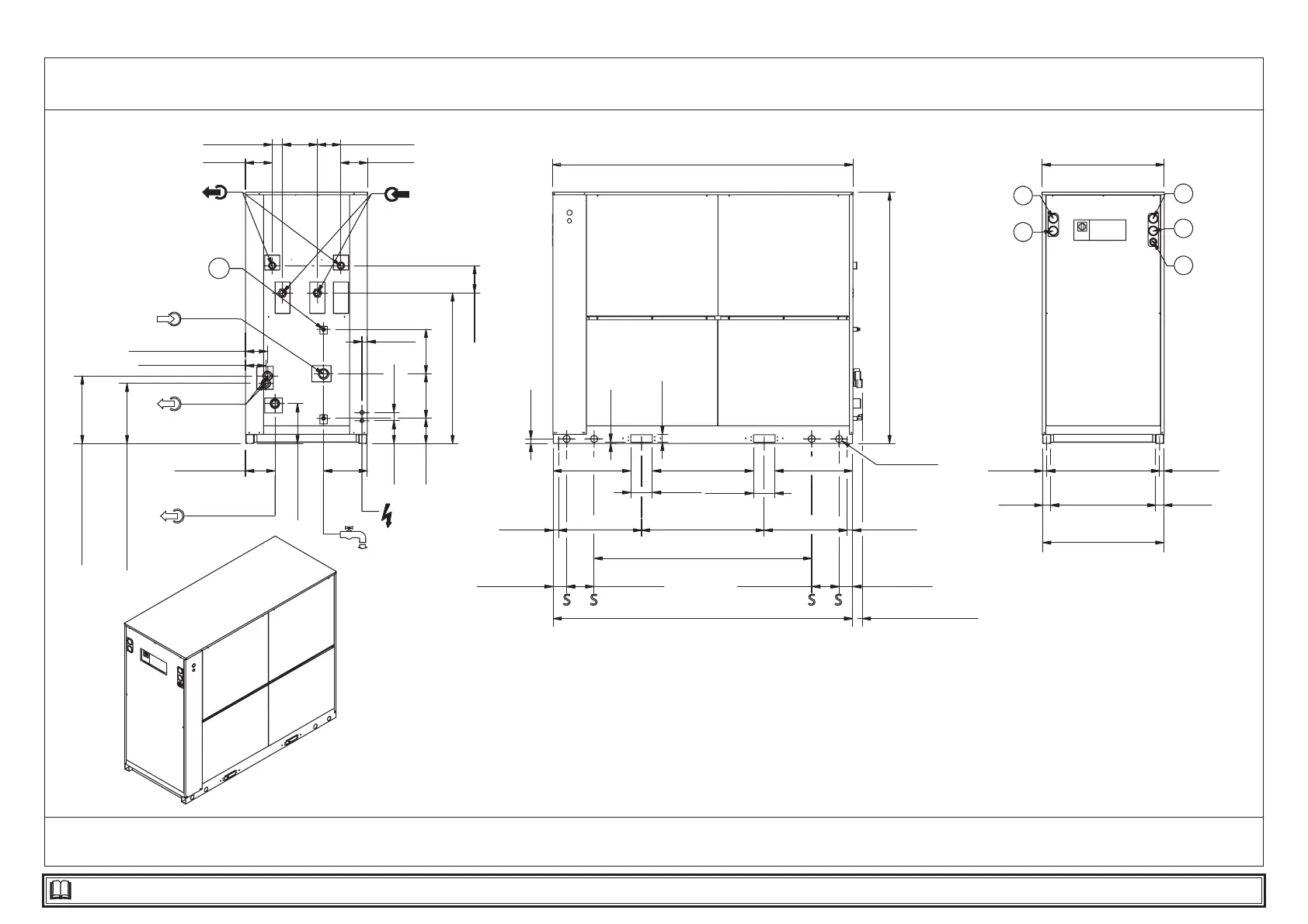
7.6 Dimensions ICE076-116 (W)
ICE076-116
2207 86.89[]
197
7.76[]
76 2.99[]
197
7.76[]
172 6.77[]
256
10.08[]
898 35.35[]
201
7.91[]
60
2.36[]
40
1.57[]
1848 72.76[]
1106
43.54[]
185
7.28[]
327
12.87[]
327
12.87[]
168
6.61[]
*
40
1.57[]
*
40
1.57[]
160
6.30[]
160
6.30[]
570 22.44[]740 29.13[]570 22.44[]
100 3.94[] 200 7.87[]
1600 62.99[]
200 7.87[] 100 3.94[]
2200 86.61[]
*
30
1.18[]
*
30
1.18[]
890 35.04[]
294 ± 5
11.56 ± .19[]
216 ± 5
8.49 ± .19[]
497 ± 5 19.57 ± .19[]
442
± 5 17.40 ± .19[]
322
12.68[]
70±5 2.76 ±.19[]
*
610 24.02[]
*
900 35.43[]
*
610 24.02[]
*
No.8 HOLES Ø18
830 32.68[]
150± 5 5.89 ± .19[]
ø51 2.01[]
162 ± 5 6.38 ± .19[]
60
2.36[]
770
30.32[]
60
2.36[]
56
2.20[]
35
1.38[]
10
.39[]
CIRCUIT 2
CIRCUIT 1
17
16
15
17
16
S
S
S
S
NP (no pump)
P(pump)
ICE076
ICE090--116
13
Water Charge / Drain

Table of Contents

Related product manuals