EasyManua.ls Logo

Parker Hyperchill ICE116 - Circuit Diagram

Parker Hyperchill ICE116
Print Icon
To Next Page IconTo Next Page
To Next Page IconTo Next Page
To Previous Page IconTo Previous Page
To Previous Page IconTo Previous Page
Loading...
22
,
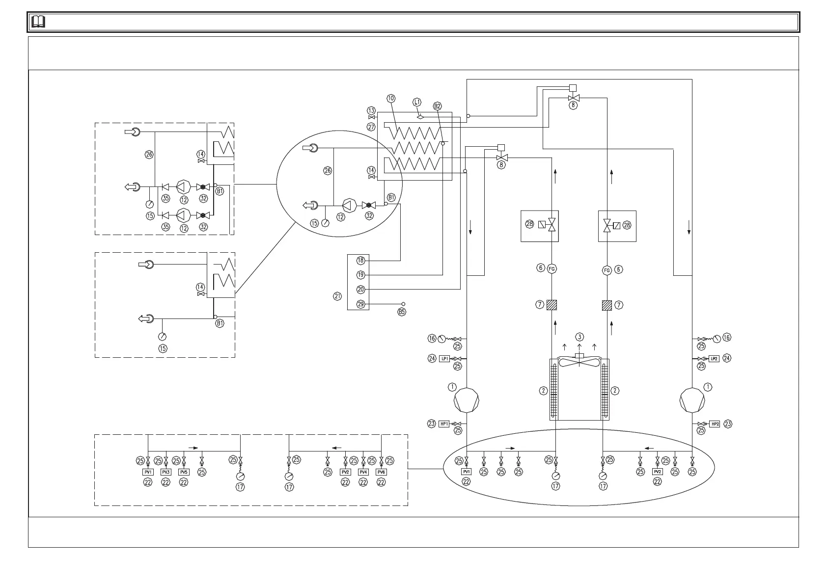
7.8 Circuit diagram ICE076-116 (A)
ICE076-116
A1
DP
NP
LAT
116 116

Table of Contents

Related product manuals