EasyManua.ls Logo

Parker Hyperchill ICE116 - Page 156

Parker Hyperchill ICE116
Print Icon
To Next Page IconTo Next Page
To Next Page IconTo Next Page
To Previous Page IconTo Previous Page
To Previous Page IconTo Previous Page
Loading...
24
,
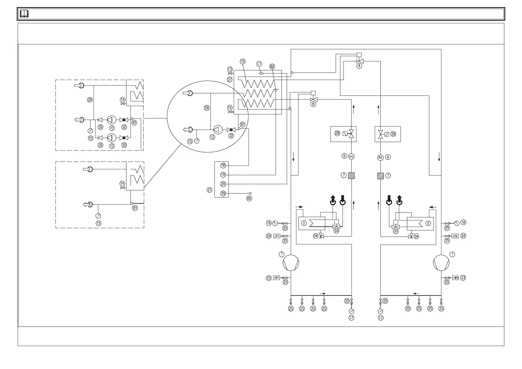
7.8 Circuit diagram ICE076-116 (W)
ICE076-116
DP
NP
A1
116 116

Table of Contents

Related product manuals