EasyManua.ls Logo

Parker PSE 180 - Page 284

Parker PSE 180
300 pages
Go to English
To Next Page IconTo Next Page
To Next Page IconTo Next Page
To Previous Page IconTo Previous Page
To Previous Page IconTo Previous Page
Loading...
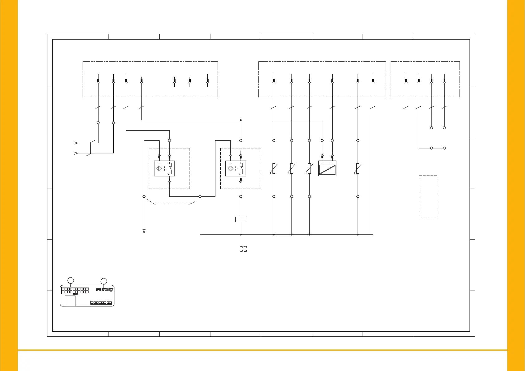
22
PSE 120-350
(Sheet 3 of 7)
F
1
E
D
2 3 4
C
B
A
1
2 3
4
5 6
7
8
F
E
D
5 6 7
C
B
8
A
SupSup DO5A02A0112Vm5Vm
Red
ANALOGIC OUTPUT SMP5500
XD1
Red-Gray
Orange
Orange
White
White
White
GNDAI5AI4AI3AI2AI1
Blue
ANALOGIC INPUT SMP5500
XD1
Blue
Blue
Blue
Blue
Black
B0
DEW POINT TEMPERATURE SENSOR
SONDA TEMPERATURA DEW POINT
B2
EVAPORATOR TEMPERATURE SENSOR
SONDA TEMPERATURA EVAPORATORE
B8
DISCHARGE TEMPERATURE SENSOR
SONDA TEMPERATURA MANDATA
Non Utilizzato
Not Used
Non Utilizzato
Not Used
BK
BNBU
SENSORE LIVELLO CONDENSA
CONDENSATE LEVEL SENSOR
CS3
Non Utilizzato
Not Used
A1
AOLAN
RS-485
SMP5500
XD1
XD2
40 41 42 GND
2/8E
30
2/8E
31
31 30
X1
31
X1
30
X4
GND
X4
GND
X4
GND
X4
GND
X4
40
X4
41
X4
42
X4
92
I
4.. 20mA
P
0.. 30bar
1
2
WHT
BN
TRASMETTITORE ALTA PRESSIONE
HIGH PRESSURE TRANSMITTER
P1
B5
SUCTION TEMPERATURE SENSOR
SONDA TEMPERATURA ASPIRAZIONE
X4
89
X4
93
X4
44
X4
GND
REGOLATORE DI VELOCITA
SPEED CONTROL
LETTURA DEW POINT 4..20mA
DEW POINT VALUE 4..20mA
AO5AO3ComAO4
ANALOGIC OUTPUT SMP5500
XD2
Gray
Black
Blue
Red
70
X7
76
X7
77
X7
70
44
93
92
89 75 76 77
(Option)
0.25mm20.25mm20.25mm2
.
.
.
.
1.5mm2
X7
70
X4
93
A2 A1
KCS3
X4
88
88
X4
48
48
BU
BNBK
SENSORE LIVELLO CONDENSA
CONDENSATE LEVEL SENSOR
CS3'
GND
5/2D
88
BRIDGE WITH GENERIC SENSOR
+ 5V CAPACITIVE SENSOR
GENERIC SENSOR
14
11
5/3C
12
5/3C

Table of Contents

Related product manuals