EasyManua.ls Logo

Payne PH1S - Selection Procedure (with example); Determine Cooling and Heating Load Requirements; Select System That Satisfies Load Requirements; Determine the Heating Capacity of Selected System

Payne PH1S
28 pages
Print Icon
To Next Page IconTo Next Page
To Next Page IconTo Next Page
To Previous Page IconTo Previous Page
To Previous Page IconTo Previous Page
Loading...
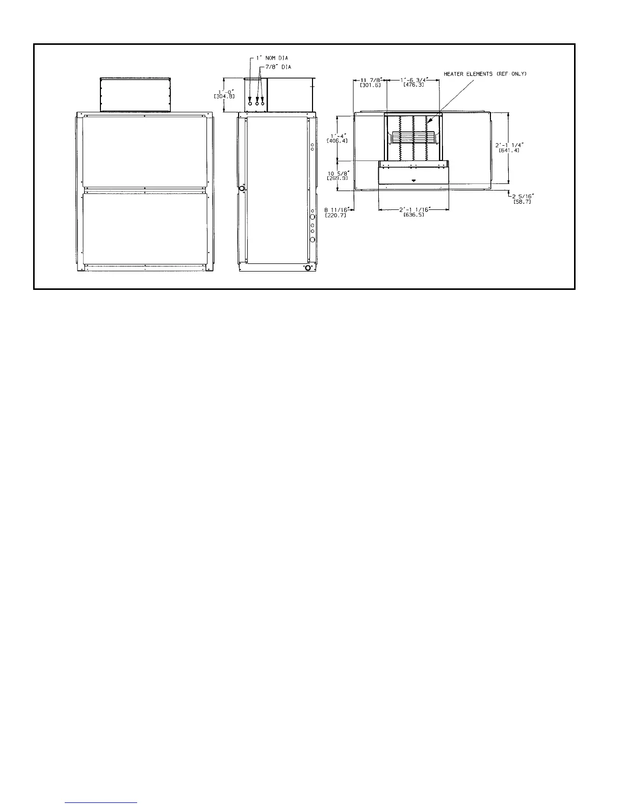
DIMENSIONS INDOOR UNIT (cont)
SELECTION PROCEDURE (with example)
I DETERMINE COOLING AND HEATING LOAD
REQUIREMENTS.
Total Cooling Load (TC) ................86,000 Btuh
Sensible Heat Capacity (SHC) ...........66,000 Btuh
Temperature Air Entering
Outdoor Unit (Edb) .........................95F
Temperature Air-Entering Indoor
Unit ..........................80Fedb/67 F ewb
Indoor-Air Quantity ......................3,000 cfm
External Static Pressure ................0.40 in. wg.
Heating Load at Winter Design .........100,000 Btuh
Temperature Air Entering Indoor Unit,
Heating ..................................70F
Winter Design, Outdoor .......................0°F
II SELECT SYSTEM THAT SATISFIES LOAD
REQUIREMENTS.
Select heat pump systems to satisfy cooling design load
requirements. Enter the Combination Ratings, Gross
Capacities Cooling table, page 11. At outdoor unit air
entering temperature of 95 F, indoor unit air entering at
3,000 cfm, and 80 edb/67 ewb, find that the system deliv-
ers a TC of 89,000 Btuh and SHC of 67,400 Btuh at design
conditions. These values satisfy the cooling requirements
of the example shown.
III DETERMINE THE HEATING CAPACITY OF SELECTED
SYSTEM.
Enter the Combination Ratings Net Capacities Heating
table on page 12. Under the F column, read down to the
70 F indoor-air section at 3,000 cfm and find an integrated
heating capacity of 30,400 Btuh. The heating requirement
is 100,000 Btuh, and the unit capacity is 30,400; therefore,
69,600 Btuh of supplemental electric heat is needed.
For this example, assume the electric heaters are supplied
with 230 v. Refer to the Electric Heater Data—Indoor Units
table, page 16. For this unit, find that the heater output for
a 240-v, 25 kW (part no. CAELHEAT010A00) heater,
derated to 230 v, is 78,300 Btuh. This satisfies the supple-
mental heat requirements for the example described.
IV DETERMINE FAN RPM AND BHP (brake horsepower).
At the Indoor Unit Fan Performance Data table, page 12,
enter the PF1B090 section at 3,000 cfm and move to
External Static Pressure (ESP) 0.40 column. Note that the
conditions require 645 rpm and .86 bhp.
PF1B090 With Electric Heater Accessory
10

Related product manuals