EasyManua.ls Logo

Payne PH1S - Page 18

Payne PH1S
28 pages
Print Icon
To Next Page IconTo Next Page
To Next Page IconTo Next Page
To Previous Page IconTo Previous Page
To Previous Page IconTo Previous Page
Loading...
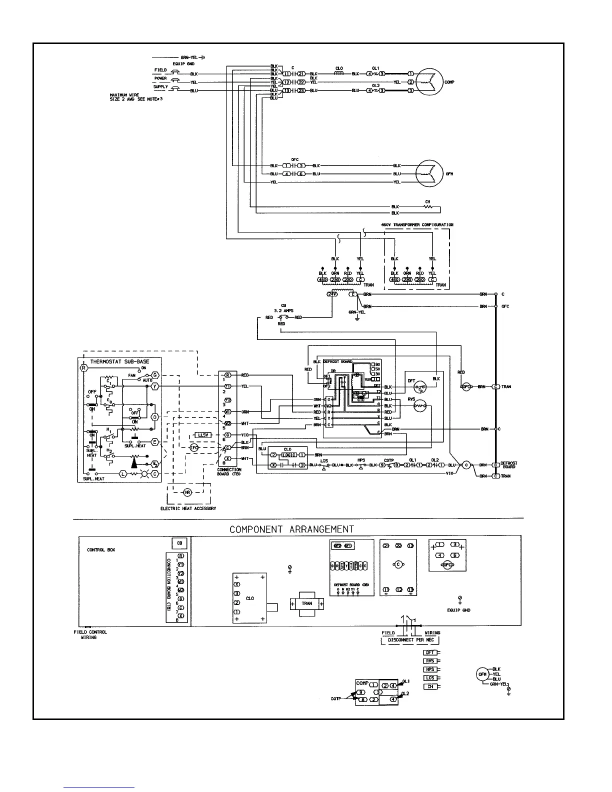
TYPICAL CONTROL WIRING SCHEMATIC (cont)
PH1S090 208/230-3-60, 460-3-60
18

Related product manuals