EasyManua.ls Logo

Philips BJ3.1E LA - Supply 42”: Part A

Philips BJ3.1E LA
208 pages
Print Icon
To Next Page IconTo Next Page
To Next Page IconTo Next Page
To Previous Page IconTo Previous Page
To Previous Page IconTo Previous Page
Loading...
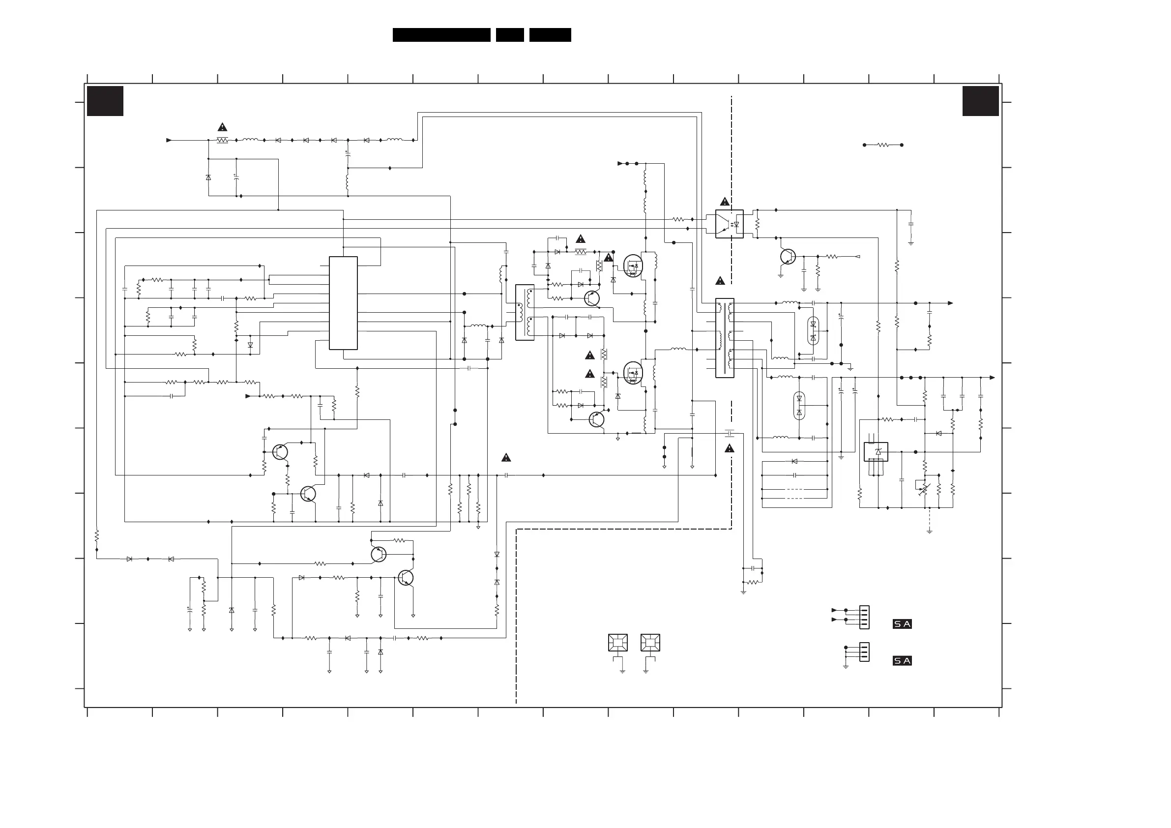
Circuit Diagrams and PWB Layouts
81BJ3.1E LA 7.
Supply 42”: Part A
NC
I141 H2
I142 G1
I143 G1
I144 A4
I145 E8
I146 B9
I080 B10
I081 F8
I082 H7
I083 H7
I084 F10
I085 E13
I149 C12
I150 D9
I151 I5
I294 C9
c001 F10
c002 F9
I109 D8
I110 D9
I111 C9
I112 E9
I113 E9
I114 D10
I116 C11
I117 D11
I119 D13
I120 D13
I121 E14
I122 F14
6009 G2
3065 E5
3006 D3
5002 C10
3004 D1
BIAS SUPPLY
3003 C1
3005 C3
3999 A13
3007 E3
3292 H11
I124 H11
I055 E9
I057 E9
I059 E9
I062 B11
I063 B11
I131 I6
I132 I5
GROUND GROUND
GROUND GROUND
I099 A5
I134 I4
I135 H3
I136 H4
I137 H5
I138 H5
I139 G5
I140 G6
D
E
F
G
H
I
1009 I9
2003 A4
6051 H4
3055 I6
(0V7)
3061 E4
I088 E14
I089 E13
I023 F3
I024 F4
I025 F3
I027 C3
I093 F14
I094 G13
I096 A3
I097 A3
I147 C9
I148 C7
6080 A3
5017 A3
5025 E11
5026 F11
5027 D11
5028 D11
5040 D10
5041 E9
2027 F3
2025 E14
2028 D12
2024 E13
3016 C8
2030 F13
2026 G4
2029 E12
2031 D13
3011 H2
3012 F4
3013 G5
5001 C7
1%
Adj.
PROTECTION
3064 F4
3070 H4
3071 H5
3075 G5
3089 H7
I133 I4
I098 A5
I028 G2
2007 E2
4V9
2004 C2
2008 G4
(5V)
COLD
2006 C3
2009 D2
13
4V9
COLD
2039 C11
12
2040 C1
(0V3)
3033 B11
3034 F14
3037 D13
3038 E14
3040 E14
17V3
HIGH SIDE
6008 D8
3058 E3
3057 C13
6001 D3
(0V)
6007 C8
3056 I4
6077 A4
6078 A5
6079 A4
F
G
H
I
3008 E2
3009 E2
3010 H2
MRS25 1%
I073 E11
I074 E11
I075 E12
I076 F11
I077 F11
I078 A4
F016 D13
I029 G3
I021 E2
I012 D5
I010 D3
F006 E6
3014 C8
3015 C8
456789101112
2005 D2
(7V6)
F005 D9
6022 H3
F002 C9
3032 C12
14
1
CURRENT
2000 F10
2045 F12
2046 I4
2047 I5
2048 I5
2050 E4
2060 C7
2061 C8
2062 D8
2063 C7
2064 D7
3041 F14
2065 D8
2071 E8
2072 C8
2077 H5
2290 H11
3000 A3
3001 F6
3002 C2
11
A4
E
F010 E6
F014 F13
I018 E3
F017 D12
I022 F3
I033 F5
F012 E13
I020 F4
0V6
12
HOT
C
3
9
2V
10
SUPPLY PART A
2
HOT
F004 D6
6021 E11
F008 D6
F009 D7
F007 F3
F003 C6
6027 C8
F018 B9
Vs
6023 F14
6020 H1
F021 A12
678
2044 D12
B
1309 I12
1304 H12
A
3018 E8
3019 E8
3020 E8
3021 G6
3022 D13
3025 F13
3026 G13
3027 G3
3028 B10
3029 C8
5010 A5
5013 E9
2002 B3
CONTROL
13 14
A
B
C
D
1010 I9
I072 D11
DRIVE
(0V)
I092 F14
3048 D2
2010 H2
2011 E10
2012 E9
2013 D9
FLM 1/6W
(0V5)
9004 F11
6004 D7
7001 C4
7006 D9
6002 D8
6005 D6
6006 I5
7002 B10
7004 H6
7008 E8
7005 C9
2014 F7
2015 F5
2016 E6
2017 C10
2019 H3
2020 D12
2021 C2
2022 E12
2023 B13
345
3023 E13
2035 F11
Voltage
2032 E14
3067 G1
3068 H4
3017 D8
6010 G5
6011 F5
6012 E9
6013 C9
I100 A6
DRIVE
F032 I12
I070 D12
(1V2)
I052 D8
I064 B10
I007 C3
5015 C7
5V1
3043 D2
3052 D13
1%
3045 G6
5016 D7
(0V7)
3047 H3
3050 E3
3046 F6
3053 E4
I042 C8
I045 C7
I046 C8
I051 E8
F022 A13
CONTROL
7007 D8
9002 G13
7018 F4
7009 G5
(0V3)
I009 D2
F030 H12
F031 H12
I008 C3
7017 F4
13V4
I036 F6
F023 F9
F024 E13
6003 C8
6081 B2
3066 F3
3030 G12
3031 C12
2034 C2
3024 E13
LOW SIDE
399V
2038 E12
2033 E14
7V3
5005 C9
6015 H7
5008 B9
0V01
6028 E8
7V3
4V9
5004 D9
F300 F9
I006 B3
F299 A9
I101 A5
I103 C1
I104 D2
I105 E4
I107 C7
I108 D7
I037 C8
I038 C8
I039 D8
I034 F7
17V
F029 C10
7030 C11
RES
SOFTSTART
7010 F13
F025 E13
F027 E12
F028 D12
9010 G11
6014 F11
6044 D12
5007 B9
5009 B4
6017 I5
VS-CONTROLLER
6016 G7
I028
7030
BC847BW
2000V
2014
2n2
3023
15K
I078
3056
220R
5005
80R
15K
3012
I136
I021
100u
2010
GNDA
c001
50V
2015
10n
3065
6K8
I137
HOT_GNDA
GNDA
I034
2n2
2062
F030
5M6
3058
GNDA
I094
9004
50R
5041
2060
2n2
I092
I052
I070
6008
BAS316
I093
5025
80R
3000
4R7
I037
10K
3089
BZX384-C22
6081
2K7
3048
100p
2021
BC847BW
7004
16V
2030
100n
6016
BAS316
I151
GND3
I149
100R
6028
BAS316
I113
3017
GNDA
GNDA
1n0
2071
80R
5028
80R
5008
I135
25V_HOT_A
F017
I029
I085
6001
F007
BAS316
HOT_GNDA
470n
2008
16V
BAS316
6051
BAS316
6023
2019
10n
F027
6012
SML4744
9002
I133
400V_HOT_A
HOT_GNDA
1n0
2035
50V
I088
BYG22D
6080
1010
HEATSINK
I139
470p
2000
I140
10n
2039
80R
5013
2290
10n
50V
3292
560R
7007
BC857BW
220R
+24Va
3055
470n
2007
16V
3014
100R
2024
220n
16V
I114
I142
I124
5040
80R
PGND
11
SOST
15
VCC
VREF
5
BZX384-C4V7
6022
8
Ip
14
OA
OB
12
16
OS
1
OSCC
OSCCC
3
2
OSCR
13
EAO
6
EN|UA
9
FI
10
GND
4
In
7
I108
7001
MC34067P
I147
3024
18K
I119
6013
SML4744
I100
I033
2022
1m8 35V
BC847BW
7018
F024
F299
2033
1u0
630V
100p
2005
3031
I143
10K
I148
HOT_GNDA
I023
I150
I080
I009
5007
80R
3047
47R
2K2
3019
BC857BW
7008
47K
3032
2047
10n
GNDA
HOT_GNDA
HOT_GNDA
I105
6079
BYG22D
I109
400V_HOT_A
3010
470R
GNDA
HOT_GNDA
4
5
R
8
2009
100p
A
2
3
6
7
K
1
7010
TL431ACD
STP15NK50ZFP
7006
2032
4n7
1n5
2012
2000V
F031
c002
3002
10K
I010
BZX384-C22
6015
3027
100K
I012
6004 BAS316
I018
HOT_GNDA
1
3
2
3026
470R
I144
STTH2003CFP
6021
1m0
5010
I103
I132
I072
I055
BYV27-200
6078
3046
22R
HOT_GNDA
I038
F006
BAS316
6020
BAS316
6027
I131
35V
I081
2038
1m8
2000V
2013
1n5
F021
3001
100R
470R
3011
6003
BAS316
BAS316
6005
BAS316
6011
3057
220R
3037
15K
1304
B4P-VH
1
2
3
4
I104
I121
33K
3038
7005
STP15NK50ZFP
3999
1K0
I120
BAS316
6017
7017
BC857BW
F025
F022
F300
F008
I063
16V100n
F012
HOT_GNDA
2016
3016
2K2
+12V
I064
10K
3013
3052
33K
50V
2028
1n0
F028
7
9
6014
BYW29FP-200
10
2
3
4
6
I141
5001
S13932-04
200p
2004
630V
2K2
22R
3045
I057
3020
I039
5027
80R
F004
680K
F005
3053
2063
470p
100K
3003
I083
F009
I082
3061
68K
100R
3067
3075
1K0
80R
I112
5009
BYG22D
6077
330R
3008
HOT_GNDA
2020
2m2
25V
BAS316
6007
I073
BAS316
6006
3068
2K2
F023
2072
1n0
3029
2K2
F029
1K0
3033
I117
2065
2n2
F010
I138
5016
80R
I059
I145
I074
3066
10K
2006
1n025V
1309
B3P-VH
1
2
3
50V
2026
2n2
GNDA
I101
3025
1K8
3K3
3009
I036
5026
80R
22R
3021
I075
F014
F002
50V
2027
15n
3022
680R
2011
1600V
10n
GNDA
HEATSINK
1009
I022
3034
I084
I077
F003
I027
2031
10n
2023
2061
2n2
470n
3007
10K
3030
18K
I045
I006
I076
5017
50R
9010
HOT_GNDA
3004
27K
I107
47R
3018
100p
1n0
2050
2034
+12V
2046
47n
I007
HOT_GNDA
BC857BW
7009
3015
47R
1n0
I020
50V
2044
2077
2n2
BAS316
6002
I122
50V
I098
F032
1n0
2045
9
I024
2048
1n0
12
13
14
15
16
2
3
5
6
7
8
BS51312-01
5002
1
10
11
3005
33K
I046
3040
8K2
GNDAGNDA
6010
BAS316
2002
470u
3050
820K
I099
I134
I025
10n
2017
1600V
50V
2025
1u0
I096
6009
PDZ18-B
32
I042
7002
TCET1102(G)
14
3006
10K
I116
560p
2040
F018
I062
2003
1m0
I110
5004
50R
3043
1R0
1K0
I294
3070
I008
3064
10K
50V
2029
1n0
I089
33K
3041
I051
3
2
80R
5015
6044
STPS20L45CT
1
I097
I146
+24Va
F016
I111
2064
470p
3071
10K
3028
1K0
DC_PROT
TO
AUDIO-STANDBY
TO
AUDIO-STANDBY
G_15950_002.eps
040406
3104 313 6065.3
A2 A2

Table of Contents

Related product manuals