EasyManua.ls Logo

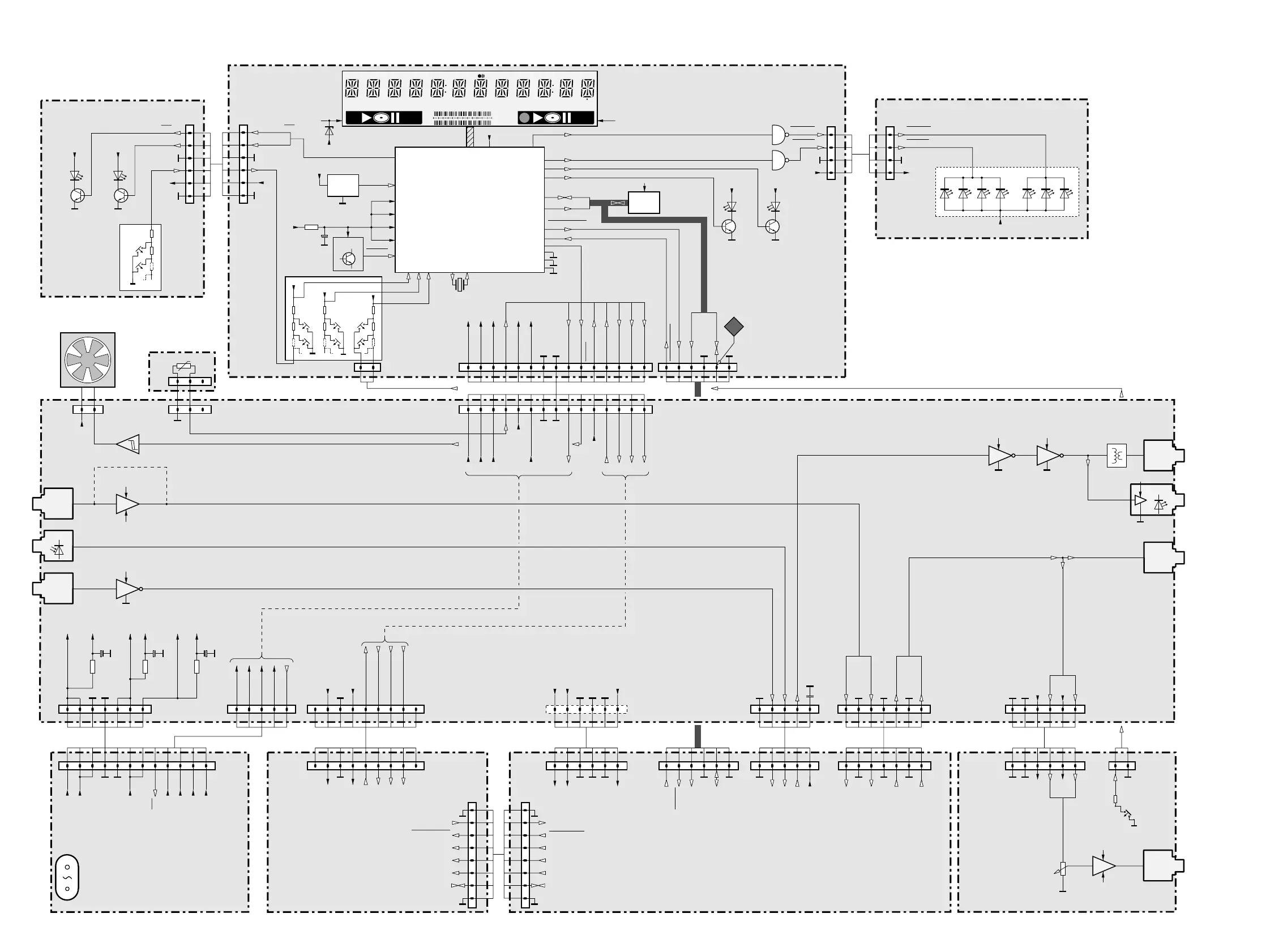
Philips CDR796 - Block Diagram; Key Board; Display Board; Interface Board

Philips CDR796
52 pages
Print Icon
To Next Page IconTo Next Page
To Next Page IconTo Next Page
To Previous Page IconTo Previous Page
To Previous Page IconTo Previous Page
Loading...
6-1 6-1
1307
1310
17
1304
51
1303
71
1309
15
7324F
74LVU04D
+IC
1314B
DIG IN
7312
OPT. IN
1315B
+F
+12V
-F
-30V
+5V
+5V
+5V EVER
+F
-F
-30V
+5V EVER
+12V
+5V +ICV_AMP1+ -12V
0054
16
V_AMP1-
HP_L
HP_R
ANA IN_R
ANA OUT_L
EBU IN COAX
ANA OUT_R
ANA IN_L
-12V
+12V
LM833D
V_AMP1+
V_AMP1-
1315A
1314A
DIGITAL
OUT
7324E
74LVU04D
+IC
7324A-D
5300
7320
74LVU04D
+IC
+5V
1306
13
1391
13
1301
12
NTC
10k
FAN
FAN CONTROL
provisional
INTERFACE BOARD
ANALOG
OUT
LINE IN
15 1
1308
91
POWER_ON
POWER_ON
FAN
UL SW Info
NTC
EBU IN OPT.
EBU OUT
+5V
NC
NC
+12V
+5V
+5V
+12V
LEVEL SHIFT
BUFFER
UL_SW Info
UL_DRAWER OUT
UL_DRAWER IN
UL_SPEEDSELECT
UL_DRAWER OUT
UL_DRAWER IN
UL_SPEEDSELECT
7313
OPT.OUT
CON1
CN101
12 1
8
1
(Supply) ON/OFF
+5V EVER
-F1
+F1
-30V
+5V
+12V
EBU IN CD10
+5V
AUDIO SIGNAL INTERFACE
DIGITAL IN / OUTCONTROL INTERFACE
SUPPLY INTERFACE
CD INTERFACE
RESET CD10
CD10 SDA
CD10 SCL
CD10 RAB
CD10 SILD
-12V
CD - MODULE
for details see
separate block diagram
SWITCHED MODE
POWER SUPPLY
for details see
separate block diagram
CDR MODULE
for details see
separate block diagram
HEADPHONE-
MICROPHONE
BOARD
14021007 1203
1205
176115
1501
+12V
-12V
HP_L
HP_R
7500
3502
+12V
-12V
NJM4556AM
HEAD-
PHONE
I2C DATA
I2C CLK
RESET
EBU OUT
EBU EXT. IN
EBU IN OPT.
ANALOG IN (REC) L
ANALOG IN (REC) R
ANALOG OUT (PB) R
ANALOG OUT (PB) L
8
1
SPDIF (EBU)
CD10_RESET
SDA
SICL
RAB
SILD
1802
IRQ
1805
91
SW Info
+5V
RIGHT
SDA
+10V
1214
16
+5V
+5V
+12V
TRAY OUT
TRAY IN
SPEEDSELECT
1503
1505
OPEN/CLOSE
CDR
12
KEY2·
16
1316
61
1500
CDR79x, 080502
DISPLAY BOARD
LIGHTGUIDE BOARD
KEY BOARD
7414
7409
7406
7416
6429
6431
MICROPROCESSOR
M30218MAFP
7403
7450 7451
6450 6451
7405
7402
5VST
+5VST
+5V
RC5
KEY 1
KEY 0
KEY 2
2
KEY MATRIX
RESET
EEPROM
RESET
1416
1414
1
4
4
1
1460
-30V
+F-F
-30V
3V3
1
3
30
40 - 88
16
89
63
VCC1
VCC2
99 VREF
100 AVCC
97AVSS
65VSS1
14VSS2
VEE
1400
10MHz
13929190 15
12
+5VST
I2C DATA CDR
I2C CLK CDR
+P
+P
+5V
23
1
1, 2 54, 55
3
4
2
21
19
20
5
8
6
LED Drawer CDR
LED Drawer REC
LED Copy
LED REC
LED red
LED blueLED blue
REC COPY
LED red
+5V
+5V
+5V
blue
Rec/Pb indication
red
+5V
66
1
KEY0·
KEY2·
KEYKEY
KEY
KEY
KEY0·
LED ON/OFF
LED SpeedLED Speed
IR EYE
0060
1
LED ON/OFF
POWER_ON
NTC
f
0
1418
+F -F
-30V +5V +5VST
FAN
PDWN
UL_SW Info
UL_DRAWER OUT
UL_DRAWER IN
UL_SPEEDSELECT
IRQ CDR
IRQ CDR
RESET CDR
I2C CLK CDR
RESET CDR
I2C DATA CDR
1417
+5VST
+P
+P
STANDBY SPEED
KEY MATRIX
15 11 6
I2C BUS
+5V
1415
12
+5V
STEP ALBUM MP3PLAYLIST TOTAL REM REC TRACKTRACKTIME TIME
REP TRACK DISC ALL PROG SHUFF
CDTEXT
EDIT
CD RECORDER
L
R
CD PLAYER
8X4X
2X1X
LINEDIG
OPT MIC
REC
CD RW
FINALIZE
I2C BUS
BLOCK DIAGRAM

Related product manuals