EasyManua.ls Logo

Philips CDR796 - Page 41

Philips CDR796
52 pages
Print Icon
To Next Page IconTo Next Page
To Next Page IconTo Next Page
To Previous Page IconTo Previous Page
To Previous Page IconTo Previous Page
Loading...
8-38-3
5
6
3
4
2
8
7
RAB
1802
RESET
SDA
SPDIF
GND
1
GND
Communication CD10
with CDR Module-µP
Digital Audio
SICL
SILD
SPEEDSEL
Low = 4x speed
Low = 2x speed
High = 1x speed
High amplification
(4x speed)
Low amplification
(1x and 2x speed)
CDR Version
VAM2201, VAM2202, VAM2204
7802
7803
V5EQSEL
62
12
1805
6
7
8
9
2
3
4
5
1
NC
NC
38
RESET
SPEEDSEL
SPEEDSEL
Control
CDR Version
to CDR Module
1205
to Interface Board
1308
SDA
VCC
DOBM
D1-D5
D2-D4
1806
LD ONLD ON
LD
MON
CD/RW
HF IN
V1
D1
D2
D3
D4
R1,R2
MOT1
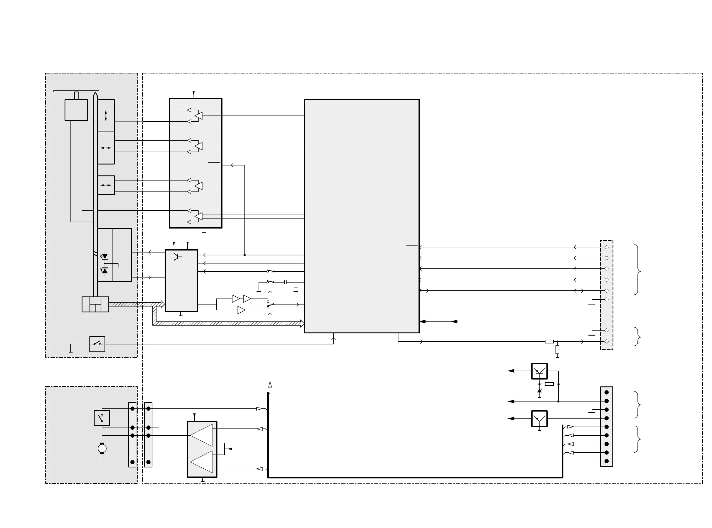
SIGNAL PROCESSOR
CD10
SAA7324 (SAA7325)
TRAY
MOTOR
SL
RA
FO
DIODES
PHOTO
D3D2
D5D1
D4
INNER SWITCH
SW INFO
TRAY OUT
TRAY IN
LASER &
MONITOR
DIODE
TURNTABLE
MOTOR
DISC
CD MECHANISM
TRAY
MAINBOARD
7801
+3,3V
7802
LASER CONTROL
&
HF AMPLIFIER
TZA1024
(TZA1025)
42
40
39
5,17,21,52,57
64
1
13
+5V
+8V
2
+8V
16,17,20
4
5
7
V4
61
2
ISLICE
3
63 51
8
7
6
2
5
1
3
11
6,14
6...12
25...31
4
2
1
4
3
2
1
4
3
+3,3V
SCL
SILD
Blockdiagram Universal Loader 2002 02 12
+5V
+3,3V
7816
+5V
+A
+8V
7820
6802
BLOCK DIAGRAM Universal Loader
FOCUS
MOTOR
RADIAL
MOTOR
SLIDE
MOTOR
MOTOR
TURNTABLE
55
54
56
59
34
32
33
5
4
13
14
23
24
3
15
19
7819
M63000
DISC+
DISC-
SLI-
SLI+
TRA-
TRA+
FOC-
FOC+
MOT2
6021
1830
Standby
36
TRAY
SWITCH
REF (3,2V)
+5V
TRAY OUT
SW INFO
TRAY IN
TRAY OUT
SW INFO
TRAY IN
+10V
GND
Supply
7815
TCA0372
10
41
RAB

Related product manuals