EasyManua.ls Logo

Philips LC4.9E - Page 100

Philips LC4.9E
162 pages
Print Icon
To Next Page IconTo Next Page
To Next Page IconTo Next Page
To Previous Page IconTo Previous Page
To Previous Page IconTo Previous Page
Loading...
100LC4.9E AB 7.
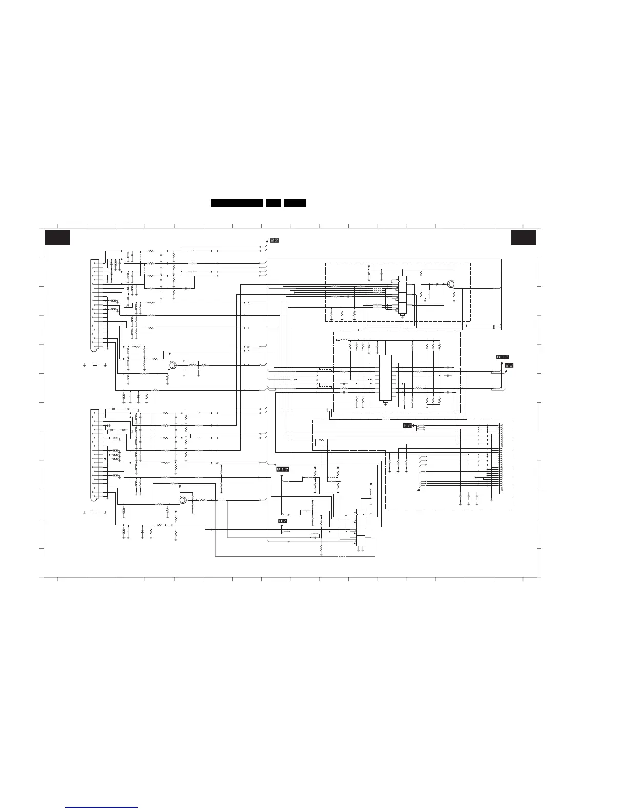
Circuit Diagrams and PWB Layouts
SSB: SCART Analogue I/O
S1A
D2
S1B
IN1
IN2
S2B
D1
S2A
NC
S4B
D4
S4A
IN4
S3B
D3
S3A
IN3
VDD
GND VSS
4X1
G4
4X2
1
2
VDD
VEE VSS
4X1
G4
4X2
1
2
VDD
VEE VSS
SCART ANALOGUE IO
Audio-R_out
Audio-R_in
Audio-L_out
RGB-B_in
Function_Sw
RGB-G_in
Audio-L_in
RGB-R_in
RGB-BL_in
Video_in
Terr_CVBS_out
Audio-R_out
Audio-R_in
Audio-L_out
Function_Sw
Audio-L_in
RGB-R/YC-C_in
Video/YC-Y_in
CVBS_out
SCART 1
SCART 2
*
*
RES
RES
RGB-B_in
RGB-G_in
RES
RES
RES
RES
DMMI CONNECTOR
RESERVED FOR DMMI
TO HERCULES
B2
B2
B2
B2
B2
B2
B2
B2
B2
B2
B13
B2
B2
B2
B2
B2
B2
B2
B2
RES
RES
RES
RES
FROM SIDE CONNECTOR
FROM SCALER
RES
EMC
RES
EMC
NC
NC
NC
B17
B2
B2
TO HERCULES
RESERVED FOR DMMI
RESERVED FOR DMMI
TO MUX-SYNC INTF
RES
RES
RES
RES
RES
RES
RES
RES
B2
RES
0V
5V2
3V
3V7
5V2
1V8
2V5
123 45678 910111213 14 15 16
123 45678 910111213 14 15 16
A
B
C
D
E
F
G
H
I
J
K
L
A
B
C
D
E
F
G
H
I
J
K
L
1G01-1 B2
1G01-2 E2
1G02-1 G2
1G02-2 J2
1G03 G16
2G01 A3
2G02 B3
2G03 B3
2G04 B3
2G05 A4
2G06 B4
2G07 A5
2G08 B5
2G09 B4
2G10 C4
2G11 B5
2G12 C5
2G16 E5
2G17 E5
2G18 G5
2G19 G5
2G20 G5
2G21 G5
2G22 H5
2G23 H5
2G24 H5
2G25 H5
2G26 I5
2G28 K4
2G29 B11
2G30 B12
2G31 C11
2G32 C11
2G33 C13
2G34 E11
2G35 E12
2G36 F10
2G37 F10
2G38 F12
2G39 E14
2G40 F14
2G41 F14
2G43 J14
2G45 J15
2G46 J15
2G47 J11
2G48 G4
2G49 G4
2G50 H4
2G51 H4
2G52 F3
2G53 K3
2G55 I9
2G56 J9
2G63 B11
2G64 C10
2G65 K9
2G66 I10
3G00 A3
3G01 B4
3G02 A5
3G03 B5
3G04 B4
3G05 C4
3G06 B5
3G07 C5
3G08 J5
3G09 I4
3G12 C3
3G13 D3
3G14 D3
3G15 C3
3G16 C3
3G17 D3
3G26 E3
3G27 E4
3G28 E4
3G29 E4
3G30 E3
3G31 F4
3G32 F4
3G33 F4
3G34 E5
3G37 G4
3G38 G4
3G39 G5
3G40 G5
3G41 H4
3G42 H4
3G43 H5
3G44 H5
3G45 I3
3G46 I4
3G47 I6
3G48 I6
3G51 I4
3G52 I5
3G53 J4
3G54 J4
3G55 J5
3G56 J5
3G57 K4
3G58 K4
3G59 J5
3G60 K5
3G63 B10
3G64 C10
3G65 C11
3G66 C10
3G67 C10
3G68 C11
3G69 B13
3G70 C13
3G71 C14
3G72 E11
3G73 E11
3G74 E11
3G75 E10
3G76 F10
3G77 F11
3G78 F11
3G79 E13
3G80 E13
3G81 E13
3G82 E14
3G83 E13
3G84 F13
3G85 F13
3G86 F13
3G87 F14
3G88 H12
3G89 F13
3G90 H12
3G91 H13
3G92 K10
3G93 K10
3G94 I10
3G95 I10
3G96 I9
3G99 I9
3S00 J9
3S01 H10
3S03 J9
4G00 B3
4G01 B3
4G05 H4
4G06 H4
4G09 C11
4G10 C11
4G11 D12
4G12 D12
4G13 D12
4G14 E10
4G15 F10
4G16 G12
4G17 G12
4G18 J6
4G19 H10
4G20 K9
4G21 I10
4G22 L10
4G26 E5
5G00 E5
5G01 D10
5G02 J11
6G00 F3
6G01 K3
6G02 B13
6G03 C3
6G04 C3
6G05 B2
6G06 B2
6G07 G2
6G08 G3
6G09 G2
6G10 G3
7G03 E4
7G05 J4
7G07 B12
7G08 B14
7G09 E12
7G10 J11
FG00 A3
FG01 B3
FG02 B2
FG03 B3
FG04 B3
FG05 C3
FG06 C3
FG07 D3
FG08 E3
FG09 E3
FG10 D2
FG11 E3
FG12 F3
FG13 F7
FG14 G3
FG15 G3
FG16 G2
FG17 H3
FG18 H3
FG19 H2
FG20 I3
FG21 I3
FG22 J3
FG23 K3
FG24 C2
FG25 C2
FG26 H2
FG27 H2
FG28 H2
FG30 I2
FG32 G15
FG33 G15
FG34 G15
FG35 G15
FG36 H15
FG37 H15
FG38 H15
FG39 H15
FG40 H16
FG41 H15
FG42 H15
FG43 H15
FG44 H15
FG45 I15
FG47 I15
FG48 I15
FG49 I15
FG50 I15
FG51 I15
FG53 I15
FG54 I15
FG56 I15
IG00 A4
IG01 B4
IG02 A6
IG03 B6
IG04 B4
IG05 C4
IG06 C7
IG07 C7
IG08 D7
IG09 E7
IG10 E7
IG11 E4
IG12 E5
IG13 E7
IG14 G5
IG15 G5
IG16 G6
IG17 G6
IG18 H5
IG19 H5
IG20 H6
IG21 H6
IG23 I6
IG24 J4
IG25 J5
IG26 J6
IG27 K6
IG28 D11
IG29 F11
IG30 F13
IG40 I5
IG42 I6
IG43 K4
IG46 J11
IG47 K10
IG49 B8
IG50 B12
IG52 C12
IG53 C12
IG54 C12
IG55 C12
IG56 D11
IG57 B13
IG58 B14
IG59 D15
IG60 E11
IG61 F11
IG62 F11
IG63 F11
IG64 E12
IG67 F12
IG69 F12
IG73 I9
IG75 I9
IG76 J9
IG78 J9
IG79 K10
IG8
0 I10
S011 B3
S012 B3
S013 B3
S014 C3
S015 C2
S016 C2
S017 C3
S018 D3
S019 D3
S020 E3
S021 E3
S022 F3
S023 F3
S024 G3
S025 H3
S026 H3
S027 H3
S028 H2
S029 H2
S030 H2
S031 H2
S032 I2
S033 I3
S034 I3
S035 J3
S036 K3
B2
B2
B2
B2
RES
RE
S
TO HERCULES
B2
B2
BZX384-C3V9BZX384-C3V9
6G106G09
BZX384-C3V9
6G08
BZX384-C3V9
6G07
BZX384-C3V9
6G04
6G03
BZX384-C3V9
BZX384-C3V9
6G06
BZX384-C3V9
6G05
3G09
4G22
4G21
IG80
4G20
+5VSW
47K
3G95
47K
3G94
2G66
4u7
4G19
+5VSW
IG79
3G93
47K
47K
3G92
4u7
2G65
1G02-2
MT
HR-AR0761S-2
22
23
1G01-2
MT
HR-AR0761S-2
22
23
150R
3S01
8
9
3334
4G18
28
29
3
30
31
32
4
5
6
7
18
19
2
20
21
22
23
24
25
26
27
1
10
11
12
13
14
15
16
17
AF732L-N2G1A
1G03
2u2
2G64
2u22G63
IG76
+5VSW
IG78
3S03
47K
3S00
47K
2G56
4u7
IG75
IG73
+5VSW
47K
3G99
47K
3G96
4u7
2G55
3G91
75R75R
3G90
2G53
2G52
IG67
IG69
IG64
IG62
IG63
IG61
IG59
IG60
IG57
IG56
IG58
IG53
IG55
IG54
IG52
IG49
IG50
FG56
FG53
FG54
FG51
FG49
FG50
FG47
FG48
FG45
FG43
FG44
FG42
FG40
FG41
FG39
FG37
FG38
FG36
FG34
FG35
FG33
FG32
FG28
FG30
FG26
FG27
IG46
IG43
IG47
IG42
FG25
IG40
FG24
S029
2G47
100n
+5VSW
14
15
4
5G02
16
7
8
13
1
3
12
2
5
MDX
7G10
6
11
10
9
+5VSW
CD74HC4053M96
47K
3G47
47K
4u7
2G26
3G48
+5VSW
3G60
47K
3G59
47K
2G28
4u7
2
20
21
3
4
5
6
7
8
9
10
11
12
13
14
15
16
17
18
19
1G02-1
HR-AR0761S-2
1
2
20
21
3
4
5
6
7
8
9
10
11
12
13
14
15
16
17
18
19
1G01-1
HR-AR0761S-2
1
3G66 3G67
15K
3G63 10K
3G88
75R
10K3G64
3G68
15K
4G17
4G12
4G13
4G11
4G10
4G09
3G71
560R
47K
3G69
3G70
BAS316
6G02
47K
BC847B
7G08
2G33
220n
100n
2G302G29
16V
+5VSW
10u
10K3G65+5VSW
2G32
100n
100n 3
12
2
5
14
15
4
2G31
6
11
10
9
16
7
8
13
1
CD74HC4053M96
7G07
MDX
IG29
IG28
IG30
3G72
10K
3G78
47K
47K
3G74
47K
3G87
3G82
47K
3G86
47K
47K
3G81
47K
3G77
3G73
47K
3G85
47K
47K
3G80
47K
3G89
47K
3G79
1u02G36
2G35
100n
1u0
2G39
2G38
1u0
2G374u7 2G41 4u7
2G40 4u7
100R
3G76
100R
3G75
100R
3G83
100R
3G84
10u
16V
5G01
2G34
+5VSW
4G15
4G16
7
12
14
19
17
16
5
4G14
6
1
10
11
20
15
2
4
9
ADG734BRU
SWITCH
SPDT
7G09
3
8
13
18
Φ
S032
S030
S028
2G45
1n0
2G43
1n0
+3V3STBY
2G46
1n0
IG23
IG21
IG20
100R
3G46
75R
3G45
FG20
S033
FG06
2G16
5G00
4G26
3G34
1K0
2G17
IG16
IG03
IG17
IG13
IG02
2G51
2G03
2G04
2G02
2G01
2G50
2G48
2G49
FG19
IG26
FG16
+5VSW
+5VSW
IG24
IG25
FG02
FG10
27K3G26
3G56
1K0
7G05
3G54
BC847BW
3G08
1K0
4G05
4G06
6G01
6G00
10u
16V
2G07 10u
2G11
16V
4G01
4G00
16V
16V
2G20 10u
2G24 10u
2u22G12
2G21
2u22G25
2u2
2u2
2G08
IG18
IG15
IG19
2G23
180p
3G44
15K
S027
3G42 10K
150R3G41
3G38
10K
S026
S025
330p
2G22
220K
3G43
2G19
180p
150R
3G40
15K
3G37
330p
2G18
220K
S024
3G39
3G17
330R
3G29
100R
100R3G16
75R
3G28
91R
3G14
91R
3G13
180p
2G10
15K
3G07
3G06
220K
2G09
330p
2G06
180p 15K
3G03
2G05
330p
3G05 10K
150R
3G01
3G04
10K
IG14
IG27
IG10
IG11
IG08
IG09
IG07
IG06
IG04
IG05
IG01
IG00
S031
S016
S015
FG14
FG22
FG15
FG17
FG21
FG18
FG11
FG23
FG12
FG01
FG00
FG03
FG05
FG04
FG08
FG07
FG09
IG12
3G5
8
FG13
100R
75R
3G57
S036
3G55
68R
S035
3G53
6K8
3G52
27K
3G51
S034
100R3G33
75R
3G31
S023
BC847BW
7G03
3G32
1K0
3G30
S022
S021
68R
S019 S018
6K8
3G27
91R
3G12
S020
3G15 100R
S017
3G00
S014
150R
S013
S012
S011
3G02
220K
FRONT_Y_CVBS_IN
FRONT_C_IN
SC2|AV2_SIDE_SW
AV2_DMMI_SW
SC2_AV3_C_IN
SC2_Y_IN
SC2_Y_IN
SC2_C_IN
SC2_L_IN_1
SC2_AV3_Y_IN
DMMI_CVBS_IN
SC2_Y_IN_1
AV2_DMMI_SW
SC2_R_IN_1
DMMI_RGB_SW
DMMI_RGB_SW
SC1_FBL_IN_1
SC1_CVI_DMMI_G_Y_IN
SC1_CVI_DMMI_B_Pb_IN
SC1_CVI_DMMI_R_Pr_IN
SW_I2C_SCL
POWER-DOWN_BOLT-ON
DMMI_R_IN
DMMI_R_IN
DMMI_L_IN
DMMI_L_IN
DMMI_B_Pb_IN
DMMI_G_Y_IN
DMMI_FBL_IN
DMMI_FBL_IN
DMMI_R_Pr_IN
DMMI_R_Pr_IN
SC2_L_MON_OUT
SC2_R_MON_OUT
IR
SC_STANDBY
SC2_R_IN
SC2_L_IN
SW_I2C_SDA
ITV_IR_SW_RESET
SC1_L_RF_OUT
SC1_CVB
S_RF_OUT
HP_DET_R_DC
SC1_L
SC1_R
SC2_L
SC2_R
SC1_R_RF_OUT
SC2_R_MON_OUT
SC1_COMP_AV1_R_IN
SC1_CVBS_IN
SC1_FBL_IN
CVI_Pr_IN
CVI_Pr_IN
CVI_Y_IN
CVI_Y_IN
SC2_CVBS_MON_OUT
SC2_CVBS_MON_OUT
SC2_CVBS_MON_OUT
STATUS_1
CVI_Pb_IN
CVI_Pb_IN
STATUS_2
SC1_COMP_AV1_L_IN
SC2_L_MON_OUT
B15
B15
3139 123 6141.1
G_15351_015.eps
080906

Table of Contents

Related product manuals