EasyManua.ls Logo

Philips LC4.9E - 7.28 SSB: DC-DC Converter

Philips LC4.9E
162 pages
Print Icon
To Next Page IconTo Next Page
To Next Page IconTo Next Page
To Previous Page IconTo Previous Page
To Previous Page IconTo Previous Page
Loading...
58LC4.9E AB 7.
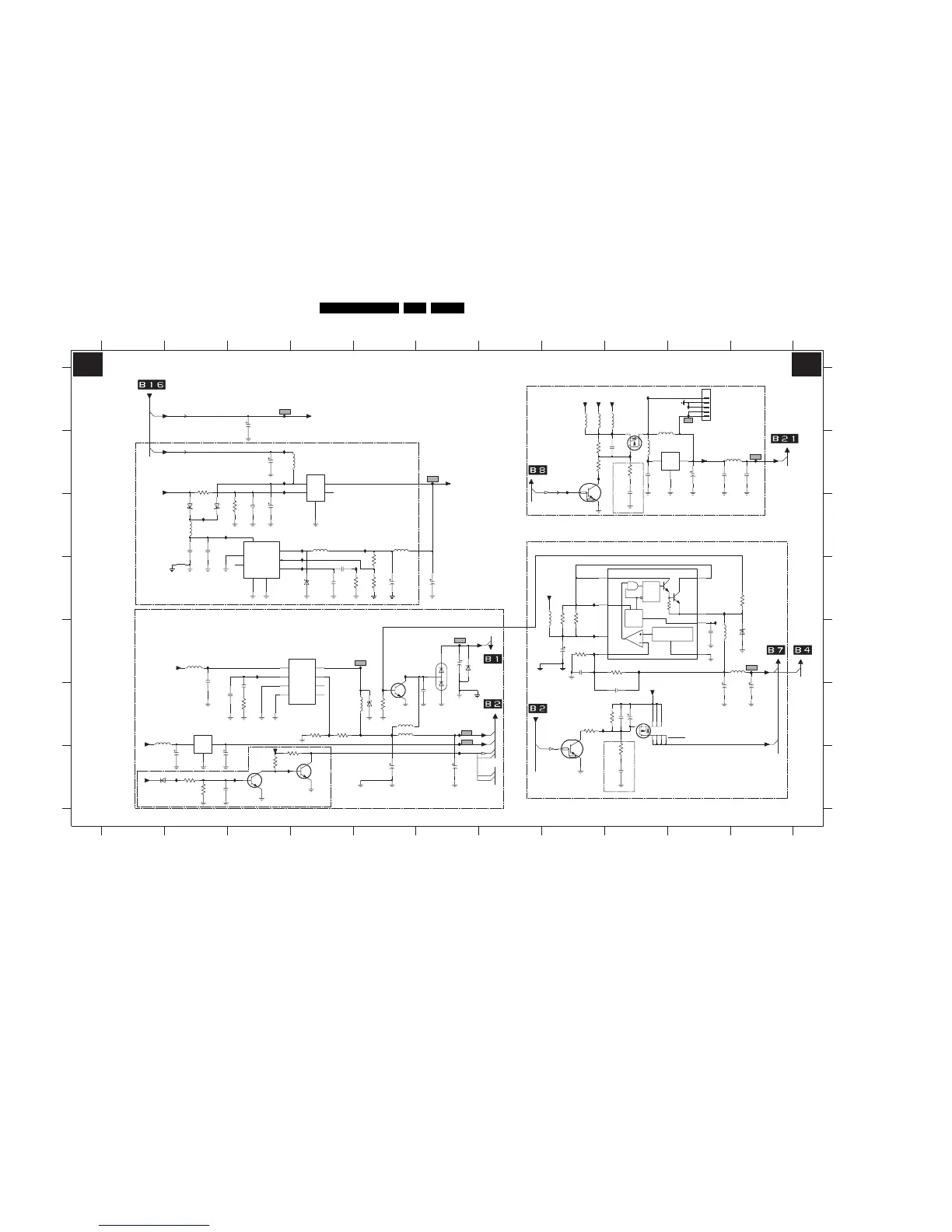
Circuit Diagrams and PWB Layouts
SSB: DC-DC Converter
I733
COM
OUTIN
COM
OUTIN
OUTIN
CTRL NC
COM
FB
OUT
COMP
VREFVCC
INH
SYNC
GND GND_HS
DC-DC CONVERTER
NC
NC
NC
RES
RES
SS = 4V9
0V6
(0V)
11V7
11V7
11V7
1V2
RES
FROM SCALER
RES
RES
RES
RES
RES
TO SCALER CELL
TO HERCULES CELL
TO TUNER CELL
FROM TOP CONNECTORS
FOR LCD ONLY
SUPPLY TO TUNER & HERCULES
SUPPLY TO SCALER
TO EPLD
SI9433BDY-T1-E3
FROM HERCULES
B5
TO LIPSYNC
B7
B16
SI2301BDS-T1-E3
RES
FOR UFD ONLY
FOR UFD ONLY
FOR UFD ONLY
FOR UFD ONLY
32V9
5V2
8V
0V
3V1
3V2
3V2
5V4
11V5
11V5
6V8
I733 E5
I734 F5
I735 E5
I736 F5
I740 G2
I741 G3
I742 G4
I747 B9
I748 F8
I749 A10
I750 A10
I751 D8
I752 E8
I753 E8
I754 E9
I755 D10
I756 B9
I757 A9
I758 D10
I759 B9
I760 B8
7735 E5
7738 F2
7741 G3
7742 G4
7752 D9
7753 B10
7754 A9
7755 B8
7756 G8
7758 F10
F700 B11
F701 A3
F710 B6
F736 E6
F737 F6
F738 F6
F743 G6
F754 E11
F755 C8
I705 E3
I706 B3
I708 B3
I709 B3
I710 C2
I711 C2
I712 C4
I713 C5
I714 C4
I715 D4
I716 D5
I731 E2
I732 F4
3759 F8
3760 B9
3761 F9
5700 B11
5704 B4
5709 C2
5712 C4
5713 C5
5730 E2
5733 F5
5735 F5
5737 F5
5738 F1
5752 D8
5753 E11
5754 E11
5755 A9
5756 A9
5757 A9
5758 A8
5759 B9
6708 C2
6709 C2
6712 D4
6733 F5
6735 E6
6736 E6
6740 G2
6751 E11
7708 B4
7710 C3
7730 E3
2752 B10
2753 E8
2754 E8
2755 F9
2756 E10
2757 E11
2758 E11
2759 B9
2760 B9
2761 G9
2762 F9
3708 B2
3709 C3
3712 D5
3713 D5
3716 D5
3732 F4
3733 F4
3734 D11
3735 F5
3736 F3
3740 G2
3741 G2
3742 G3
3743 G4
3750 F9
3751 D8
3752 D8
3753 E8
3754 E9
3755 B9
3758 B8
F
G
A
B
C
D
E
F
G
1751 A10
2700 B11
2701 B11
2704 A3
2706 B3
2708 C3
2709 C3
2710 C2
2711 C2
2713 D5
2714 D4
2715 D4
2716 D6
1234567891011
1234567891011
A
B
C
D
E
2762
22u16V
2730 E2
2731 G5
2733 F2
2734 E3
2735 F6
2736 E6
2737 G6
2738 G2
2739 G3
2741 G3
2750 F9
2751 B9
3761
100R
25V
1u0
2761
3760
25V
100R
16V
2760
1u0
3736
2731
470u
SUP_GND1 SUP_GND1
4K7
2734
22n
I760
SUP_GND1
LVDS_VCC
+5VSWI
SUP_GND1
SUP_GND1
+3V3STBY
7756
PDTC114ET
1K0
3759
3750
+3V3SW
I748
22K
1
2
3
2750
2u2
SI4433DY
7758
5
6
7
8
4
F700
100p
27012700
5700
+5V
I758
I749
+5VSWI
I750
F755
I755
F754
I754
I751
I753
I752
I747
I757
I756
67
I759
1
2
3
4
5
SUP_GND3
GND
1751
5758
SUP_GND3
SUP_GND3
2754
SUP_GND3
6751
SS14
SUP_GND3
+12VSW
4
IS7
SWC 1
SWE 2
TIMC 3
VCC
6
SUP_GND3
REFERENCE
OSC
IPK
Q
R
S
MC34063AD
7752
CIN_NEG
5
DCOL8
GND
10u
5754
REGULATOR
10u
5752
220u
5753
3754
1%3K3
1%1K0
3753
1R0
37523751
1R0
2758
16V470u
2755
4n7
16V470u
2756
470p
2757
3755
2753
16V470u
10K 100n
2751
PAN_VCC
47u
2752
16V
7753
L4940D2T12
2
13
2759
5759
5757
5755
3758
+12VSW
5756
15K
+3V3STBY
7755
3
1
2
PDTC114ET
I734
7754
I735
I705
I732
F737
I731
F738
F736
+8VSW_TV
L78M08CDT
2
1
3
+12VSW
5738
7738
47u 16V
2739
+VTUN
2738
47u 16V
SUP_GND1
SUP_GND1
7735
BC817-25
6736
BZX384-C33
6735
BAV99
1m0
5735
2736
22u
35V
470p
2735
3735
1K0
3734
2K2
SUP_GND1
+5VSW
+12VSW
2737
470u 16V
10u
5737
2730
10u
25V
SUP_GND1
I736
6
VREF
1%
3K3
3733
4
COMP
5
FB
GND
7
3
INH
1
OUT
2
SYNC
VCC
8
L5970D
7730
5733
220u
3732
1%1K0
SUP_GND1
SUP_GND1
SUP_GND1
SUP_GND1
SS14
220p
2733
6733
10u
5730
I742
I741I740
I716
I713
I715
I712
I714
I711
I710
I708
I706
I709
F710
SUP_GND2 SUP_GND2
F743
+12VSW
F701
7
9
3
1
2
8
6
SUP_GND2
L5973D
7710
Φ
4
5
LF33CPT
2
3
1
4
5
7708
2709
47u 16V
5713
10u
10u
2710 2711
10u
2716
5704
470u
16V
3713
16V
470u
2713
3K3
1%
3712
5K6
1%
33u
5712
SS36
6712
SUP_GND2
SUP_GND2 SUP_GND2
4K7
SUP_GND2
2715
22n
3716
SUP_GND2
220p
2714
10K
+3V3STBY
3708
27083709
6K8
SS14
6709
+12VUNREG
SS24
6708
SUP_GND2
10u
5709
+3V3STBY
SUP_GND2
3743
22K
3742
15K
BC847BW
7742
7741
BC847BW
2741
220n
3741
1K5
3740
1K5
6740
BZX384-C8V2
+12VUNREG
+12VUNREG
2706
16V10u
16V
2704
10u
SC_STANDBY
PANEL-PWR-CTL
POWER_DOWN
B6 B6
3139 123 6093.1
F_15430_006.eps
150405

Table of Contents

Related product manuals