EasyManua.ls Logo

Philips LC4.9E - 7.27 SSB: Audio Processing

Philips LC4.9E
162 pages
Print Icon
To Next Page IconTo Next Page
To Next Page IconTo Next Page
To Previous Page IconTo Previous Page
To Previous Page IconTo Previous Page
Loading...
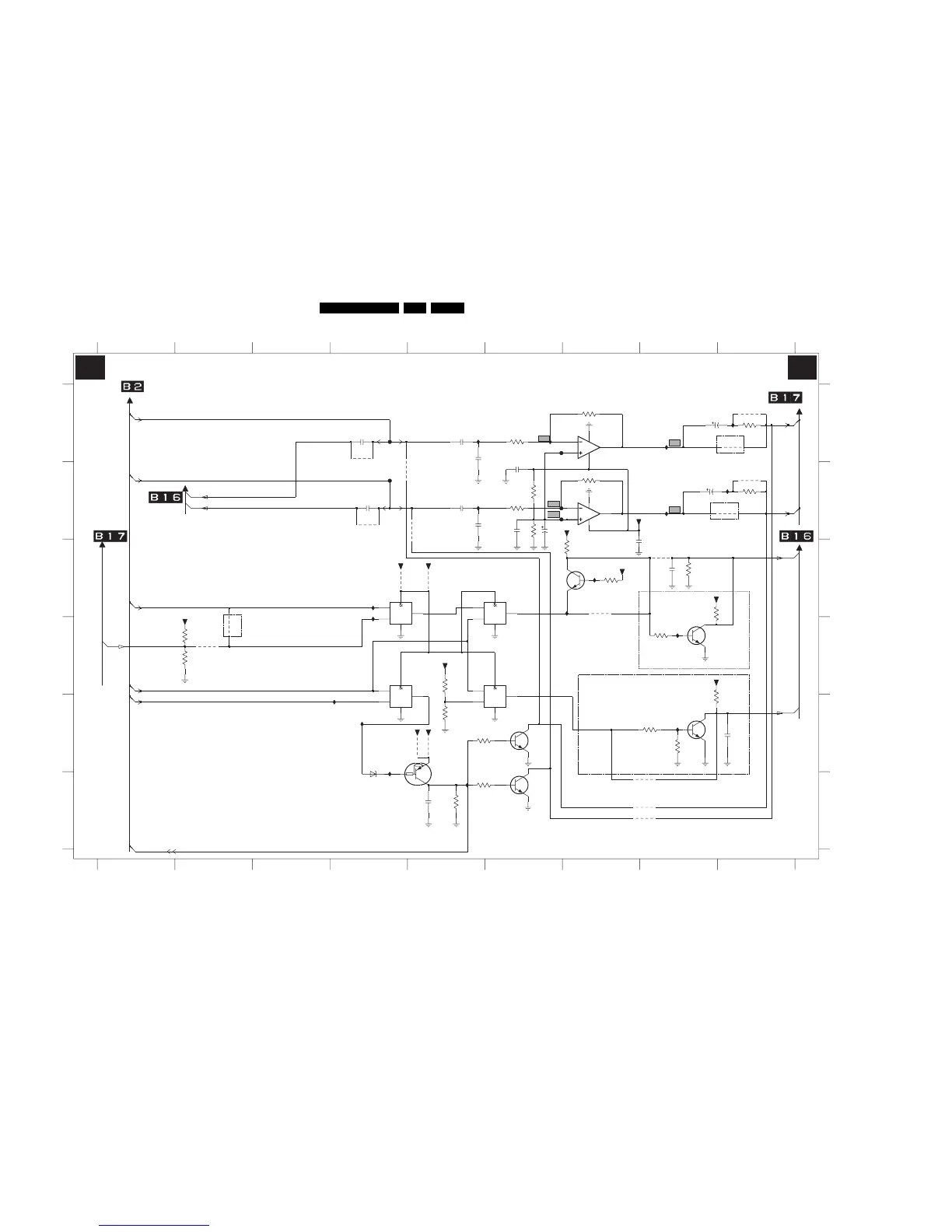
Circuit Diagrams and PWB Layouts
57LC4.9E AB 7.
SSB: Audio Processing
AUDIO PROCESSING
FROM HERCULES
**
**
RES
3.2 TO 4.3V
3V3
ITV ONLY
RES
RES
RES
PDTA143ET
RESERVED FOR UFD
RESERVED FOR UFD
RES
RES
RES
RES
RES
RES
RES
RES
RES
RES
2V6
2V6
2V6
5V3
2V6
2V6
2V6
5V3
3V4
3V2
5V2
0V
5V
0V
0V
123456789
123456789
A
B
C
D
E
F
A
B
C
D
E
F
2603 A5
2604 A6
2605 B6
2608 B5
2609 B6
2610 B6
2611 B6
2612 E9
2613 C8
2614 B8
2615 A8
2616 A4
2617 B4
2618 B8
2619 F5
3604 A6
3605 A7
3609 B6
3610 B6
3611 B6
3612 B7
3615 C7
3616 E9
3617 C9
3618 C8
3619 D8
3620 E8
3621 E8
3623 F5
3625 C6
3626 D2
3627 D2
3628 D5
3629 E5
3630 E5
3631 F5
3632 A9
3633 B9
4601 D2
4602 C8
4603 F8
4604 A9
4605 B9
4606 C7
4609 A9
4610 B9
4611 B4
4612 B4
4613 D2
4614 F8
4615 F8
4616 C4
4617 C5
4618 A4
4619 B4
4620 E5
4621 E5
6601 E4
7601-1 A7
7601-2 B7
7602-1 C4
7602-2 C5
7602-3 D5
7602-4 D6
7603 E8
7604 D8
7605 E4
7606-1 E6
7606-2 F6
7607 C7
F601 A4
F602 B4
F603 A6
F604 B6
F605 B6
I602 A8
I603 B8
I604 A9
I605 B9
I606 C4
I607 C4
I608 A5
I610 B5
I611 C7
I612 C6
I613 E3
I614 E4
I615 E4
I616 E8
I617 F5
I618 A6
I619 D8
470p
2604
2619
47u
4606
4621
+5V
4620
4619
+3V3STBY
4618
4617
4616
4615
4614
4613
4612
4611
4610
4609
3633
39R
39R
3632
+5V
3628
3629
3631
470R
3630
470R
+5VSW
22K
3627
10K
3626
I619
6601
I618
BZX384-C3V3
I617
I616
I614
I615
I613
I612
I610
I611
I608
4603
3K3
3625
4601
+5VSW
+5VSW
2614
100n
7606-2
BC847BS
BC847BS
7606-1
47K
3623
+3V3SW
7605
10K
3615
16V
100u
2611
22K
3618
10V
1u0
2613
2612
1u0
10V
3620
10K
4602
7607
+5VSW
470p
2609
BC847BW
84
3621
7601-1
TS482IDT
3
2
1
5
6
7
84
7601-2
TS482IDT
F605
F603
F604
2u2
2616
2u2
2617
+3V3STBY
7604
BC847BW
3619
10K
3617
+3V3STBY
1K0
7603
BC847BW
1K0
3616
I607
I606
I605
I604
I602
I603
F601
F602
3611
100K
2610
1u0
1u0
2605
3605 22K
3609
22K
3604
22K
3610
100K
22K3612
+3V3SW
12
13
7
14
11
4
5
7
14
6
74HC08PW
7602-4
8
7602-2
74HC08PW
7602-3
74HC08PW9
10
7
14
1
2
7
14
3
74HC08PW
7602-1
2608
1u0
2603
1u0
4604
16V470u
2615
4605
16V
2618
470u
OUT_MUTE
HPIC_RIN
EXT_MUTE
POR_AUDIO
SOUND_ENABLE_1
AUDIO-L
AUDIO-R
POWER_DOWN
SOUND_ENABLE
HP_LOUT
HP_ROUT
HPIC_ROUT
HPIC_LOUT
HP_DET_R_DC
HPIC_LIN
AUDOUTLSL
AUDOUTLSR
B5 B5
3139 123 6093.1
F_15430_005.eps
140405

Table of Contents

Related product manuals