EasyManua.ls Logo

Philips LC4.9E - Flash Memory

Philips LC4.9E
162 pages
Print Icon
To Next Page IconTo Next Page
To Next Page IconTo Next Page
To Previous Page IconTo Previous Page
To Previous Page IconTo Previous Page
Loading...
126LC4.9E AB 7.
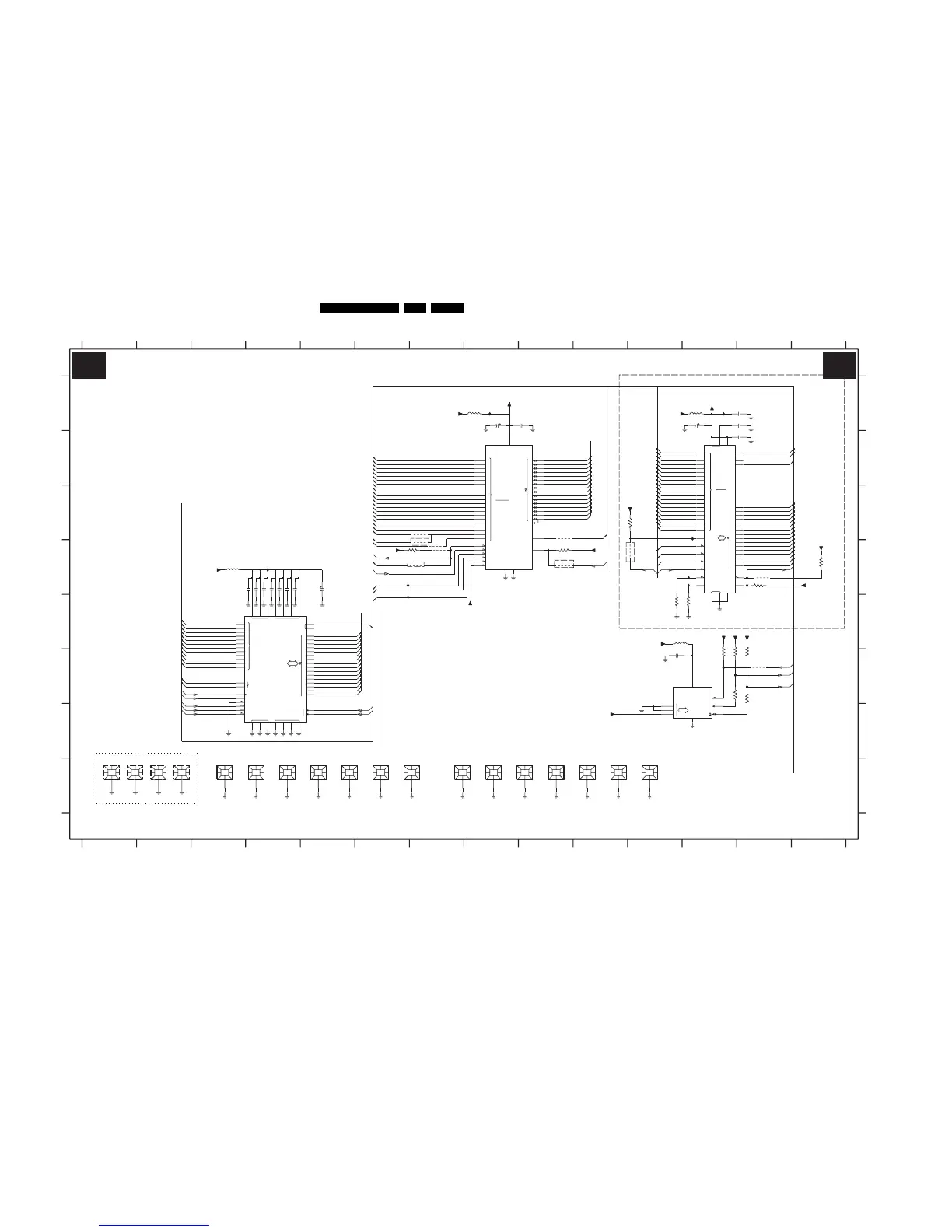
Circuit Diagrams and PWB Layouts
IBO Zapper: Flash Memory
SCL
ADR
0
1
2 SDA
WC
10
4
9
8
7
6
0
32M-1
0
A
D
5
11
2
1
17
OE
12
13
14
15
VPP/WP_
20
19
18
16
RB
4
3
2
CE
7
6
WE
RP
1
0
BYTE
3
NC
5
8
9
10
11
12
13
14
15
A-1
W
VPP
VDDQVSSQ
VDD
R
RB
VSS
19
18
15
1
2
3
4
5
6
7
8
D
0
9
10
11
12
13
14
3
4
1
E
G
RP
0
2
17
16
15
14
13
2048k-1
12
11
10
9
8
7
5
A
6
L
K
20
21
VDD VDDQ
13
14
CKE
10
D
A
DQM
L
U
11
4
5
6
1
2
3
7
3
7
8
9
10
CLK
4
BA
CS
5
VSS
2
CAS
WE
15
RAS
VSSQ
0
9
NC
1
0
0
6
12
8
1
11
K1
K1
SYSTEM
K1, K7
K1, K7
K1, K7
K1
K1
K1
K1, K7
K1, K7
K1, K7
K1, K7
3V2
K1, K7
K1, K7
K1, K7
0V
K1
5V
100MHz
K1
K1
K1, K7
K1
K1
K1, K7
K1
K1, K7
K1, K7
K1, K7
K1, K7
K1
K1, K6, K7
K1
K1, K6, K7
100MHz
K1
K1, K7
K1, K7
2/4/8MB
0V
K1, K7
K1, K7
K1
K1, K3
K1, K7
K1, K7
3V2
3V2
3V2
K1, K3
K1, K7
K1, K7
0V
K1
K1
K1
K1
K1
K1
K1
K1
2/4/8MB
K1
K1
K1
K1
4V6
4V6
0V
0V
K1, K7
0007 H4
0008 H5
K1
K1
2206 D5
2207 E4
2208 E4
2209 E4
2210 E4
K1
K1
K1, K7
1
I207 F12
I208 F13
I209 D12
I210 D12
I211 D13
K1, K7
K1, K7
K1
K1
I2C ADDRESS=A8
67
K1, K7
2214 F11
3200 D6
3201 D14
3202 D13
3203 E11
K1, K7
B
C
D
E
F
G
H
0001 H1
0002 H1
0003 H2
0004 H2
0005 H3
0006 H4
13 14
K1, K7
K1, K7
4204 D7
4205 C9
4212 F13
4213 D13
4214 D11
K1, K7
K1
K1
K1
K1
K1
K1, K7
K1, K7
K1
K1
MECHANICAL 3.5MM HOLE
3V2
12345
A
B
100MHz
K1
4215 D9
5200 A12
5201 A8
K1, K7
K1, K7
K1, K7
8 9 10 11 12
H
A
EEPROM
7201 B12
7202 E3
7203 F11
F200 F12
F201 D6
I200 A12
I201 A8
I202 D4
I203 C12
I204 D7
I205 D6
I206 D9
K1, K7
K1, K7
234567891011121314
0016 G10
0017 G10
2212 E4
2213 E4
1V4
0V
5V
4V6
0V
0V
0V
0V
0V
3V2
3V2
3V2
3V2
K1
NOR
100MHz
K1
K1
K1
K1
K1
K1
C
D
E
F
G
2204 A9
2205 B13
4202 C7
4203 D7
0V
0V
0V
1V5
3V
3V
3V
0V
1V3
K1, K7
K1, K7
K1, K7
K1
K1, K7
K1, K7
K1, K7
FLASH
0009 H5
0010 H6
0011 H6
0012 G7
0013 G8
0014 G9
0015 G9
2211 E4
0V
0V
0V
0V
0V
0V
0V
3V2
K1
K1, K7
K1
K1
FLASH MEMORY
0018 G11
2200 A13
2201 A12
2202 A13
2203 A8
4200 D7
4201 D7
5203 E11
7200 B8
0V
0V
3V3
K1, K7
K1, K7
K1, K7K1, K7
K1, K7
K1
1V
1V4
2V2
1V
3V2
3V2
3V2
0V
K1
3V2
3V2
0V
0V
FLASH
K1
K1
K1, K7
K1, K7
3204 E12
3205 D9
3206 F12
3207 F13
3209 F13
3210 F13
3211 F12
3212 C11
5202 D3
0V
0V
0V
0V
0V
1V2
0V7
3V3
K1, K7
1V3
1V3
1V2
1V3
K1, K7
K1, K7
K1
K1, K7
K1, K7
K1
K1, K7
K1, K7
K1, K7
K1, K7
K1, K7
NOR
K1, K7
1V3
K1, K7
0V
1V3
0V
3V2
0V
0V
0V
0V
K1
K1
OPTION
OPTION
OPTION
OPTION
OPTION
0V
3V2
K1, K7
K1, K7
K1, K7
3V2
3V2
0V
0V
1V3
0V
1V4
5
8
VSS
4
WC_
7
3205
10K
EEPROM
Φ
(8Kx8)
1
E0
2
E1
3
E2
SCL
6
SDA
7203
M24C64-WMN6
470R
3201
HEATSINK
00140013
HEATSINK
HEATSINK
00110010
HEATSINKHEATSINK
00090008
HEATSINKHEATSINK
00070006
HEATSINK
0005
HEATSINK
0012
+3V3_NOR48
HEATSINK
3K3
3206
4202
+5V
+3V3_NOR48
100n
2212
+5V
+5V
2211
100n
4215
4200
+3V3_NOR48
470R
3204
5200
F201
2202
100n
I211
I200
I203
470R
3212
I205
3209
100R
3210
100R
4214
+3V3_NOR48
2207
100n
+3V3_NOR48
12
37
14
27 46
11
+3V3
33
35
38
40
42
44
30
32
13
28
15
7
47
26
29
31
34
36
39
41
43
45
16
9
23
10
22
21
20
19
18
8
25
24
6
5
4
3
2
1
48
17
EPROM
4Mx8/2Mx16
7200
M29W320DT
100n
2210
100n
2213
4212
F200
+3V3_NOR48
I201
+3V3
I208
3K3
3207
0003
TYPE
0002
TYPE
0001
TYPE
I206
5203
I210
100n
2209
4201
470R
I202
3202
3200
3K3
+5V
4205
5201
4203
10K
+3V3_NOR48
3211
I207
10u
2203
2208
100n
10u
100n
2205
2206
I204
+3V3_NOR48
3203
+5V
470R
0004
TYPE
HEATSINK
00180017
HEATSINKHEATSINK
00160015
HEATSINK
5202
4204
100n
2204
+3V3
2214
100n
12 46 52
16
16V
2201
10u
27 3 9
43
49
28 41 54 6
13
42
44
15
36
40
18
39
114
45
47
48
50
51
53
5
7
8
10
11
32
33
34
20
21
17
37
38
19
2
4
K4S281632F
23
24
22
35
25
26
29
30
31
7202
DRAM
4x2Mx16
Φ
SYNC
55
4213
56
2
53
16
9
37
43
15
21
48
42
51
34
36
14
54
31
29
1
30
32
41
45
47
50
52
38
40
44
46
493
26
25
24
23
22
20
19
33
35
39
17
13
12
11
10
8
7
6
5
27
4
7201
M58LW032C90N1
Φ
28
18
I209
100n
2200
NOR_RYBY
NOR_RYBY
MIU_WEN
RESET_n
RESET_n
SDRAM_ADDR(3)
SDRAM_ADDR(4)
SDRAM_ADDR(5)
I2C_LOCAL_SCL
NOR_WP
NOR_WP
user_EEPROM_WP
I2C_LOCAL_SDA
SDRAM_DATA(12)
SDRAM_DATA(11)
SDRAM_DATA(10)
SDRAM_DATA(9)
SDRAM_DATA(8)
SDRAM_DATA(7)
SDRAM_DATA(6)
SDRAM_DATA(5)
SDRAM_DATA(4)
SDRAM_DATA(3)
SDRAM_DATA(2)
SDRAM_DATA(1)
SDRAM_DATA(0)
SDRAM_ADDR(0)
SDRAM_ADDR(1)
SDRAM_ADDR(2)
SDRAM_ADDR(6)
SDRAM_ADDR(7)
SDRAM_ADDR(8)
SDRAM_ADDR(9)
SDRAM_ADDR(10)
SDRAM_ADDR(11)
SDRAM_ADDR(12)
SDRAM_ADDR(13)
SDRAM_ADDR(14)
SDRAM_DQM1
SDRAM_RAS
SDRAM_CKE
SDRAM_CLK
SDRAM_DATA(15)
SDRAM_DATA(14)
SDRAM_DATA(13)
MIU_ADDR(1)
NOR_CS
MIU_DATA(7)
MIU_DATA(6)
MIU_DATA(5)
MIU_DATA(4)
MIU_DATA(3)
MIU_DATA(2)
MIU_DATA(1)
MIU_DATA(0)
SDRAM_DQM0
MIU_ADDR(20)
MIU_OEN
MIU_ADDR(21)
MIU_ADDR(20)
SDRAM_WE
SDRAM_CAS
MIU_DATA(4)
MIU_ADDR(4)
MIU_DATA(5)
MIU_ADDR(5)
MIU_DATA(6)
MIU_ADDR(6)
MIU_DATA(7)
MIU_ADDR(7)
MIU_DATA(8)
MIU_ADDR(8)
MIU_DATA(9)
MIU_ADDR(9)
MIU_DATA(10)
MIU_ADDR(10)
MIU_DATA(11)
MIU_ADDR(11)
MIU_DATA(12)
MIU_ADDR(12)
MIU_DATA(13)
MIU_ADDR(13)
MIU_DATA(14)
MIU_ADDR(14)
MIU_ADDR(15)
MIU_ADDR(16)
MIU_ADDR(17)
MIU_ADDR(18)
MIU_ADDR(19)
MIU_DATA(15)
MIU_DATA(1)
MIU_DATA(15)
MIU_DATA(8)
MIU_DATA(9)
NOR_CS
MIU_OEN
MIU_ADDR(22)
MIU_ADDR(23)
MIU_ADDR(24)
MIU_WEN
MIU_DATA(2)
MIU_ADDR(2)
MIU_DATA(3)
MIU_ADDR(3)
MIU_ADDR(22)
MIU_ADDR(22)
MIU_ADDR(13)
MIU_ADDR(14)
MIU_ADDR(15)
MIU_ADDR(16)
MIU_ADDR(17)
MIU_ADDR(18)
MIU_ADDR(19)
MIU_ADDR(20)
MIU_ADDR(21)
MIU_DATA(0)
MIU_ADDR(1)
MIU_ADDR(10)
MIU_ADDR(11)
MIU_ADDR(12)
MIU_ADDR(2)
MIU_ADDR(3)
MIU_ADDR(4)
MIU_ADDR(5)
MIU_ADDR(6)
MIU_ADDR(7)
MIU_ADDR(8)
MIU_ADDR(9)
MIU_DATA(10)
MIU_DATA(11)
MIU_DATA(12)
MIU_DATA(13)
MIU_DATA(14)
3139 123 5906.2
K2
K2
F_15270_055.eps
131205

Table of Contents

Related product manuals