EasyManua.ls Logo

Philips LC4.9E - I2 C Overview

Philips LC4.9E
162 pages
Print Icon
To Next Page IconTo Next Page
To Next Page IconTo Next Page
To Previous Page IconTo Previous Page
To Previous Page IconTo Previous Page
Loading...
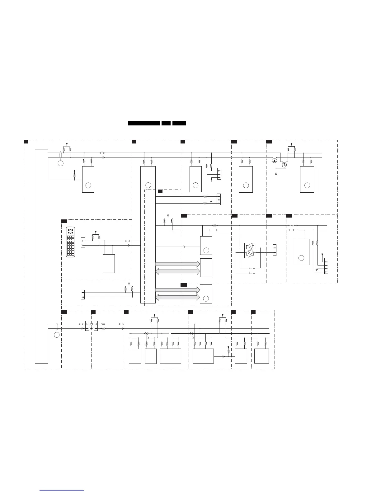
Block Diagrams, Test Point Overviews, and Waveforms
29LC4.9E AB 6.
I2C Overview
HERCULUS
TUNER & IF
B1
SCALER
I
²
C
ADC
B18
B2
B8
DIGITAL IO
B14
FLASH / CONTROL
B11
SDRAM
B10
B15
SCART ANALOGUE IO
COLUMBUS
B19
SCALER INTERFACE
B9
EPLD
B21
EPLD
B20
B7
SCALER
ANALOG BACKEND
K5
FRONT END
K6
MOJO
K1
MEMORY
K2
MEMORY
K7
IBO ZAPPER
(Only For DVB Sets)
SDA
SCL
109
HERCULES
SET
PROCESSOR
108
54
1102
UV1318S
TUNER
ERR
10
N1 N2
7801
GM1501H
SCALER
ERR
4
ERR
6
F_15270_041.eps
270906
+3V3STBY
3233
3232
56
7207
M24C16
EEPROM
NVM
ERR
9
NVM_WP_HERC
+3V3STBY
3249
104
1101
1
2
3
SERVICE
CONNECTOR
COMPAIR
1 8
916
17
24
C5
C1 C2
C3 C4
1F00
7
6
56
7F03
M24C02
EEPROM
256x8
DCC_5V
3F18
3F17
SDA_DVI
SCL_DVI
DVI-D
CONNECTOR
3102
(5108)
3101
(5107)
SDA_IO
SCL_IO
5
6
7C01
M24C32
EEPROM
P3
P4
+3V3SW
3818
3817
ERR
8
NVM_WP_SCALER
7C00
MX29LV040
FLASH ROM
7B01
K4D263238F
SDRAM
ERR
14
ADDRESS
DATA
ADDRESS
DATA
AF5
N3
N4
SDA
SCL
7
1107
1
2
3
SERVICE
CONNECTOR
UART
UART_TX
UART_RX
3122
3123
M1
M2
2
1802
1
JTAG_TDI_SDA
JTAG_CLK_SCL
AF7
AD6
+3V3IO
3838
3837
JTAG
I2C
FSDATA
FSADDR
OCMDATA
OCMADDR
7
SW_I2C_SDA
SW_I2C_SCL
1
1G03
2
57 56
7L04
MST9883C
ANALOG
INTERFACE
ERR
7
3L19
3L20
7L07
7L06
+3V3SWB
3L36
3L37
+3V3SWB
A15 B15
7M00
T6TU5XBG
COLUMBUS
CTRL
ERR
11
3M14
3M15
ERR
17
T2 R2
7N02
EP1C12F256C8N
EPLD
BANK 4
ERR
16
4N21
4N22
1N02
2
3
4
FOR
DEVELOPMENT
USE ONLY
SDA
SCL
1
+3V3SW
3N46
3N47
1P07
(1G50)
31
30
7A00
PCA9515ADP
3
2
6
7
TO
DISPLAY
3125
3124
112
113
I2C_TV_SDA
I2C_TV_SCL
+5V
3626
3627
9 8
1600
TD1316L
TUNER
DIGITAL
1
1500
2
7217
TDA15021H
3513
3512
56
7602
M24C256
EEPROM
3607
3605
3632
3633
4 3
7600
TDA10046
COFDM
CHANNEL DECODER
3630
3631
8 6
3625
3629
9 8
7100
PNX8316HS
MOJO
3147
3146
76
3144
3143
56
7203
M24C64
EEPROM
3209
3210
185
7
WP
3625
+5V
+5V
3207
3206
30 31
7700
ST70700
PCMCIA
CONTROLLER
3701
3700
I2C_local_SDA
I2C_local_SCL
FOR
PDP ONLY
4A01
4A00
RES
I2C_TDA_SDA
I2C_TDA_SCL
3248
3247
3904
3903

Table of Contents

Related product manuals